EasyManua.ls Logo

Panasonic TH-50PC77U - Drive Board Removal

Panasonic TH-50PC77U
112 pages
Print Icon
To Next Page IconTo Next Page
To Next Page IconTo Next Page
To Previous Page IconTo Previous Page
To Previous Page IconTo Previous Page
Loading...
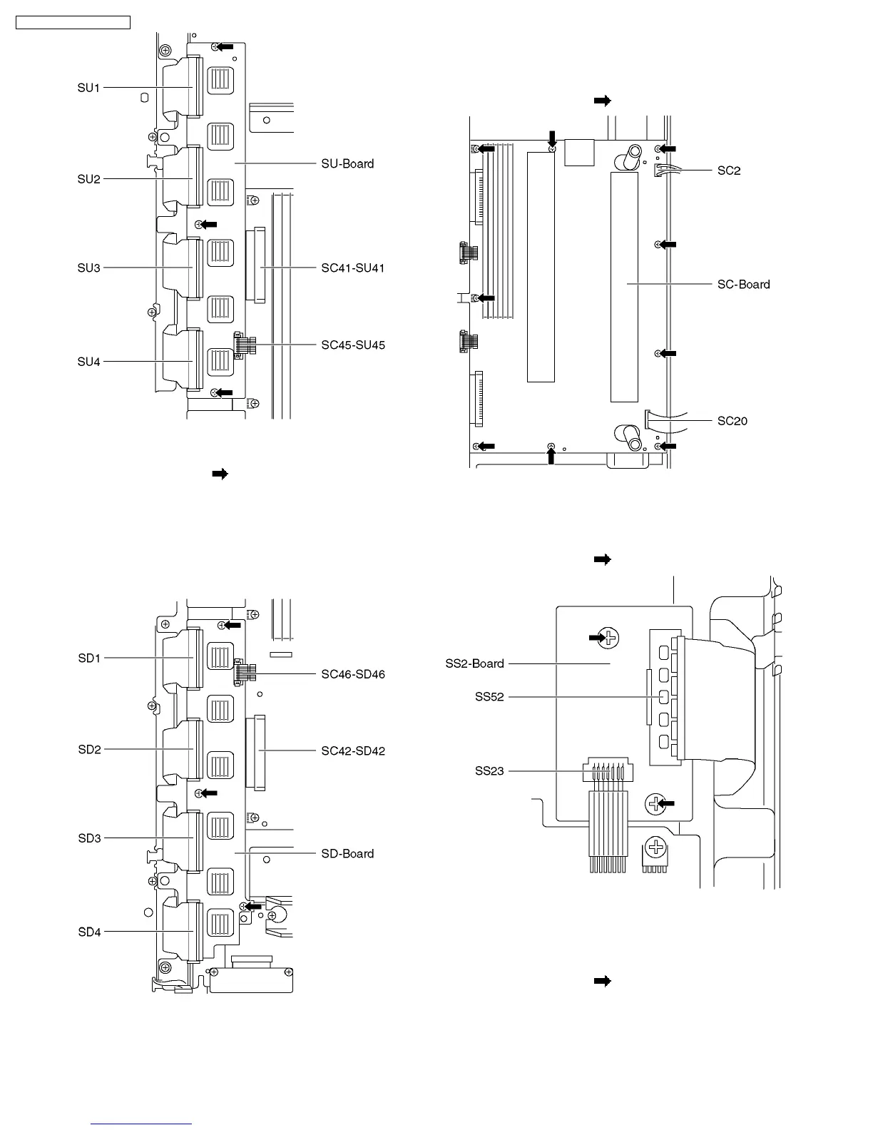
6.10. Remove the SD-Board
1. Remove the screws (×3 ).
2. Remove the flexible cables (SD1, SD2, SD3 and SD4)
connected to the SD-Board and remove the connector
(SC46-SD46).
3. Slide the SD-Board to the left to disconnect from a
connector (SC42-SD42) on the SC-Board and remove the
SD-Board.
6.11. Remove the SC-Board
1. Remove the SU-Board and SD-Board. (See section 6.9.
and 6.10.)
2. Unlock the cable clampers to free the cable.
3. Disconnect the connector (SC2).
4. Disconnect the flexible cable (SC20).
5. Remove the screws (×9
) and remove the SC-Board.
6.12. Remove the SS2-Board
1. Disconnect the connector (SS23) and disconnect the
flexible cable (SS52).
2. Remove the screws (×2
) and remove the SS2-Board.
6.13. Remove the SS3-Board
1. Disconnect the connector (SS24) and disconnect the
flexible cable (SS57).
2. Remove the screws (×2
) and remove the SS3-Board.
12
TH-50PX77U / TH-50PE77U

Table of Contents

Related product manuals