EasyManua.ls Logo

Panasonic TH-50PC77U - 11.4. Adjustment Volume and Test Point Locations

Panasonic TH-50PC77U
112 pages
Print Icon
To Next Page IconTo Next Page
To Next Page IconTo Next Page
To Previous Page IconTo Previous Page
To Previous Page IconTo Previous Page
Loading...
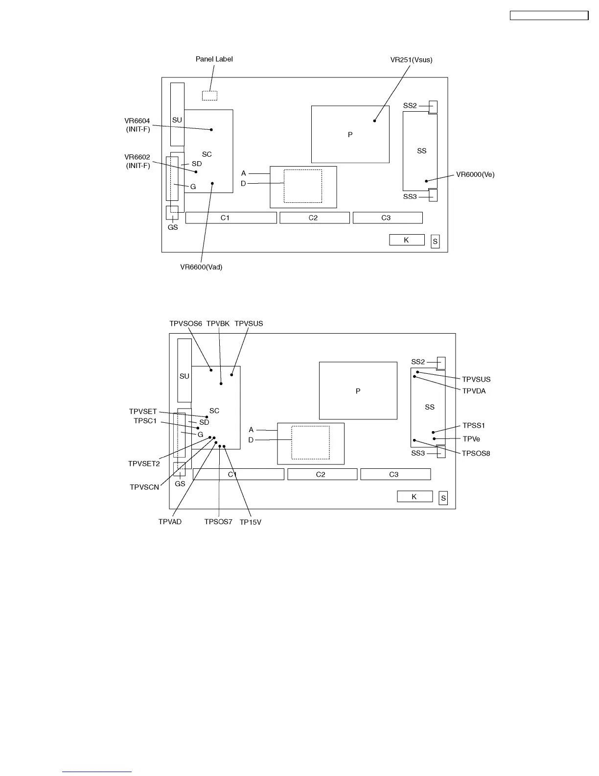
11.4. Adjustment Volume Location
11.5. Test Point Location
33
TH-50PX77U / TH-50PE77U

Table of Contents

Related product manuals