EasyManua.ls Logo

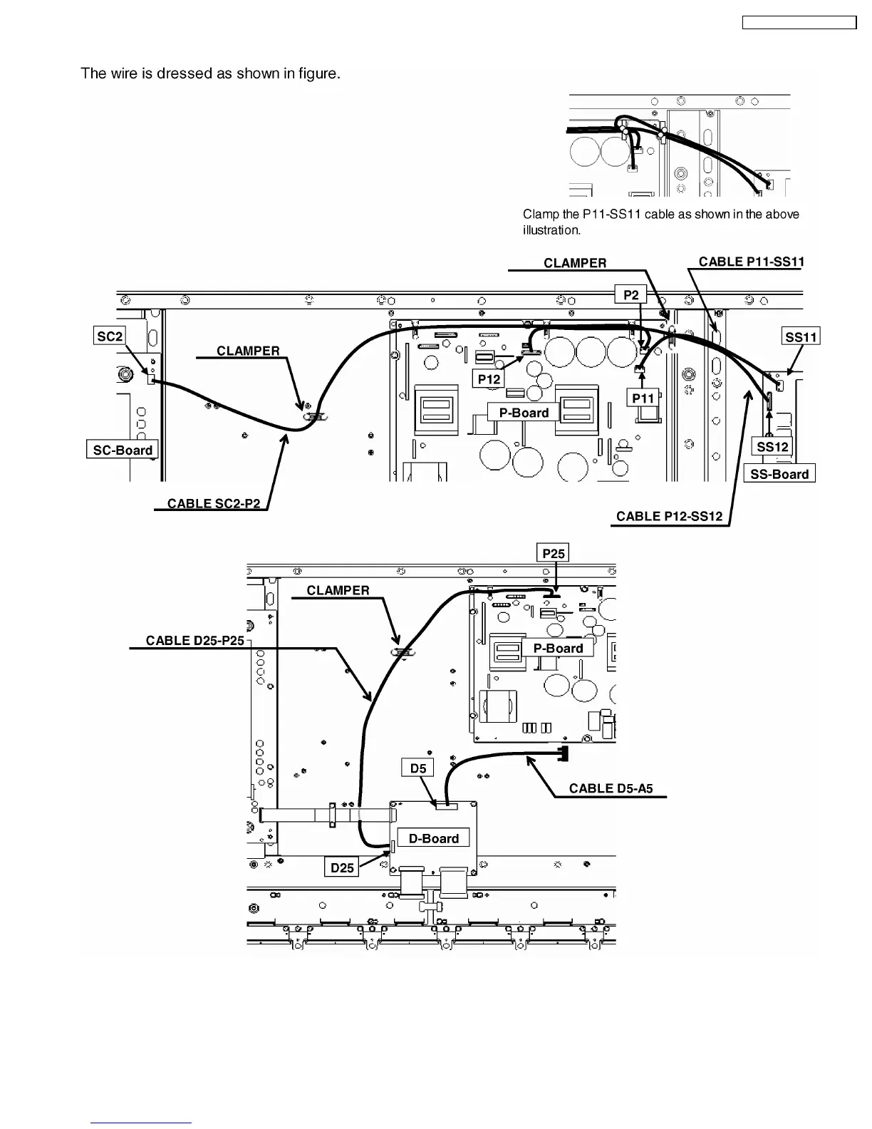
Panasonic TH-50PC77U - 8.3. Lead of Wiring (3)

Panasonic TH-50PC77U
112 pages
Print Icon
To Next Page IconTo Next Page
To Next Page IconTo Next Page
To Previous Page IconTo Previous Page
To Previous Page IconTo Previous Page
Loading...
8.3. Lead of Wiring (3)
19
TH-50PX77U / TH-50PE77U

Table of Contents

Related product manuals