EasyManua.ls Logo

Panasonic TH-50PC77U - Remove the SS-Board; Remove the Stand Brackets; Remove the C1-Board; Remove the C2-Board

Panasonic TH-50PC77U
112 pages
Print Icon
To Next Page IconTo Next Page
To Next Page IconTo Next Page
To Previous Page IconTo Previous Page
To Previous Page IconTo Previous Page
Loading...
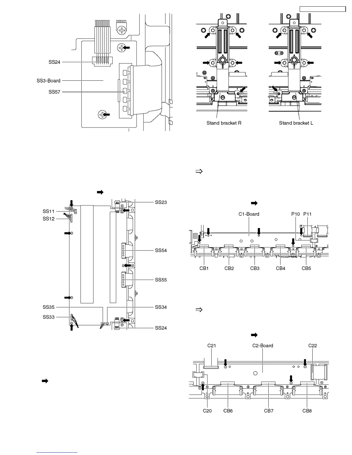
6.14. Remove the SS-Board
1. Disconnect the connectors (SS11, SS12 SS23, SS24,
SS33 and SS35).
2. Remove a short-jumper connector SS34 and re-use for new
SS-Board.
3. Disconnect the flexible cables (SS54 and SS55).
4. Remove the screws (×7
) and remove the SS-Board.
6.15. Remove the stand brackets
1. Remove the plasma panel section from the servicing stand
and lay on a flat surface such as a table (covered) with the
plasma panel surface facing downward.
2. Remove the stand brackets (left, right) fastening screws (×5
each) and remove the stand brackets (left, right).
6.16. Remove the C1-Board
1. Remove the tuner unit. (See section 6.4.)
2. Remove the stand bracket (R). (See section 6.15.)
3. Remove the flexible cables holder fastening screws (×10
).
4. Disconnect the flexible cables (CB1, CB2, CB3, CB4 and
CB5).
5. Disconnect the flexible cables (C10 and C11).
6. Remove the screws (×5 ) and remove the C1-Board.
6.17. Remove the C2-Board
1. Remove the tuner unit. (See section 6.4.)
2. Remove the flexible cables holder fastening screws (×6
).
3. Disconnect the flexible cables (CB6, CB7 and CB8).
4. Disconnect the flexible cables (C20, C21 and C22).
5. Remove the screws (×4
) and remove the C2-Board.
13
TH-50PX77U / TH-50PE77U

Table of Contents

Related product manuals