EasyManua.ls Logo

Panasonic TH-50PHW7BX - Removal of the C1-Board; Removal of the C2-Board; Removal of the C3-Board; Removal of Stand Brackets

Panasonic TH-50PHW7BX
159 pages
Print Icon
To Next Page IconTo Next Page
To Next Page IconTo Next Page
To Previous Page IconTo Previous Page
To Previous Page IconTo Previous Page
Loading...
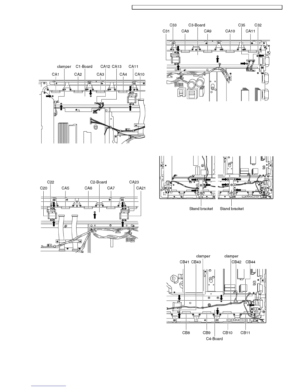
8.17. Removal of the C1-Board
a. Disconnect the flexible cables (CA1, CA2, CA3, CA4, C10,
C11).
b. Disconnect the couplers (C12, C13) release the SC45-SU45
cable from the clamper on the C1-Board.
c. Unscrew the screws (×5) and remove the C1-Board.
8.18. Removal of the C2-Board
a. Disconnect the flexible cables (CA5, CA6, CA7, C20, C21,
C22, C23, C24, C25).
b. Unscrew the screws (×5) and remove the C2-Board.
8.19. Removal of the C3-Board
a. Disconnect the flexible cables (CA8, CA9, CA10, CA11, C31,
C33).
b. Disconnect the couplers (C32, C35).
c. Unscrew the screws (×5) and remove the C3-Board.
8.20. Removal of stand brackets
a. Lay on a table (covered), with the plasma panel surface
facing downward.
Spread a soft cloth for protection, to prevent panel surface from
scratching.
b. Unscrew the stand bracket (left, right) fastening screws (×4
each) and remove the stand brackets (left, right).
8.21. Removal of the C4-Board
a. Disconnect the cables (CB8, CB9, CB10, CB11, C41, C43).
b. Disconnect the couplers (C42, C44) and release the speaker
cables from the clampers (×2) on the C4-Board.
c. Unscrew the screws (×5), and remove the C4-Board.
15
TH-50PHW7BX / TH-50PHW7EX / TH-50PHD7EK / TH-50PHD7ES / TH-50PHD7BK / TH-50PHD7BS / TH-50PHD7UY

Table of Contents

Related product manuals