EasyManua.ls Logo

Panasonic TH-50PHW7BX - D-Board (2 of 12) Schematic Diagram

Panasonic TH-50PHW7BX
159 pages
Print Icon
To Next Page IconTo Next Page
To Next Page IconTo Next Page
To Previous Page IconTo Previous Page
To Previous Page IconTo Previous Page
Loading...
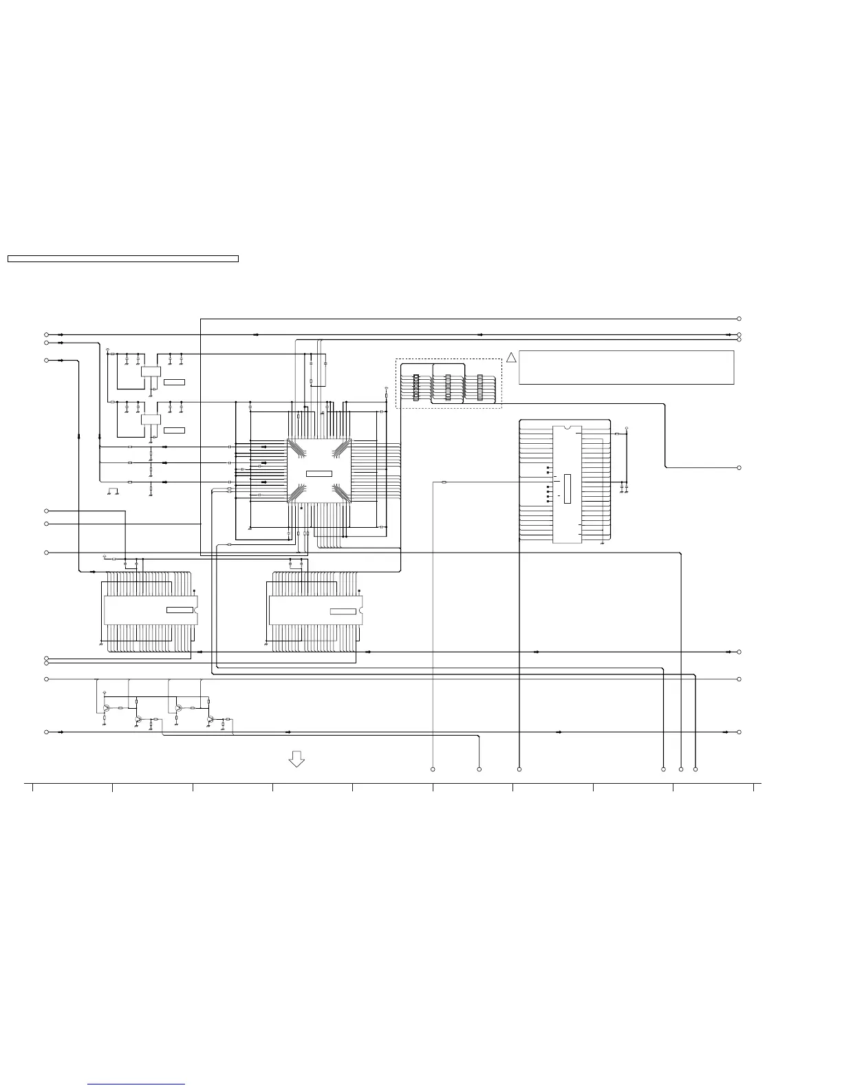
15.24. D-Board (2 of 12) Schematic Diagram
MA_B5
MAIN_G7
MD_R2
MD_R3
MA_B4
MD_R4
MD_R5
MA_B3
MD_R6
MD_R7
MA_B2
MD_G0
MA_B0
MA_G7
MAIN_G3
MA_B1
MD_G1
MA_R7
MAIN_G2
MA_B0
MD_G2
MA_B1
MA_G6
MAIN_G1
MA_G7
MD_G3
MA_R6MAIN_G6
MAIN_G0
MA_G6
MAIN_R0
MD_G4
MA_G5
MAIN_G5
MAIN_R7
MA_G5
MAIN_R1
MD_G5
VD_ADM
MA_R5
MAIN_G4
MAIN_R6
MA_G4
MAIN_R2
MD_G6
MA_G4
MAIN_R5
MA_G3
MAIN_R3
MD_G7
AM_VD
MA_R4
MAIN_R4
MA_G2
MAIN_R4
MA_G3
MD_B0
HD_ADM
AM_HD
MAIN_R3
MA_G0
MAIN_R5
MD_B1
MA_R3
MA_G2
MAIN_R2
MA_G1
MAIN_R6
MD_B2
MAIN_R1
MA_R7
MD_B3
MA_R2
MA_G1
MAIN_R0
MA_R6
MAIN_G0
MD_B4
MAIN_B7
MA_R5
MAIN_G1
MD_B5
MA_R1
MA_G0
CLP_M
MAIN_B6
MA_R4
MAIN_G2
MD_B6
MAIN_B5
MA_R3
MAIN_G3
MD_B7
MA_B7
MA_B2
MA_R0
MAIN_B4
MA_R2
MAIN_G4
MA_B6
MAIN_B3
MA_R0
MAIN_G5
MA_B5
MA_B7
MAIN_B2
MA_R1
MAIN_G6
MA_B4
MAIN_B1
MD_R0
MAIN_G7
MA_B6
MA_B3
MAIN_B0
MD_R1
MAIN_R7
MAIN_B6
MAIN_B7
MAIN_B4
MAIN_B2
MAIN_B1
MAIN_B0
MAIN_B3
MAIN_B5
ANF_G_M
ANF_R_M
D09
A10
D10
A11
D01
D02
A7
D03
A16
D04
A8
DA_SWS
NDA_SWM_5V
NDA_SWS_5V
D05
DA_SWM
A18
D00
A12
A13
D11
A14
D12
A15
D13
D14
D15
A2 A1
A3
A4
DA_SWS_5V
A5
A6
DA_SWM_5V
ABI_I
D06
ABI_J
D07
ABI_D
A17
D08
A9
P3V_SDA2
P3V_SCL2
ANF_B_M
NRST
SA_G5
MA_R2
MA_B0
SA_G4
MA_R1
SA_G7
SA_G3
MA_R0
SA_G2
SA_G1
SA_G0
MA_G7
MA_G6
MA_G5
MA_G4
MA_G3
MA_G2
SA_B7
MA_G1
SA_B6
MA_G0
SA_B5
SA_R7
SA_B4
SA_R6
SA_B3
SA_R5
SA_B2
SA_R4
SA_R3
SA_B1
SA_R2
SA_B0
SA_R1
MA_B7
SA_R0
MA_B6
MA_R7
MA_B5
MA_R6
MA_B4
MA_R5
MA_B3
MA_R4
MA_B2
SA_G6
MA_R3
MA_B1
C9920
16V
0.1u
R9924
0
*Q9011
B1ABCC000004
C9921
16V
0.1u
C9048
16V
0.1u
C9930
16V
0.1u
*Q9012
B1ADCC000004
R9888
0
C9908
16V
0.1u
R9916
0
*R9133
47k
R9922
2.7k
C9914
16V
0.1u
C9924
16V
0.1u
3.3V
*R9116
330
C9916
16V
0.1u
R9917
0
C9905
6.3V
10u
*IC9869
C0FBAD000102
AK5401AVQ
1
DVSS
2
GOUT7
3
GOUT6
4
GOUT5
5
GOUT4
6
GOUT3
7
GOUT2
8
GOUT1
9
GOUT0
10
DVSS
11
DVDD
12
BOUT7
13
BOUT6
14
BOUT5
15
BOUT4
16
BOUT3
17
BOUT2
18
BOUT1
19
BOUT0
20
DVSS
21
DVSS
22
DVDD
23
DVDD
24
TEST
25
PVSS
26
PVDD
27
PVDD
28
PVSS
29
COAST
30
HSYNC
31
VSYNC
32
PVSS
33
FLT
34
PVDD
35
PVDD
36
AVSS
37
BIAS
38
CLAMP
39
AVDD
40
AVSS
41
AVSS
42
AVDD
43
BIN
44
AVSS
45
AVDD
46
AVDD
47
AVSS
48
GIN
49
SOGIN
50
AVSS
51
AVDD
52
AVDD
53
AVSS
54
RIN
55
A0
56
SCL
57
SDA
58
BYPASS
59
AVDD
60
AVSS
61
AVSS
62
AVDD
63
RESET
64
VSYNCO
65
SOGOUT
66
HSYNCO
67
DTCLK
68
DVSS
69
DVDD
70
ROUT7
71
ROUT6
72
ROUT5
73
ROUT4
74
ROUT3
75
ROUT2
76
ROUT1
77
ROUT0
78
DVDD
79
DVDD
80
DVSS
C9909
16V
0.1u
R9911
75
C9906
6.3V
10u
R9907
0
C9912
6.3V
10u
P5V
*R9124
10k
*R9130
10k
R9912
75
*C9895
16V
0.1u
R9184
0
R9913
75
C9926
50V 8200p
R9906
0
*R9111
47k
IC9868
C0CBCBD00008
1 Vcont
2 GND
3Np
5
Vin
4
Vout
*R9082
10k
IC9867
C0CBCBD00008
1 Vcont
2 GND
3Np
5
Vin
4
Vout
R9886
0
C9929
16V
0.1u
R9921
0
*R9918
6.8k
C9918
50V
0.01u
C9910
16V
0.1u
*R9106
10k
*C9922
6.3V
10u
R9920
0
P5V
C9049
16V
4.7u
C9915
50V
0.01u
C9925
16V
0.082u
*IC9861
C0JBAZ001992
1
NC
2
1A1
3
1A2
4
1A3
5
1A4
6
1A5
7
1A6
8
GND
9
1A7
10
1A8
11
1A9
12
1A10
13
1A11
14
1A12
15
2A1
16
2A2
17
VCC
18
2A3
19
GND
20
2A4
21
2A5
22
2A6
23
2A7
24
2A8
25
2A9
26
2A10
27
2A11
28
2A12
29
2B12
30
2B11
31
2B10
32
2B9
33
2B8
34
2B7
35
2B6
36
2B5
37
2B4
38
GND
39
2B3
40
2B2
41
2B1
42
1B12
43
1B11
44
1B10
45
1B9
46
1B8
47
1B7
48
1B6
49
GND
50
1B5
51
1B4
52
1B3
53
1B2
54
1B1
55
2OE
56
1OE
C9907
16V
0.1u
C9913
16V
0.1u
*R9127
1k
P5V
C9931
16V
0.1u
*C9894
6.3V
10u
C9919
50V
1000p
*Q9013
B1ABCC000004
C9911
6.3V
10u
*Q9010
B1ADCC000004
*IC9860
C0JBAZ001992
1
NC
2
1A1
3
1A2
4
1A3
5
1A4
6
1A5
7
1A6
8
GND
9
1A7
10
1A8
11
1A9
12
1A10
13
1A11
14
1A12
15
2A1
16
2A2
17
VCC
18
2A3
19
GND
20
2A4
21
2A5
22
2A6
23
2A7
24
2A8
25
2A9
26
2A10
27
2A11
28
2A12
29
2B12
30
2B11
31
2B10
32
2B9
33
2B8
34
2B7
35
2B6
36
2B5
37
2B4
38
GND
39
2B3
40
2B2
41
2B1
42
1B12
43
1B11
44
1B10
45
1B9
46
1B8
47
1B7
48
1B6
49
GND
50
1B5
51
1B4
52
1B3
53
1B2
54
1B1
55
2OE
56
1OE
STB3.3V
*R9898
0
R9186
10k
R9919
0
C9917
50V
0.01u
*R9136
330
*C9923
16V
0.1u
*R9100
1k
R9936
0
R9893
0
C3FBKD000268
*IC9006
1
A15
2
A14
3
A13
4
A12
5
A11
6
A10
7
A9
8
A8
9
N.C.
10
N.C.
11
WE
12
RESET
13
N.C.
14
N.C.
15
RY/BY
16
N.C.
17
A17
18
A7
19
A6
20
A5
21
A4
22
A3
23
A2
24
A1
25
A0
26
CE
27
VSS
28
OE
29
DQ0
30
DQ8
31
DQ1
32
DQ9
33
DQ2
34
DQ10
35
DQ3
36
DQ11
37
VCC
38
DQ4
39
DQ12
40
DQ5
41
DQ13
42
DQ6
43
DQ14
44
DQ7
45
DQ15/A-1
46
VSS
47
BYTE
48
A16
*R9933
EXB2HVR000V
*R9932
EXB2HVR000V
*R9934
EXB2HVR000V
100MHz
SN74CBT16211ADGGR
SN74CBT16211ADGGR
REG 3.3V
REG 3.3V
BUS SWITCH
A/D (MAIN)
4M FLASH ROM
1711 14 1512 16 1810 13
(8/12)
TO
D-BOARD
10
9
8
7
2
3
1
5
6
4
25
25
23
22
27
AE AFADAA AB AC
PHW7 ONLY
24
21
TZTNP01VNSU (TH-50PHW7BX/EX)
(2/12)
D-BOARD
!
TZTNP020VDS (TH-50PHD7BK/BS/EK/ES/UY)
BUS SWITCH
TH-50PHD7BK/BS/EK/ES/UY, TH-50PHW7BX/EX
D-Board (2 of 12) Schematic Diagram TH-50PHD7BK/BS/EK/ES/UY, TH-50PHW7BX/EX D-Board (2 of 12) Schematic Diagram
TH-50PHW7BX / TH-50PHW7EX / TH-50PHD7EK / TH-50PHD7ES / TH-50PHD7BK / TH-50PHD7BS / TH-50PHD7UY
82

Table of Contents

Related product manuals