EasyManua.ls Logo

Panasonic TH-50PHW7BX - PF and P-Board Block Diagram

Panasonic TH-50PHW7BX
159 pages
Print Icon
To Next Page IconTo Next Page
To Next Page IconTo Next Page
To Previous Page IconTo Previous Page
To Previous Page IconTo Previous Page
Loading...
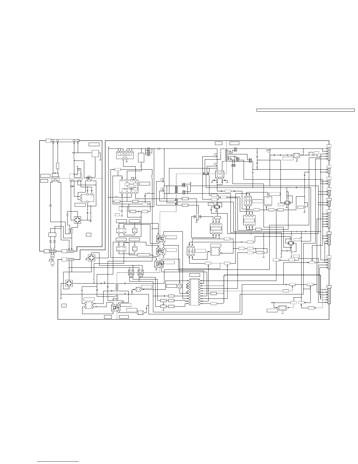
15.3. PF and P-Board Block Diagram
-+
- +
- +
D911
L930
TP931
IC920
D910
1
3
2
F900
F901
D404
D401
350V
D409
D510
D511
D557
350V
L403
F405
PR401
Q414
Q415
Q412
Q413
D419
D420
D539
D537
DC180V
X501
4NHz
D563
D531
Q527
D534
D536
R443
D564
R661
1
2
3
R608
PR510
D549
D554
R641
TP930
LF904
D410
D545
D544
D543
D532
R665
D561
D551
PR509
D535
Q514
D530
D555
D521
F902
F902
12 56
STB+5V
TO J-BOARD
J10
PF10
F.STB ON/OFF
F.STB+14V
F.STB+14V
Q930
SW
14V
10
8
6
4
2
1
ERROR DET
T920
CONTROL
FULL WAVE
RECTIFIER
AC INLET
AC PLUG
LIVE
NEUTRAL
41
LIVE
NEURTAL
PF9
41
P9
8
6
T410
5
IC409
4
4
3
2
1
1
23
4
IC408
14
15
13
10
31
IC504
4
2
1
3
1
3
4
2
1
3
4
2
IC404
IC403
IC401
398
14
42
16
10
T401
5876
VCC
MOS
DRIVE
CURR
DET
CURR
COMP
2134
Q407
PFC
Q420
Q401
Q404
Q406
L402
D415
IC406
IC930
IC910
POWER
FACTOR
CONTROL
4
10
1
T405
2
2
5
9
11
6
7
T403
5
4
9
2
10 6
T402
Q504
3
RL403
RL402
Q535
Q501 Q522
Q503Q502
8
6
10
7
5
9
2
3
4
1
11
15
20
14
18
19
12
13
17
16
VDD
VSS
XIN
XOUT
RESET
P21
P20
D3
D2
P00
P01
P02
P03
P10
P11
P12
P13
D0
D1
IC501
1
3
IC502
RESET
CLR
PR
7
31
6
Q
CK
2
D
IC521
5
Q
Q515
Q525
Q528
13
64
IC522
2
5
1
46
Q512
Q551
Q513 Q506
Q511
3
T407
5
11
2
9
12
8
T404
14
13
7
Q519
Q545
Q518
Q510
IC512
13
64
IC520
Q
CK
2
D
IC523
5
Q
CLRPR
7
31
6
Q516
Q540
Q521
Q541 Q509
Vlow
Vsus
Csus
1
2
4
Vda
TO SS-BOARD
SS12
P12
Vda
+15V
+15V
1
2
P7
+15V
+12V
TO Z-BOARD
1
2
6
Z5
P5
+12V
+12Vs
3
STB5V
+12Vs
7
+12Vs
8
1
+15V
2
+15V
P23
TO SC-BOARD
SC23
SS11
P11
3
2
Vsus
TO SS-BOARD
TO SC-BOARD
P2
SC2
2
1
Vsus
Vsus
Vsus
PS SOS
ALL OFF
4
8
STB5V
TO D-BOARD
FAN SOS
2
7
P27
D27
TV ON/OFF
6
2
+12V
TO D-BOARD
+5V
1
6
P25
D25
+12V
5
Q544
PS SOS
TV ON/OFF
ALL OFF
Q421
POWER MCA
COLD
HOT
COLDHOT
COLDHOT
PF
Line
P
Power
Filter
Board
Supply
Board
14
PF1
10
STB_PS
11
RL920
FILTER
LF902
LINE
LF901
4
1
6
D
FB
5
VCC OCP
3
S
21
5
13
4
IC411 IC410
1
2
Q417,Q408
1
42
1
5
3
IC405IC402
Q422
Q418
DC75V
10
8
STB12
Vda
DC15V
DC12V
Q542
4
13
IC524
-+
Q520
IC525
Q550
+5V
Z10
+15V
FAN SOS
5
4
3
P10
+5V
TO Z-BOARD
FAN CONT
1
Q536
3
FAN CONT
3
+-
1
4
Q508 Q524
Q538Q537
12
IC507
TV ON/OFF
PS SOS
ALL OFF
Q555
Q553
Q554
Q552
Q547
2
31
IC503
Csus
REF K
2
31
TH-50PHD7BK/BS/EK/ES/UY, TH-50PHW7BX/EX
PF and P-Board Block Diagram
TH-50PHD7BK/BS/EK/ES/UY, TH-50PHW7BX/EX
PF and P-Board Block Diagram
TH-50PHW7BX / TH-50PHW7EX / TH-50PHD7EK / TH-50PHD7ES / TH-50PHD7BK / TH-50PHD7BS / TH-50PHD7UY
61

Table of Contents

Related product manuals