EasyManua.ls Logo

Panasonic TH-58PH10BK - SC-Board (2 of 3) Schematic Diagram

Panasonic TH-58PH10BK
145 pages
Print Icon
To Next Page IconTo Next Page
To Next Page IconTo Next Page
To Previous Page IconTo Previous Page
To Previous Page IconTo Previous Page
Loading...
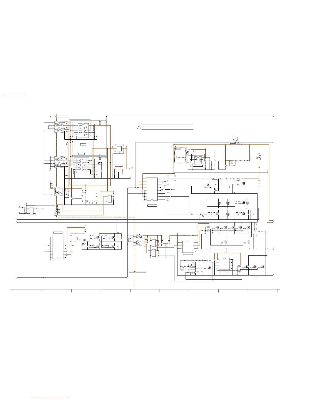
14.42. SC-Board (2 of 3) Schematic Diagram
+
+
+
+
AB_PROU
AB_FSIU
AB_FSID
AB_FCLU
AB_FCLKU
AB_FCLKD
AB_PROD
AA_SIU
AA_SID
AA_SCSU
AA_CEL
AB_FCLD
AA_OC2
AA_DRV_RST
AA_CPH2
AA_CBK
AA_CML
AA_OC1
AA_CLK
AA_CPH1
D6561
B0ECKP000047
R6710
2.2k
C0JBAA000377
IC6472
1
IN_B
2
IN_A
3
GND
5
VCC
4
OUT_Y
D6637
B0JCME000037
L6690
G0ZZ00002183
Q6690
2SA19610QAHW
C0JBAA000377
IC6774
1
IN_B
2
IN_A
3
GND
5
VCC
4
OUT_Y
D6624
B0HDSM000005
D6641
B0HCKS000002
D6861
MAZ80510LL
VSET_S
R6605
1.8k
R6645
33
R6777
150
Q6674
B1DFDR000001
G
D
S
R6624
220
R6674
47
D6605
MAZ80510LL
5V_F
C6861
16V
1u
Q6762
B1ADPF000004
R6675
47
C0ZBZ0000895
IC6481
1
LO
2
GND
3
VCC
4
NC
5
NC
6
VS
7
VB
8
HO
9
NC
10
NC
11
NC
12
HIN
13
NC
14
LIN
15
GND
16
NC
R6694
27k
C6721
50V
100u
PC6480
B3PBA0000223
12
34
C6579
220V
200u
R6732
47
D6626
B0HDSM000005
C6702
50V
0.1u
VSCN_F
Q6649
2SK399500L
R6668
4.7k
R6663
10k
Q6572
B1DFKM000002
G
D
S
5V
Q6647
2SK399500L
R6482
100
R6722
EXB38V220JV
R6861
51k
D6601
MAZ82400ML
R6702
470
Q6621
2SK399500L
Q6680
B1ADPF000004
Q6782
B1ADPF000004
D6729
MAZ80560HL
C0JBAA000377
IC6773
1
IN_B
2
IN_A
3
GND
5
VCC
4
OUT_Y
C6773
25V
4.7u
C6722
50V
100p
16V_F
Q6742
2SD0601A0L
VBK
D6497
B0ECKP000047
C6753
25V
4.7u
D6690
MA2J11100L
R6647
33
D6767
B0ECKP000047
C6604
630V
1000p
R6631
10
C6480
50V
0.1u
L6572
J0JJC0000015
C6723
25V
4.7u
D6619
B0HCKS000002
C0DBEKA00003
IC6471
1
NC
2
A
3
K
5
A
4
REF
R6489
47k
R6658
100
R6713
2.2k
C6726
16V
1u
C6752
25V
1u
C6571
630V
1000p
R6716
2.2k
R6476
4.7k
IC6722
C0JBAZ000994
1
1A
2
1Y
3
2A
4
2Y
5
3A
6
3Y
7
GND
8
4Y
9
4A
10
5Y
11
5A
12
6Y
13
6A
14
VCC
D6628
B0HDSM000005
5V
15V_F
D6731
MAZ80560HL
D6571
B0JCME000037
R6700
470
L6571
J0JJC0000015
D6630
B0HDSM000005
Q6573
B1DFKM000002
G
D
S
D6643
B0JCME000037
D6663
MAZ83300ML
R6867
3.9k
15V
R6776
100
Q6645
2SK399500L
C6472
50V
100p
R6570
1
SOS7_SC2
IC6772
C0ZBZ0001325
1
Vcc
2
IN
3
GND
4
LO
5
NC
6
VS
7
HO
8
VB
R6607
6.65k
R6488
10
VSET
R6692
4.7k
R6705
100
C6777
50V
0.1u
Q6601
B1DFES000003
G
D
S
C6695
50V
1000p
SOS7_SC2
Q6743
2SD0601A0L
D6692
MAZ82000ML
C6606
630V
5600p
Q6603
2SB0709ASL
IC6721
C0JBAZ000994
1
1A
2
1Y
3
2A
4
2Y
5
3A
6
3Y
7
GND
8
4Y
9
4A
10
5Y
11
5A
12
6Y
13
6A
14
VCC
VSCN_F
C6862
25V
1u
R6671
47
Q6662
2SD0601A0L
C6620
1kV
3900p
C6482
25V
4.7u
R6761
10
R6781
47
R6473
560
R6660
220k
D6574
B0JCME000037
C6704
50V
0.1u
R6731
47
R6475
4.7k
R6653
33
D6725
B0ECKP000047
C6806
160V
100u
D6722
MA2J11100L
C6863
50V
0.01u
L6573
J0JJC0000015
D6743
MA2J11100L
Q6641
2SK399500L
C6708
50V
0.1u
C6775
25V
4.7u
D6726
MAZ80560HL
16V_F
Q6602
2SD0601AQL
5V
D6691
MAZ82000ML
D6862
MA2J11100L
R6637
10
D6732
MAZ80560HL
D6563
B0ECKP000047
TP64
D6478
B0HCKS000002
L6474
G0ZZ00002183
Q6665
B1ABPF000014
C6725
25V
4.7u
C6621
1kV
3900p
R6571
10
R6696
2.2
L6574
J0JJC0000015
R6746
10k
R6706
100
PC6702
B3PBA0000233
1
2
3
45
6
7
8
R6612
47
R6704
470
75
R6766
VSET2
C6605
630V
5600p
Q6661
B1DEET000002
G
D
S
IC6771
C0CBADC00072
VIN 3
2
COM
VOUT
1
R6621
220
Q6624
2SK399500L
1
R6765
R6695
120k
16V_F
Q6561
B1ABPF000014
C6661
630V
1000p
VR6602
5k
1
2
3
R6862
51k
R6649
33
R6714
2.2k
R6629
33k
R6477
100
D6477
MA2J11100L
C6691
160V
100u
Q6656
2SK399500L
R6662
2.2k
D6661
MA2J11100L
R6863
56k
R6481
100
D6607
MA2J11100L
R6866
620
D6606
B0HCMM000014
D6662
MAZ83300ML
VF_GND
C6481
25V
4.7u
R6665
47
R6659
220k
R6743
3.3k
R6708
470
D6644
B0HCKS000002
D6604
MA2J11100L
R6634
10
PC6705
B3PBA0000397
1
2
3
45
6
7
8
1
R6768
R6472
2.2k
IC6724
C0CBADC00072
VIN 3
2
COM
VOUT
1
R6664
2.2k
R6609
1k
R6474
1k
D6480
MA2J11100L
R6869
4.7k
C6485
4.7u
25V
R6721
EXB38V220JV
R6718
2.2k
R6693
82k
D6761
B0JCME000037
R6717
2.2k
C6603
630V
1000p
R6610
100k
R6574
10
C6771
16V
1u
D6773
B0HCKS000002
R6868
22k
D6631
B0JCME000037
Q6562
B1ADPF000004
C6662
630V
1000p
R6667
4.7k
R6487
75
C6724
25V
4.7u
R6745
4.7k
D6733
MAZ80560HL
D6764
B0HCKS000002
R6572
10
PC6701
B3PBA0000233
1
2
3
45
6
7
8
VF_GND
R6762
47k
D6820
MA2J11100L
D6728
MAZ80560HL
D6634
D6572
B0JCME000037
C6727
16V
1u
R6639
1
R6723
1.8k
Q6679
B1ABPF000014
R6742
10k
Q6574
B1DFKM000002
G
D
S
15V
R6701
470
D6665
MAZ80510LL
C6776
50V
0.1u
IC6671
C0ZBZ0001325
1
Vcc
2
IN
3
GND
4
LO
5
NC
6
VS
7
HO
8
VB
D6667
MA2J11100L
D6721
B0HCKS000002
D6765
B0ECKP000047
R6711
2.2k
IC6861
C0BBBA000022
1
2
3
45
6
7
8
D6701
MAZ80560HL
D6664
MAZ83300ML
R6627
220
R6608
1k
Q6781
B1ABPF000014
D6666
MA2J11100L
R6661
100k
C6641
1u
250V
C6756
25V
4.7u
Q6653
2SK399500L
R6638
1
R6490
47k
C6706
50V
0.1u
R6865
3.3k
R6643
33
R6703
470
5V
15V_F
R6485
1
R6734 47
R6769
75
D6602
MAZ82400ML
C6572
630V
1000p
IC6725
C0CBADC00072
VIN 3
2
COM
VOUT
1
D6727
MAZ80560HL
D6730
MAZ80560HL
C6772
25V
4.7u
PC6861
B3PBA0000223
12
34
R6573
10
R6672
47k
R6864
6.8k
C6671
25V
4.7u
D6742
MA2J11100L
R6733
47
C6703
50V
0.1u
R6747
10k
R6775
100
R6782
47k
R6666
100k
R6641
33
Q6673
B1DFDR000001
G
D
S
R6707
470
D6642
B0HCKS000002
Q6571
B1DFKM000002
G
D
S
Q6672
B1DFDR000001
G
D
S
R6471
3.9k
D6766
B0ECKP000047
C6755
25V
4.7u
R6712
2.2k
R6676
47
C6705
50V
0.1u
MAIN_STOP
Q6627
2SK399500L
R6656
33
C6694
25V
1u
C0ZBZ0001324
IC6752
1
LO
2
Vcom
3
VCC2
4
NC
5
NC
6
VS
7
VB
8
HO
9
NC
10
NC
11
VCC
12
HIN
13
NC
14
LIN
15
GND
16
NC
D6573
B0JCME000037
Q6643
2SK399500L
PC6703
B3PBA0000234
1
23
4
5
AND
FLOATING GNDCOLD
FLOATING GNDCOLD
COLD
FLOATING GND
TPVSET
TPSC1
INIT-F
INIT-F
-
-+
+
12 1513 1710 14 1611 18
VBK Gen.
FET DRIVER
BUFFER
BUFFER
VSET SEPARATE
FET DRIVER
COMPARATOR
OPERATES AT
160V OR MORE AND
121V OR LESS.
Vscn DET
FET DRIVER
VAD SEPARATE
VAD CONT
FET DRIVER
+5V(SC1)
+5V(SC2)
SC-BOARD TXNSC1XDTE (2/3)
!
1
2
3
11
12
13
14
15
16
*
AND
AND
TH-58PH10BK/EK
SC-Board (2 of 3) Schematic Diagram
TH-58PH10BK/EK
SC-Board (2 of 3) Schematic Diagram
TH-58PH10BK / TH-58PH10EK
108

Table of Contents

Related product manuals