EasyManua.ls Logo

Panasonic TH-58PH10BK - DN-Board (1 of 2) Block Diagram

Panasonic TH-58PH10BK
145 pages
Print Icon
To Next Page IconTo Next Page
To Next Page IconTo Next Page
To Previous Page IconTo Previous Page
To Previous Page IconTo Previous Page
Loading...
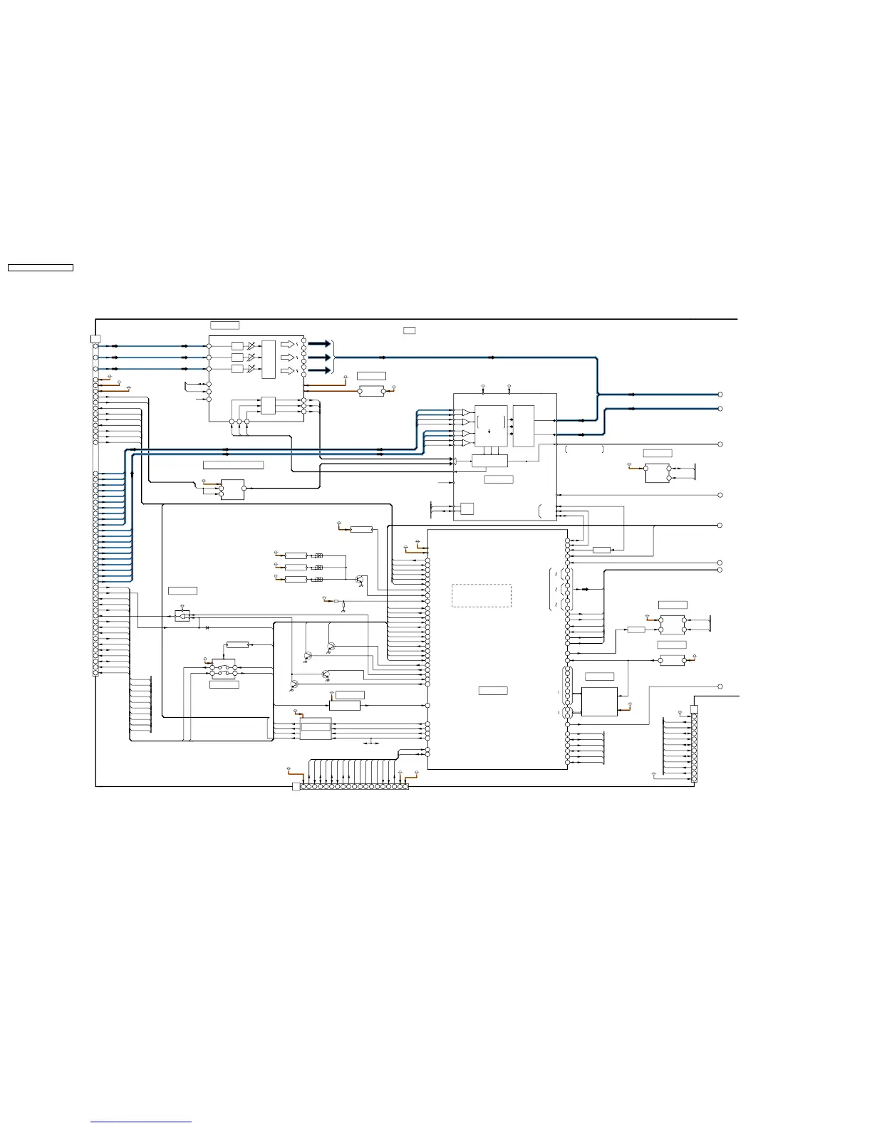
14.18. DN-Board (1 of 2) Block Diagram
LED_R
IIC_CONT
SDA1
VD
LED_G
P3V_SDA2
ALARM
REMOCON
REMOCON_OUT
5VRXD_TU
P3V_SCL2
CLK
HD
OSD-HDIN
PSTB
3V_SCL1
IIC_CONT
AC_GOOD
3V_SDA3
NRST
3V_SDA1
TXD
IIC_INT
3V_SDA3
RXD_PC
P3V_SDA2
TXD_PC
LED_G
RXD_PC
UART_SW
5VRXD_TU
OSD-VDO
SCL1
FAN_CONT
LVDS_PD
OSD0-15
POWER_STATUS
FAN_SOS
IIC_CONT
PDB1
P3V_SDA2
SOUND_MUTE
UART_SW
STB_ON
REMOCON
TXD_PC
PSLCT
P3V_SCL2
RXD_PC
3V_SCL1
CABLE_DET
STB_ON
3V_SCL3
OSD_YM
LED_R
3V_SDA3
3V_SCL1
SDA2
3V_SCL3
DPMS_HD
CABLE_DET
LED_G
POWER_STATUS
DPMS_VD
3V_SDA1
LED_G
READY
SCL2
5VTXD_TU
KEY_INPUT
LED_R
IIC_CONT
RXD_PC
HD
ALLOFF
3V_SDA3
5VTXD_TU
P3V_SCL2
VD
PDB0
IIC_CONT
RTC_INT
PBUSY
P3V_SDA2
3V_SDA1
3VRXD_TU
RTC_INT
IIC_INT
CLP
P3V_SCL2
VD-M
P3V_SCL2
OSD-CLKIN
3V_SCL3
IIC_CONT
TXD_PC
NRST
RXD
HD-M
TXD_PC
LED_R
OSD_YS
3V_SDA1
IIC_INT
3V_SCL1
OSD-HDO
NRST
SOUND_MUTE
3V_SDA1
RXD
5VRXD_TU
DPMS_HD
DPMS_VD
TXD
3V_SCL3
KEY_INPUT
IIC_INT
3V_SCL1
SDA1
5VTXD_TU
P3V_SDA2
DISPEN
RXD_PC
3VTXD_TU
PANEL_STBY_ON
SCL1
TXD_PC
STB+3.3V
STB+5V
P+5V
D4713
Q4803
STB+5V
+3.3V
STB+1.5V
D4712
STB+3.3V
+3.3V
STB+3.3V
+3.3V
P+5V
STB+5V
+2.5V
P+15V
STB+5V
Q4707
+1.5V
+2.5V
Q4706
STB3.3V
Q4705
STB+3.3V
STB+3.3V
Q4802
D4711
+3.3V
P+15V
P+5V
STB+3.3V
STB+3.3V
STB+3.3V
STB5V
D_STB+3.3V
129
65
DATA
STB5V
16
PDB0
IIC_BUS
VSYNC
TTL
HD
IIC_CONT
7
Voltage
Q4712
R0
SCL2
25
50
IIC_BUS
PDB1
A0
122
IC4703
8M FLASH MEMORY
SDA0B
41
2
94
1
109
IC4715
162
VCC
POWER STATUS
82
41
RXD
51
YSOUT
48
+2.5V SOS
MN-RX0+
CLKM_IN
R,G,B MAIN VIDEO 24bit
24
+3.3V SOS
158
ALLOFF
PARALLEL
47
OSDKXI
73
6
CLK
46
TXD_PC
MN-RX1+
89
115
VCLKOUTA
Pr/R IN
84
S-X1-
MN_CLK+
IIC_INT
OUT
1
M-XCLK-
7
SB-CLK-
119
VCC
STBY5V
134
VOUT
G
SB_RX0-3+
MN-RX1-
35
1
IIC_CONT
MCLD
SB-RX3-
LED_R
P+15V SOS
SB_CLK-
2
SCL0B
8
SCL1
37
IC4721
18
62
69
IC4002
Y/G IN
6
SDA1
CABEL_DET
IC4704
25
IIC_INT/BOOT
6
LV DS
35
5
NRST
STB3.3V
RGB
MCLD
SB-RX0+
TXD
MICOM
2
64
5
68
IICBUS
CLP
G7
HD,VD,DCK
Y
56
PSTB
HD,VD,DCK
MICOM
COMMU
MN_RX0-3+
118
SB-RX3+
SB-CLK+
4
54
30
3
RXD_TU
12
32
VDD
DRV_MUTE
R
TTL S/P
R,G,B SUB VIDEO 24bit
3.3V
42
STB5V
LEVEL CONVERTER
S-XCLK+
P+5V SOS:LED 5TIMES
B
B(8Bit)
M-X2-
90
8
TXD
HD-M/VD-M
11
8
SDA3
CLP
IIC_CONT
VD-ADM,HD-ADM,CLP-M
A/D CONVERTER(MAIN)
R
SDA2
171
M-X2+
RESET
RMIN
28
B
HD-M/VD-M
M-X3-
104
REMOCON OUT
REMOCON OUT
SDA2
CLP
4
76
SCL2
RECEIVER
LED_G
RXD_PC
STB3.3V
HOUTA
OSD
AVR 3.3V
36
S-X2+
VDO-S,HDO-S,DCK-S
MC D ATA
S-X0+
SDA1
11
MN-RX2-
DTCLK
R,G,B
IIC_BUS
MAIN VIDEO
140
LED_R
2.5V
5
61
97
REMOCON INH
R(8Bit)
FAN_SOS
Pb/B IN
LED_R
MCCLK
6
77
14
RXD
7
FPGA/ASIC
S-XCLK-
TO DS1
KEY_INPUT
5V->3.3V
LED_G
MCDATA
DN
A
86
IC4031,IC4032
M-XCLK+
VDD
ALARM
M-X0+
IIC
MICON
Y
57
S-X3+
CABEL_DET
1
8
161
165
5V->3.3V
IC4711
FAN CONT
5V<-3.3V
AC_GOOD
63
SDA
IIC_BUS
48
IIC_CONT
139
TEMP SENSOR
57
R7
36
LVDS RECEIVER
2
1
DPMS_HD
SDA3
SYNC SIGNAL CONTROL
26
SCL1
YMOUT
+2.5V DET
OR GATE
30
R,G,B
19
PICTURE
14
P+15V SOS:LED 2TIMES
SDA1
ADC
SCL2
24
VCC
D00
VD
96
38
SDA
STB_ON
5
P_ON/OFF
120
MN_RX0-3-
CLK
39
HD,VD,DCK
B
D15
RESET
SB-RX2+
MAIN VIDEO
SDA1
B7
TXD_TU
MN_CLK-
IC4702
SCL
SB_CLK+
NRST
27
80
VDD
SOUND MUTE
130
DN1
34
A
92
Q4704
8
21
RTC_INT
4
5
+1.5V SOS
READY
G0-G7
1
SOUND_MUTE
54
SDA0A
NRST
LED_G
B0-B7
UART_SW
VCC
5V
DPMS_VD
G/Y-M
14
69
IC4803
6
4
5
DN4
B04
43
121
33
7
12
NRST-FP
OSD
R04
42
CLAMP
4
P+5V SOS
EEPROM
Signaling
IIC_INT
RESETN
DPMS_VD
110M
66
NRST-FP
5V<-3.3V
Differential
LEVEL CONVERTER
SCL3
68
SCL1
B0
P+5V SOS
VSYNC
G0
4
59
1
LVDS_PD
G05
12
SB-RX2-
DN
11
110
SCL1
SCL3
29
CLK1
SB-RX0-
IIC_BUS
101
MN-CLK+
SCL
37
SB-RX1-
TXD_TU
TXD_PC
4
R00
B
9
M-X0-
G
31
S-X3-
18
44
65
24bit
HD,VD,DCK
P15V
RESET
IC4701
MN-CLK-
SYNC
SEPA
65
10
MN-RX0-
G00
IC4201
NRST
170
44
88
CONT
31
8BIT
19
43
IIC_BUS
P+3.3V SOS
HSYNC
87
PBUSY
M-X1+
TV_ON/OFF
A18
CLP
+15V DET
S-X2-
33
7
EEPROM_WP
16
SUB VIDEO
MN-RX3-
57
Q4713,14
29
7
45
R0-R7
SERIAL SWICTH
(SBI1)
Q4701
DIGITAL SIGNAL PROCESSOR
20
(SBO1)
LEVEL CONVERTER
9
B0-B7
13
24
SCL0A
RXD_PC
56
15
R/PR-M
7
Low
R0-R7
B/PB-M
6
G(8Bit)
5
SDA2
HD,VD
40
G0-G7
+3.3V SOS:LED 3TIMES
30
IC4714
RTC INT
75
SOS BLINKING TIMES
POWER STATUS
+1.5V DET
HD-M
+3.3V DET
VD-M
CLK3
1
68
166
VDO-M,HDO-M,DCK-M
DPMS_HD
27
2
PSLCT
VCC
VSYNC
11
STBY3.3V
61
23
95
6
B00
12
SCL
7
79
2
MCCLK
Q4801
FOR
FACTORY
USE
M-X1-
13
17
M-X3+
SDA
MN-RX2+
62
NRST
IC4001
RXD_TU
STB_ON
HSYNC
SB_RX0-3-
75
HD,VD
KEY_INPUT
79
132
WC
REMOCON
15
OUTPUT
2
10
22
71
REMOCON
60
SB-RX1+
HSYNC
53
131
S-X0-
24bit
MN-RX3+
CONTROL
9
Q4702
S-X1+
SYNC SIGNAL
Q4703
FOR
FACTORY
USE
TH-58PH10BK/EK
DN-Board (1 of 2) Block Diagram
TH-58PH10BK/EK
DN-Board (1 of 2) Block Diagram
TH-58PH10BK / TH-58PH10EK
84

Table of Contents

Related product manuals