EasyManua.ls Logo

Panasonic TH-58PH10BK - Service Hint

Panasonic TH-58PH10BK
145 pages
Print Icon
To Next Page IconTo Next Page
To Next Page IconTo Next Page
To Previous Page IconTo Previous Page
To Previous Page IconTo Previous Page
Loading...
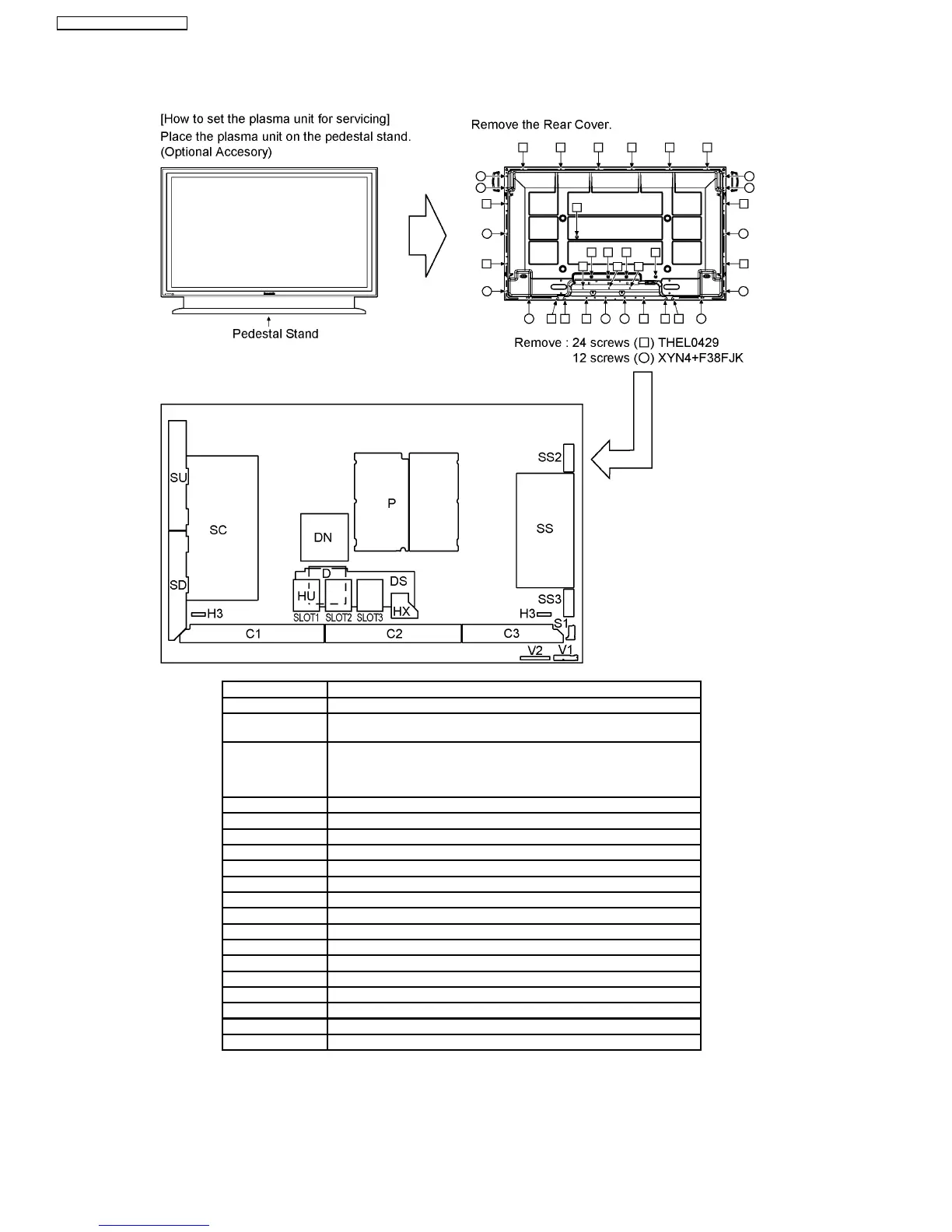
5 Service Hint
Board Name Function
DN Digital Signal Processor, Microcomputer
D Format Converter, Plasma AI Processor
Sub-Filed Processor
DS Slot Interface (Audio / Video / Sync Input Switch),
SYNC Processor, Audio Processor,
Speaker Out Amplifier,
DC-DC Converter
SS Sustain drive
SC Scan drive
SU Scan out (Upper)
SD Scan out (Lower)
C1 Data Drive (Lower Right)
C2 Data Drive (Lower Center)
C3 Data Drive (Lower Left)
H3 Speaker terminal
S1 Power switch
SS2 Sustain out (Upper)
SS3 Sustain out (Lower)
V1 Remote receiver, LED-G, R
V2 Key switch
P Power supply
HX PC / RS-232C Input terminal
HU Dual Video terminal (BNC / S)
Note:
Extension cable kit for Slot Board is supplied as service fixtures and tools.
(Part No. TZSC07040)
8
TH-58PH10BK / TH-58PH10EK

Table of Contents

Related product manuals