EasyManua.ls Logo

Panasonic TH-58PH10BK - D-Board (3 of 6) Schematic Diagram

Panasonic TH-58PH10BK
145 pages
Print Icon
To Next Page IconTo Next Page
To Next Page IconTo Next Page
To Previous Page IconTo Previous Page
To Previous Page IconTo Previous Page
Loading...
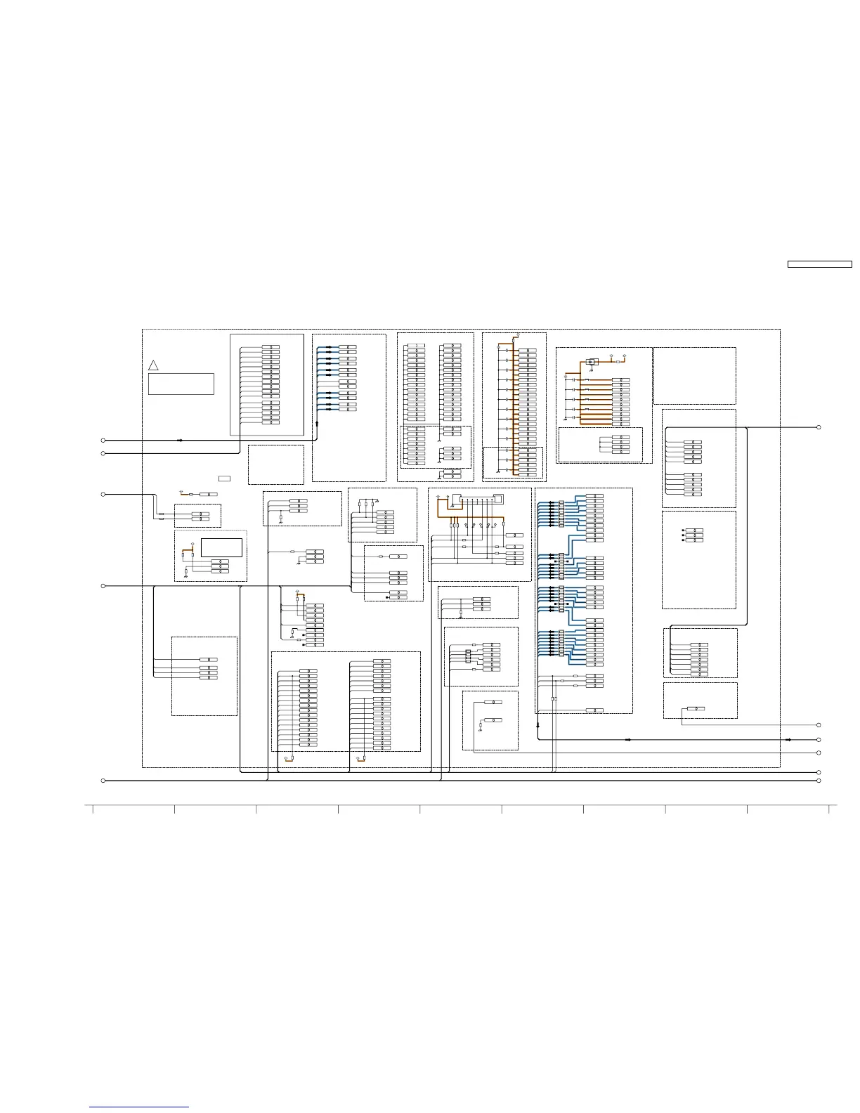
14.29. D-Board (3 of 6) Schematic Diagram
G
G
SOS9_CONF
AA_BYTE
L8R_UA09
L8R_UB06
L8R_UC11
L8R_UA08
L8R_UA12
FVSEL
FP_CSL
FP_CSH
L8R_DA15
FPDAT1
FP_SID
L8R_UC13
L8R_DA14
FP_UMH
L8R_UA06
FP_CPH1
DD_CLRD1
L8R_UA10
FP_SC_DRV_RST
L8R_UC12
L8R_UA07
L8R_UB12
FP_UML
NRST
L8R_UC08
L8R_UA11
FP_CEL
FP_NUEL
L8R_UC05
L8R_UB11
FP_USL
DD_ODED1
L8R_DB15
SFRST
FPCLK FP_USH
FP_SIU
L8R_UB07
LVDSBIT
L8R_UB08
FPDAT0
FP_OC1
DD_PCD2
L8R_UC07
L8R_UB09
SFVRST
LATCH
FP_OC2
DD_PCD1
L8R_UB10
L8R_UB05
L8R_DC15
FP_CML
FP_SCSU
FP_CMH
L8R_UC06
L8R_UC09
DD_LED1
FP_CLK
PSLCT
PBUSY
NCS
DATA0
ENHMASK
ASDIO
INEXCH
PSTB
PDB1
PDB0
DRVRST
L8_B9
L8_B7
L8_B6
L8_B5
L8_B4
L8_B3
L8_B2
L8_G7
L8_G6
L8_G5
L8_G4
L8_G3
L8_G2
L8_G1
L8_G0
L8_R7
L8_R6
L8_R5
L8_R4
L8_R3
L8_R2
L8_R1
L8_R0
DRVMUTE
L8_DCK
L8R_UC10
P3V_SCL02
P3V_SDA02
DD_ODED2
AA_XOE
AA_XWE
DCLK
FP_LAT
OSD_R
OSD_G
OSD_B
OSD_YS
L8_VIN
L8_HIN
OSD_VO
OSD_HO
OSD_CLKO
NCS_FPGA
L8_R8
L8_R9
L8_G8
L8_G9
L8_B0
L8_B1
L8_B8
TDO_TO_FPGA
DD_PCD3
DD_PCD4
FP_UEH
FP_URH
FP_CBK
FP_CPH2 RA+
RA-
RB+
RB-
RCLK+
RCLK-
RD+
RD-
RE+
RE-
DD_LED2
DD_CLRD2
RC+
RC-
DCLK
DATA0
ASDIO
TDI_TO_68
TRST
TMS
TCK
AA_XCE
IC9500 J13 MSEL0
IC9500 P4 IO
IC9500 M8 GND
IC9500 F9 IO
IC9500 G7 IO
IC9500 M2 IO
R9545
300k
IC9500 F15 IO
P3.3V
R9553
0
IC9500 T7 IO
IC9500 K13 IO
IC9500 J16 CLK7
IC9500 T3 IO
IC9500 L13 CONF_DONE
C9564
16V
0.1u
IC9500 H8 GND
IC9500 K12 MSEL1
C9516
16V0.1u
IC9500 C6 IO
IC9500 R10 IO
IC9500 L9 IO
IC9500 D15 IO
IC9500 K3 VCCIO1
IC9500 B3 IO
IC9500 K16 IO
IC9500 K7 IO
IC9500 J1 CLK3
IC9500 T9 IO
IC9500 E13 IO
R9523
10k
IC9500 C7 VCCIO2
IC9500 J6 IO
D9
1
2
3
4
5
6
7
R9541
10k
IC9500 D16 IO
IC9500 J11 IO
IC9500 B5 IO
R9549
10k
C9528
16V 0.1u
IC9500 R13 IO
IC9500 E1 IO
IC9500 F8 IO
IC9500 P2 IO
P3.3V
IC9500 C3 IO
IC9500 K8 VCCINT
IC9500 K2 IO
C9518
16V
0.1u
IC9500 R5 IO
IC9500 C12 IO
IC9500 M13 nSTATUS
R9548
10k
R9402
0
R9544
10k
IC9500 K6 IO
R9565
EXB2HV470JV
IC9500 R16 VCCIO3
IC9500 P14 IO
IC9500 A2 VCCIO2
IC9500 C5 IO
C9523
16V 0.1u
IC9500 C15 IO
R9564
EXB2HV470JV
IC9500 D13 IO
IC9500 N4 IO
IC9500 G11 IO
R9554
0
P3.3V
C9560
16V
0.1u
IC9500 A6 IO
L9505
J0JHC0000078
C9527
16V 0.1u
IC9500 H5 TDI
IC9500 D4 IO
IC9500 N12 IO
IC9500 N5 GND_PLL1
IC9500 F3 IO
IC9500 A13 IO
IC9500 P13 IO
IC9500 H3 GND
IC9500 T13 IO
IC9500 M11 IO
R9526
0
IC9500 B14 IO
IC9500 T6 IO
IC9500 N2 IO
IC9500 F13 IO
IC9500 J15 CLK6
IC9500 F11 VCCD_PLL2
IC9500 D8 IO
C9562
16V
0.1u
IC9500 M1 IO
IC9500 P5 IO
IC9500 R8 IO
IC9500 H15 CLK5
IC9500 R1 VCCIO1
IC9500 G14 VCCIO3
IC9500 B9 IO
R9558
0
IC9500 L7 IO
IC9500 H11 IO
IC9500 P15 IO
IC9500 P12 IO
IC9500 A7 IO
IC9500 K11 IO
IC9500 H16 CLK4
IC9500 G4 IO
C9563
16V
0.1u
IC9500 B7 IO
IC9500 D10 IO
IC9500 E3 IO
IC9500 B12 IO
P2.5V_ASIC
IC9500 M4 IO
IC9500 H6 IO
R9569
0
IC9500 A15 VCCIO2
IC9500 D6 IO
IC9500 M10 VCCIO4
IC9500 L1 IO
IC9500 G6 IO
IC9500 A16 GND
R9536
47
*R9540
10k
IC9500 D11 IO
IC9500 N14 IO
C9517
16V
0.1u
C9524
16V 0.1u
IC9500 F4 IO
IC9500 E10 VCCIO2
IC9500 B1 VCCIO1
IC9500 L4 IO
R9550
10k
IC9500 H9 GND
IC9500 F7 IO
IC9500 L14 IO
IC9500 G3 VCCIO1
IC9500 K15 IO
IC9500 C8 GND
IC9500 T11 IO
IC9500 N15 IO
IC9500 F6 IO
R9956
10k
IC9500 N7 IO
*R9538
10k
IC9500 J3 GND
IC9500 D9 IO
IC9500 C2 IO
IC9500 J12 IO
IC9500 M7 VCCIO4
IC9500 B8 IO
IC9500 C4 IO
IC9500 R11 IO
IC9500 H2 CLK0
IC9500 J4 IO
IC9500 L11 IO
C9559
16V
0.1u
R9530
10k
IC9500 E15 IO
C9519
16V
0.1u
IC9500 N11 IO
R9566
EXB2HV470JV
IC9500 R2 GND
R9531
47
IC9500 J2 CLK2
P3.3V
IC9500 J14 GND
IC9500 A9 IO
C9522
16V
0.1u
IC9500 G13 IO
IC9500 R4 IO
IC9500 L2 IO
IC9500 A4 IO
IC9500 P10 VCCIO4
TP9014
R9567
10k
IC9500 C1 IO
IC9500 M6 GNDA_PLL1
IC9500 T10 IO
IC9500 N10 IO
IC9500 T1 GND
IC9500 H10 VCCINT
R9552
10k
R9525
10k
R9379
0
IC9500 A1 GND
IC9500 H12 IO
FL9504
F1J1E104A148
1
2
3
IC9500 H7 VCCINT
IC9500 J7 VCCINT
IC9500 M5 VCCA_PLL1
IC9500 L16 IO
R9863
10k
IC9500 E14 IO
IC9500 G15 IO
IC9500 B11 IO
IC9500 F2 TCK
R9070
47
IC9500 B13 IO
IC9500 G8 GND
R9510
0
IC9500 G1 TMS
IC9500 K4 IO
IC9500 E6 IO
IC9500 M16 IO
IC9500 K9 GND
IC9500 T14 IO
IC9500 P11 IO
IC9500 E8 GND
R9532
47
IC9500 P1 IO
IC9500 H14 GND
IC9500 A3 IO
C9521
16V
0.1u
P1.2V
IC9500 F14 IO
TP9011
P3.3V
IC9500 T2 VCCIO4
R9562
47
IC9500 J9 GND
R9543
10k
IC9500 R9 IO
IC9500 L5 GND_PLL1
IC9500 L6 VCCD_PLL1
IC9500 T8 IO
IC9500 D12 GND_PLL2
IC9500 P6 IO
IC9500 N3 IO
IC9500 G12 IO
IC9500 A14 IO
IC9500 D2 IO
IC9500 E5 IO
IC9500 J5 nCONFIG
IC9500 R6 IO
IC9500 T16 GND
IC9500 N6 IO
IC9500 C11 IO
P3.3V
IC9500 J10 VCCINT
IC9500 G9 VCCINT
IC9500 K10 IO
R9563
EXB2HV470JV
C9526
10V
10u
IC9500 C9 GND
IC9500 L15 IO
IC9500 N8 IO
IC9500 N13 IO
IC9500 R12 IO
IC9500 G10 IO
IC9500 M3 IO
IC9500 C13 IO
IC9500 P7 VCCIO4
R9535
47
IC9500 D5 IO
IC9500 E12 VCCA_PLL2
L9502
J0JHC0000078
IC9500 B15 GND
IC9500 M14 IO
C9520
16V
0.1u
IC9500 E16 IO
IC9500 E9 GND
R9534
EXB38V470JV
TP9015
IC9500 L3 IO
IC9500 A10 IO
IC9500 D3 IO
IC9500 F1 DATA0
IC9500 N1 IO
IC9500 L12 IO
IC9500 M12 IO
IC9500 P9 GND
IC9500 E11 GNDA_PLL2
IC9500 F12 GND_PLL2
IC9500 G2 TDO
R9507
0
IC9500 K1 IO
IC9500 D7 IO
R9506
22
R9861
10k
IC9500 L8 IO
TP9013
IC9500 D1 IO
IC9500 N9 IO
IC9500 M15 IO
IC9500 B4 IO
IC9500 L10 IO
IC9500 N16 IO
IC9500 A8 IO
R9862
10k
IC9500 F10 IO
IC9500 A12 IO
IC9500 J8 GND
IC9500 B16 VCCIO3
IC9500 A5 IO
IC9500 E4 IO
IC9500 H4 DCLK
IC9500 R14 IO
IC9500 B6 IO
IC9500 E2 IO
P3.3V
IC9500 C14 IO
IC9500 B10 IO
C9531
10V
10u
IC9500 H13 IO
IC9500 R7 IO
IC9500 F5 IO
IC9500 T4 IO
IC9500 C10 VCCIO2
IC9500 K14 VCCIO3
TP9012
IC9500 D14 IO
IC9500 R15 GND
R9961
10k
IC9500 G5 nCE
IC9500 P3 IO
R9533
47
IC9500 T12 IO
C9561
16V
0.1u
IC9500 G16 IO
IC9500 E7 VCCIO2
IC9500 T5 IO
IC9500 R3 IO
C9525
16V 0.1u
IC9500 P8 GND
TP9016
R9557
0
IC9500 A11 IO
IC9500 T15 VCCIO4
IC9500 M9 GND
IC9500 K5 IO
IC9500 C16 IO
L9501
J0JHC0000078
IC9500 B2 GND
IC9500 F16 IO
IC9500 P16 IO
IC9500 H1 CLK1
L9504
J0JHC0000078
/ROMADRS[19]
M_GOUT9
M_GOUT5
M_BOUT0
NRST
CLK
M_ROUT9
FPCLK
PCD2
DRVRST
M_ROUT7
CEL
/ROMADRS[03]
ODED1
FP DATA 0
M_BOUT1
/ROMADRS[02]
M_GOUT4
/ROMADRS[11]
DRVMUTE
/ROMADRS[07]
/ROMADRS[04]
SC_DRV_RST
FP DATA 1
OSD_CLKO
CLRD1
/ROMADRS[18]
/ROM_BYTE
M_GOUT3
/ROMADRS[10]
SFRST
SCSU
OSD_GI
/ROMADRS[08]
LATCH
MODEL[1]
/ROMDATA[06]
M_ROUT3
CPH1
/ROMADRS[20]
OC2
MODEL[0]
CBK
M_ROUT6
/ROMADRS[17]
SDA
LAT
M_GOUT1
CLK_INPUT
OSD
OC1
SCL
/ROMDATA[07]
OTHER
CSH
NUEL
RESET
USL
SIU
Flash_Control
M_ROUT2
LSI58
CLKM_IN
M_ROUT1
M_ROUT5
SFVRST
/ROMDATA[01]
/ROMADRS[16]
/ROMDATA[05]
LVDS_INPUT
/ROMADRS[13]
/ROMDATA[00]
/ROMADRS[05]
M_GOUT6
DATA_DRIVER
/ROMDATA[04]
/ROM_OE
PICTURE_OUTPUT
/ROMDATA[03]
/ROM_CE
NC
IIC
/ROMDATA[02]
/ROMADRS[00]
CONTROL
CML
SS_PULSE
UML
CMH
UMH
SC_PULSE
M_ROUT4
K_DONE
GND
LVDSbit
M_ROUT8
M_ROUT0
M_GOUT2
FVSEL
M_BOUT3
M_BOUT4
VCCINT
M_GOUT8
VCCI
/ROMADRS[01]
M_BOUT5
JTAG
OSD_YSI
/ROMADRS[09]
M_BOUT6
OSD_BI
M_GOUT0
M_DCKO
/ROMADRS[14]
M_HDO
M_BOUT7
OSD_RI
/ROM_WE
M_VDO
M_BOUT8
M_GOUT7
M_BOUT9
USH
SID
UEL
LED1
CSL
PCD1
/ROMADRS[06]
M_BOUT2
/ROMADRS[12]
MASK
p_db1
p_db0
p_stb
p_slct
p_busy
TP_CLK
FREE RUN CLK
XRST
/ROMADRS[-1]
/ROMADRS[15]
MODEL2 MODEL1 MODEL0
RSV0 L L L
SD L L H
37HD L H L
42HD L H H
58HD H L L
50HD H L H
RSV1 H H L
42WH H H H
ODED2
OSD_HI
MICON
nCS_FPGA
SOUT
SIN
SCLK
TRST
TDO
GND
TDI
TMS
TCK
PCD3
PCD4
URH
CPH2
RC-[inv->RC+]
RB-
RB+
RC+[inv->RC-]
RCLK-
RCLK+
RE+(LSB)
RD+[inv->RD-]
RA-
RA+
RD-[inv->RD+]
RE-(LSB)
MODEL[2]
LED2
CLRD2
TEST
PRCKI
P3.3V
TRST
272423 25 262019 2221
IC9500
FPGA
C1ZBZ0003575
!
D-BOARD (3/6)
TZTNP01XDTE
11
12
14
15
13
21
22
23
24
25
26
TH-58PH10BK/EK
D-Board (3 of 6) Schematic Diagram
TH-58PH10BK/EK
D-Board (3 of 6) Schematic Diagram
TH-58PH10BK / TH-58PH10EK
95

Table of Contents

Related product manuals