EasyManua.ls Logo

Panasonic TH-58PH10BK - Removal of Plasma Panel

Panasonic TH-58PH10BK
145 pages
Print Icon
To Next Page IconTo Next Page
To Next Page IconTo Next Page
To Previous Page IconTo Previous Page
To Previous Page IconTo Previous Page
Loading...
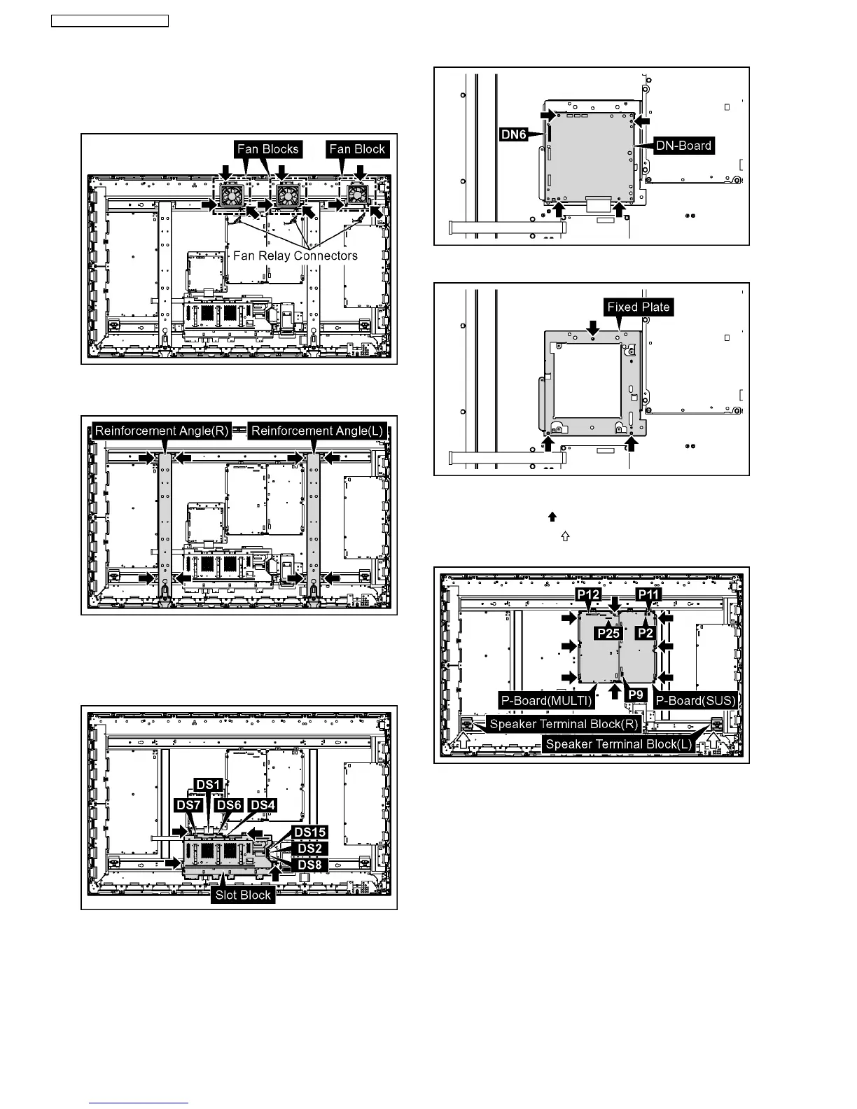
6.19. Removal of Plasma Panel
1. Disconnect the Fan Relay Connectors.
2. Remove 9 screws and then remove the 3 Fan Blocks.
3. Remove 8 screws and then remove the Reinforcement
Angle (L, R).
4. Disconnect the connectors (DS2, DS4, DS6, DS7, DS8,
DS15).
5. Remove the Flexible Cable from the connector (DS1).
6. Remove 4 screws and then remove the Slot Block.
7. Disconnect the connector (DN6).
8. Remove 4 screws and then remove DN-Board.
9. Remove 3 screws and then remove the Fixed Plate.
10. Disconnect the connectors (P2, P9, P11, P12, P25).
11. Remove 8 screws (
) and then remove P-Board.
12. Remove 2 screws (
) and then remove the Speaker
Terminal Block (L, R).
13. Disconnect the connector (D20).
14. Remove the Flexible Cables from the connectors (C11,
C21).
15. Remove 4 screws and then remove D-Board.
16
TH-58PH10BK / TH-58PH10EK

Table of Contents

Related product manuals