EasyManua.ls Logo

PEERLESS PUREFIRE PF-850 - Page 84

PEERLESS PUREFIRE PF-850
100 pages
Print Icon
To Next Page IconTo Next Page
To Next Page IconTo Next Page
To Previous Page IconTo Previous Page
To Previous Page IconTo Previous Page
Loading...
82
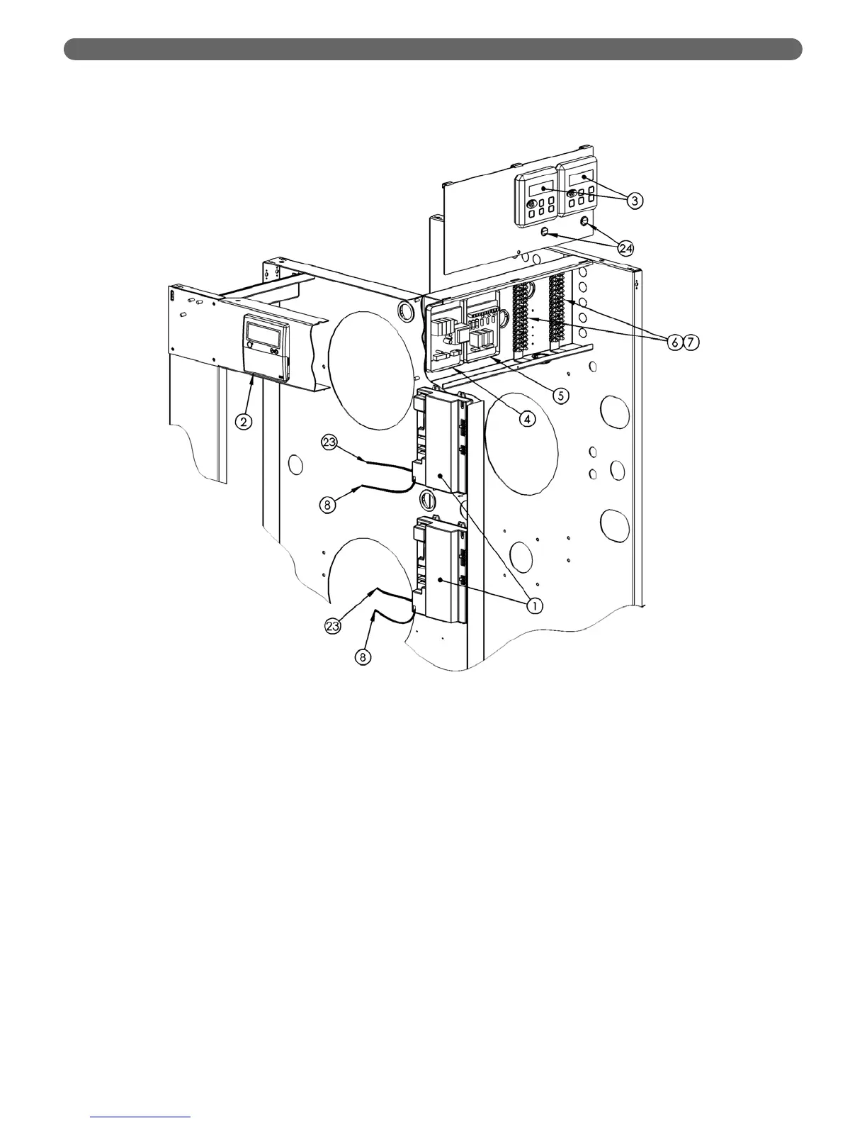
Figure 13.4: Control System
REPAIR PARTS

Table of Contents

Related product manuals