EasyManua.ls Logo

Pioneer PDP-507CMX

Pioneer PDP-507CMX
288 pages
To Next Page IconTo Next Page
To Next Page IconTo Next Page
To Previous Page IconTo Previous Page
To Previous Page IconTo Previous Page
Loading...
117
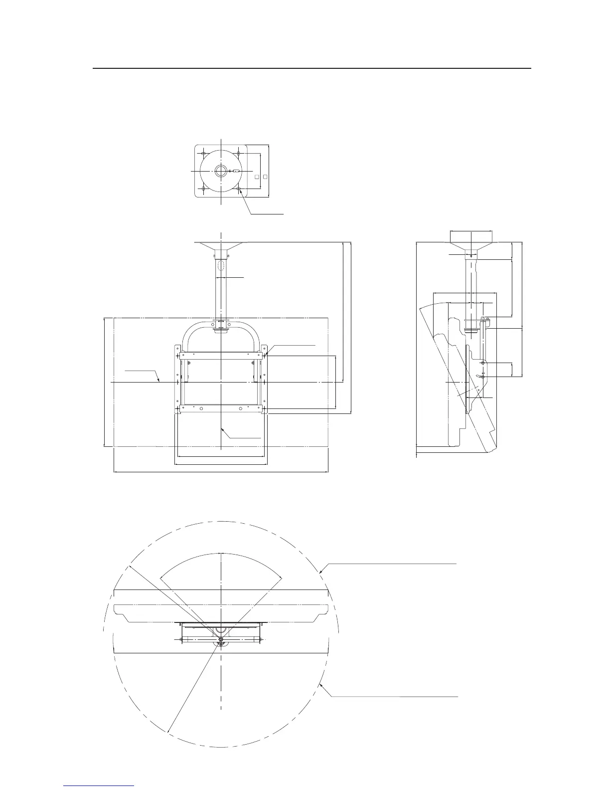
Ceiling Mount Unit: PDK-5012
4.8.2 External Dimensions
7 When using Plasma Display PDP-507CMX
(Unit: mm)
R673
R616
45°
45°
736
496
(530)
1222
300
980
800
ø60.5
4-ø13.5 x 22
200
1168
25°
216
131
145
67
98
33
80
277
(493)
329
100
ø70
241
300
Attachment holes
(six locations)
Center of
the display
Center of
the display
This circle shows the path that the outermost part of
the Plasma Display follows when it is rotated on a
vertical axis after having been titled sideways by 25°.
This circle shows the path that the outermost part of
the Plasma Display follows when it is rotated on a
vertical axis after having been titled sideways by 25°.
[507CMX : 427CMX]

Table of Contents

Other manuals for Pioneer PDP-507CMX

Related product manuals