EasyManua.ls Logo

Planmeca ProOne - Collimation and Movement Step in Cross-sections

Planmeca ProOne
48 pages
Print Icon
To Next Page IconTo Next Page
To Next Page IconTo Next Page
To Previous Page IconTo Previous Page
To Previous Page IconTo Previous Page
Loading...
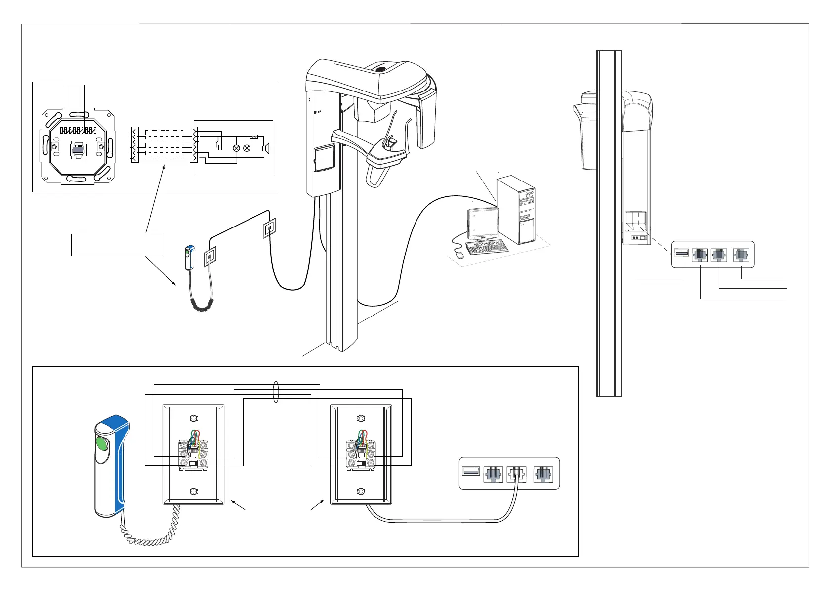
P lanmeca P roOne
R emote B utton US
LY 05.06.2007
US B Memory E thernet
E xposure S witch
R emote E xposure O ption
1 --> 1
2 --> 2
5 --> 5
6 --> 6
E thernet cable UT P cat5e
06320060
E xposure E xoens ion
C able 10005679
P C with grabber card
E xposure S piral
C able 10001193
Data wall s ocket
as semble 06001019
E xposure s witch
10004039
E xposure switch
10004039
E xposure S piral
C able 10001193
Data wall s ocket
connection
1
2
345678
E xposure
S piral C able
E xposure switch
1
16
6
Modular J ack
R J-12
E XP
+26V
R eady L amp
E XP Lamp
NOT E
C ross connected C able
US B
R em
E XP
Opt.
E XP
S witch
E thernet
C able MHS 1x5x0.5 C ode 06320032
E xposure E xtension
C able 10005679
1
3
5
6
4
2
US Wall T ermination
Units 10008847
1
3
5
6
4
2
Printed copies of this document are considered uncontrolled.
7535.13.Rev001 08.07.2018

Other manuals for Planmeca ProOne

Related product manuals