EasyManua.ls Logo

Primus D13 - Gas Models; Schematic; Schematic Diagrams

Primus D13
160 pages
Print Icon
To Next Page IconTo Next Page
To Next Page IconTo Next Page
To Previous Page IconTo Previous Page
To Previous Page IconTo Previous Page
Loading...
122 70284701
Section 8 Micro Display Control Troubleshooting - Error codes
© Copyright, Alliance Laundry Systems LLC – DO NOT COPY or TRANSMIT
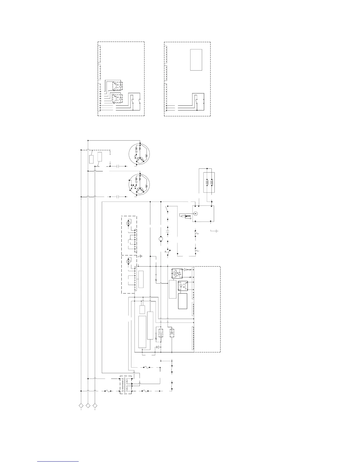
Gas models
Schematic
TMB1775S
PRIMARY
FUSE
AGC-2A
250V
SECONDARY
FUSE
MDL-3.5A
250V
M
1
VALV
3
GND
3
GND
4
2
GND
TH
M
N
1
AUX
THERM
PROT.
4
MAIN 1
MAIN 2
RUN
FAN MOTOR
CENTRIFUGAL
SWITCH
DOOR
SWITCH
WHT
CHASSIS GROUND
WHT
LINT
PANEL
SWITCH
CABINET
LIMIT
THERMOSTAT
STOVE
LIMIT
THERMOSTAT
AIR FLOW
SWITCH
5
RUN
MAIN 2
MAIN 1
4
FAN
MOTOR
THERM
PROT.
AUX
1
ICM
BLK
L1
IGN
RED
LT. BLU
CYLINDER
MOTOR
BLU/BLK
SERVICE
CONNECTION
TB1
BLK
RED
RED/WHT
N.O.
COM COM
N.O.
BRN/RED
WHT
ORG/BRN
COM
N.O.
ORG BRN
ORG/
WHT
WHT/
BRN
BRN/WHT
VLT
VLT/WHT
3
5
3
GRY/BLK
BLK
M
5
8
6
9
LT. BLU
BLK/RED
BLK/RED
120V
SERVICE
208-240V
SERVICE
TB1-L1
TB1-N
TB1-L2
N.C.
1
2
1
2
BLK
THERMISTOR
WHT/
BLK
WHT
GAS VALVE
FIRST COIL
SECOND COIL
BA
M
7
4
GRN/YEL
RED/BLU
WHT
RED/WHT
RED/BLK
WHT/VLT
WHT
RED/BLK
RED/BLK
RED
WHT/BLU
SECONDARY
FUSE
1.25 T
250V
RED
RED
WHT
3
4
GRN/YEL
WHT
12345678910
WHT
WHT
THERMISTOR
BLK
WHT
H4
025 & 030 MODELS 035 MODELS
L2
24V
3.5A
120V
24V
1.5A
COIN DROP VEND OPTION
SINGLE, DUAL AND COIN DROP READY
CARD READER READY VEND OPTION
VEND APPLICATION
DETAILS
JUMPERJUMPERJUMPERJUMPER
SWITCHSWITCHSWITCHSWITCH
SERVICE DOORSERVICE DOORSERVICE DOORSERVICE DOOR
BRNBRNBRNBRN
2222
GRYGRYGRYGRY
H5
33
H5H5
33
H5
PNKPNKPNKPNK
51155115 864468864468 1097791010977910 121111 12121111 12
SWITCH
COIN VAULT
SWITCH
SERVICE DOOR
BRN
GRY
COIN DROP 1
(OPTIONAL) (OPTIONAL)
COIN DROP 2
PNK
H5
315 8642
RED
BLK
WHT
BLU
12111097
BLK
WHT
PLEASE CONSULT CARD
READER INSTALLATION
MANUAL FOR PROPER
CONNECTIONS TO CONTROL
4
321
H6
54
7
6
65 132
H3
4123 54
H6
5676
H3
321
24Vac Ret
H3-1 & H3-2
Iin= 3-30ma
TIME 20msec MIN.
START PULSE INPUT
MACHINE RUNNING
AVAILABLE OUTPUT
SEE VEND
APPLICATION DETAIL
H2-2
H2-1
FS-2
H1-2
512386411109712
COIN DROPS
H5
24Vac
H1-4
123456
7
H6
24Vac Ret
Imax=5ma
H3-3 & H3-4
Vmax=28Vdc
OPTO OFF WHEN
HEAT RELAY
MOTOR RELAY
H2-5
DOOR SENSING CIRCUIT ALLOWS
VOLTAGE CONFIGURATION INPUT
JUMPER H2-2 TO H2-5 AS FOLLOWS:
240Vac - 13.6K ohm 10 watt
CONTROL TO TURN ON MOTOR
RELAY ONLY WHEN DOOR IS
CLOSED & SWITCH IS PRESSED
24Vac - WIRE JUMPER
120Vac - 6.8K ohm 5 watt
MDC CONTROL
CONTROL
POWER
SUPPLY
24VAC
H1-1
H1-3
H11L1
4
6
5
3
21
H3
100 OHM
1/4 watt
4N25
H2-4
H2-3
FS-1
1
H2-6
Door Sense Ret
CIRCUIT CONTROLS
HEAT RELAY
TEMP. REGULATING
10
H4
897 45623
1. DOOR SWITCH: N.O. CONTACT CLOSED WHEN DOOR CLOSED.
2. MOTORS ARE PROTECTED BY INTERNAL OVERLOADS.
3. THERMOSTAT: OPENS WHEN TEMPERATURE IS REACHED.
4. CONNECT ELECTRICAL SERVICE OF PROPER VOLTAGE
AND CURRENT RATING TO TB1.
NOTES:
TMB1775S

Table of Contents

Related product manuals