EasyManua.ls Logo

Primus D13 - Steam Models; Schematic

Primus D13
160 pages
Print Icon
To Next Page IconTo Next Page
To Next Page IconTo Next Page
To Previous Page IconTo Previous Page
To Previous Page IconTo Previous Page
Loading...
124 70284701
Section 8 Micro Display Control Troubleshooting - Error codes
© Copyright, Alliance Laundry Systems LLC – DO NOT COPY or TRANSMIT
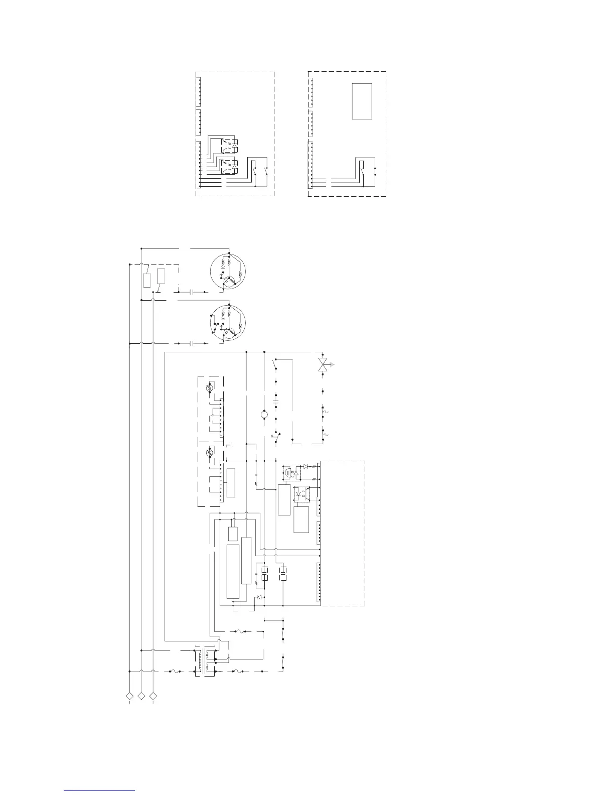
Steam models
Schematic
TMB1776S
NOTES:
1. DOOR SWITCH - CONTACTS CLOSED WHEN DOOR CLOSED.
2. MOTOR IS PROTECTED BY INTERNAL THERMAL PROTECTOR.
3. HEATER RELAY OPENS WHEN TEMPERATURE IS REACHED.
M
L2
N
1
AUX
THERM
PROT.
4
MAIN 1
MAIN 2
RUN
5
RUN
MAIN 2
MAIN 1
4
FAN
MOTOR
THERM
PROT.
AUX
1
L1
CYLINDER
MOTOR
BLU/BLK
SERVICE
CONNECTION
TB1
3
GRY/BLK
BLK
M
5
8
6
9
LT. BLU
BLK/RED
BLK/RED
120V
SERVICE
208-240V
SERVICE
TB1-L1
TB1-N
TB1-L2
LT. BLU
PRIMARY
FUSE
AGC-2A
250V
SECONDARY
FUSE
MDL-3.5A
250V
M
FAN MOTOR
CENTRIFUGAL
SWITCH
DOOR
SWITCH
WHT
CHASSIS GROUND
WHT
LINT
PANEL
SWITCH
AIR FLOW
SWITCH
BLK
RED
LT. BLU
BLK
RED
RED/WHT
N.O.
COM COM
N.O.
BRN/RED
WHT
ORG/BRN
COM
N.O.
ORG BRN
ORG/
WHT
WHT/
BRN
BRN/WHT
3
5
N.C.
1
2
1
2
BLK
THERMISTOR
BA
M
7
4
RED/BLU
WHT
RED/WHT
RED/BLK
WHT/VLT
WHT
RED/BLK
RED/BLK
RED
WHT/BLU
SECONDARY
FUSE
1.25 T
250V
RED
RED
WHT
3
4
GRN/YEL
WHT
12345678910
WHT
WHT
THERMISTOR
BLK
WHT
H4
025 & 030 MODELS 035 MODELS
24V
3.5A
120V
24V
1.5A
CABINET
LIMIT
THERMOSTAT
STOVE
LIMIT
THERMOSTAT
VLT
VLT/WHT WHT/BLK
STEAM
VALVE
5
TEMP. REGULATING
HEAT RELAY
CIRCUIT CONTROLS
3215
FS-2
H2-1
4N25
24Vac Ret
24Vac
MACHINE RUNNING
H6
3
APPLICATION DETAIL
SEE VEND
H5
7468 1291011
COIN DROPS
H1-4
H1-2
21654
67
Vmax=28Vdc
Imax=5ma
H3
5
4
3
HEAT RELAY
MOTOR RELAY
START PULSE INPUT
AVAILABLE OUTPUT
TIME 20msec MIN.
Iin= 3-30ma
H3-1 & H3-2
OPTO OFF WHEN
H3-3 & H3-4
MDC CONTROL
120Vac - 6.8K ohm 5 watt
24Vac - WIRE JUMPER
240Vac - 13.6K ohm 10 watt
JUMPER H2-2 TO H2-5 AS FOLLOWS:
VOLTAGE CONFIGURATION INPUT
H2-2
H2-5
SUPPLY
POWER
CONTROL
CLOSED & SWITCH IS PRESSED
RELAY ONLY WHEN DOOR IS
CONTROL TO TURN ON MOTOR
DOOR SENSING CIRCUIT ALLOWS
24Vac Ret
24VAC
H1-1
H1-3
9
H4
10 678
1/4 watt
12
100 OHM
H11L1
FS-1
H2-4
H2-3
Door Sense Ret
H2-6
3241
CARD READER READY VEND OPTION
12121212
SERVICE DOORSERVICE DOORSERVICE DOORSERVICE DOOR
SWITCHSWITCHSWITCHSWITCH
JUMPERJUMPERJUMPERJUMPER
PNKPNKPNKPNK
GRYGRYGRYGRY
BRNBRNBRNBRN
4444
H5
33
H5H5
33
H5
511551152222777786688668 11111111109910109910
CONNECTIONS TO CONTROL
MANUAL FOR PROPER
READER INSTALLATION
PLEASE CONSULT CARD
2145
H6
36
7564
H3
231
COIN DROP 2
(OPTIONAL)
SINGLE, DUAL AND COIN DROP READY
COIN DROP VEND OPTION
SERVICE DOOR
SWITCH
COIN VAULT
SWITCH
(OPTIONAL)
COIN DROP 1
PNK
GRY
BRN
12
VEND APPLICATION
WHT
4
RED
3
H5
251
WHT
BLU
BLK
BLK
768 91011
5
H6
143267654
DETAILS
H3
123
TMB1776S

Table of Contents

Related product manuals