EasyManua.ls Logo

Primus D13 - Connection Diagram

Primus D13
160 pages
Print Icon
To Next Page IconTo Next Page
To Next Page IconTo Next Page
To Previous Page IconTo Previous Page
To Previous Page IconTo Previous Page
Loading...
70284701 125
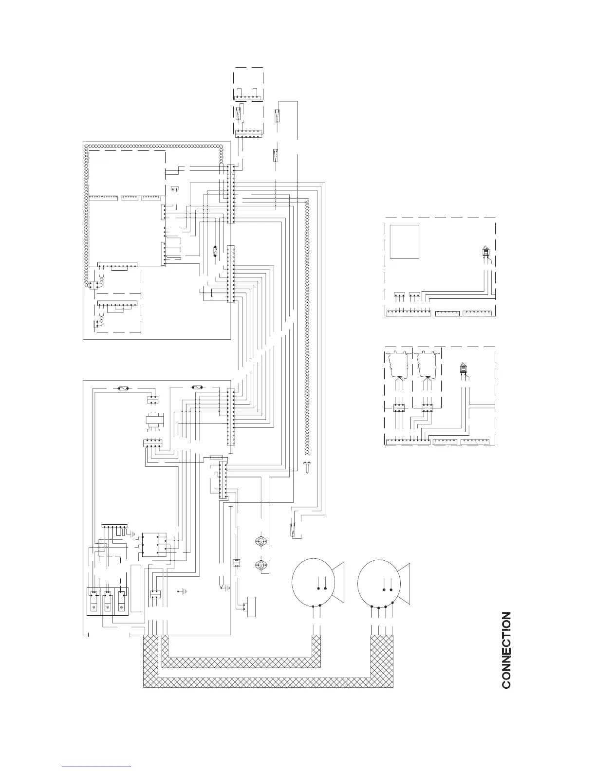
Section 8 Micro Display Control Troubleshooting - Error codes
© Copyright, Alliance Laundry Systems LLC – DO NOT COPY or TRANSMIT
Steam models
Connection diagram
VLT/WHT
THERMISTOR
STEAM
CABINET LIMIT
BLK
LOW
WHT
BRN/
BRN
WHT/
4
2
5
3
BLU
BRN
MOTOR
CYLINDER
LOW
MOTOR
FAN
BLU
GRY/
BLU
LT.
4
1
BLK
BLU/
4
2
1
LT.
4
VALVE
BRN
BLU
AIR FLOW
THERMOSTAT
STOVE LIMIT
COM.
WHT/VLT
THERMOSTAT
VLT
SWITCH
WHT/ORG
ORG/BRN
N.O.
N.C.
ORG
VLT/WHT
LT. BLU
FOR 208V AND 240V SERVICE.
120V SERVICE AND TO L2 FOR
CONNECT BLK/RED TO L1 FOR
SERVICE
22
BRN/WHT
BLU/BLK
LT. BLU
WHT/BRN
1
1
GROUND
TB1
L2
GRY/BLK
GRN/YEL
GRN/YEL
BLK
WHT/
WHT
1
2
1
2
WHT
WHT/BLK
1
1
28
82
6
9
RELAY
GRY/BLK
BLK
BRN
A
B
7
8
BLU/
ORG/WHT
BLK/RED
BLK/RED
BLK
BLK/RED
MOTOR
45
WHT
4
5
CONNECTION
SERVICE
N
L1
BLK
BLK/RED
BLK
LT. BLU
LT. BLU
BLK
6
1
3
2
SWITCH
5
5
ORG/WHT
WHT/VLT
5
BLK
WHT
PNK/BLK
WHT/BLU
RED
RED/BLU
BRN
PNK
WHT
GRN/YEL
RED/WHT
WHT/VLT
RED/WHT
SWITCH
PANEL
LINT
BLK
RED/
N.O.
COM.
SWITCH
DOOR
MODELS
COM.
WHT
RED/
6
4
6
4
4
6
COIN
N.O.
6
PRIMARY FUSE
BLK
3
3
4
7
5
9
6
6
9
57
4
13
13
14
14
WHT
BRN
ORG/WHT
WHT/BRN
BRN/WHT
2
2
64
3
1112
12
11 3
4
6
10
10
178
9
5
5
9871
RED
WHT/BLU
WHT
2
1
BRN/RED
RED/BLU
2
1
3
3
4
4
BLK
RED
TRANSFORMER
RED
RED
11
BLK
22
SECONDARY FUSE
BRN/RED
BRN/WHT
WHT/BRN
RED RED
WHT/BRN
5
9
95
10
10
MODELS
035
9
8
7
10
BLK
1
2
1
2
5
4
3
BLK
WHT
H4
RED/BLU
WHT/BLU
5
5
RED/BLK
WHT
SECONDARY FUSE
RED/WHT
4
4
8
21
7
7
1
2
8
3
3
WHT/BLU
1312116
611
12
13
14
14
RED/BLU
ORG
BRN/RED
WHT/VLT
4
4
3
3
13
BLK
13
14710
10
714
15
WHT
15
RED/BLK
RED/BLK
WHT
MODELS
030
025 &
RED
GRN/YEL
ORG/BRN
11
1
111
69
8
12
128
96
BLK
WHT
2
PNK
2
GRY
GRY
PNK
COIN VAULT
COM.
PNK
22
1
1
33
3
1
2
GRY
N.O.
2
1
2
1
2
1
WHT
BLK
BLK
MODELS
READER
CARD
BLK
JUMPER
BYPASS
1
2
4
5
3
7
8
10
9
4
6
2
DETAIL
CONTROL
5
FS-1
FS-2
532
H2
61
H1
31
GND
7
6
24
3
H3
4
2
1
3
6
5
4
H6
5
MDC
H4
3
1
1
9
H5
10
2
8
7
12
11
4
6
SEE VEND
APPLICATION
CARD READER READY VEND OPTION
6
SERVICE DOOR
COIN VEND OPTION
SINGLE, DUAL AND COIN DROP READY
7
6
2
4
5
H3
3
1
PNK
SWITCH
GRY
BRN
GRY
H3
5
7
6
GRY
BRN
GRY
3
4
2
1
6
COIN DROP 1 (OPTIONAL)
COIN DROP 2 (OPTIONAL)
33
WHT
4
33
3
5
H6
4
1
2
1
11
7
8
3
2
10
5
9
BLU
WHT
22
RED
BLK
11
H5
12
11
6
BLK
22
3
WHT
4
WHT
WHT
RED
BLK
RED
H6
5
3
2
4
PNK
1
1
WHT
BLU
GRY
BRN
7
3
2
8
RED
5
10
BLK
9
3
1
1
2
VEND APPLICATION DETAILS
BLK
H5
BLK
6
11
12
2
SWITCH
SERVICE DOOR
CONNECTION TO
CONTROL
INSTALLATION
MANUAL FOR
PROPER
PLEASE CONSULT
CARD READER
TMB1777S

Table of Contents

Related product manuals