EasyManua.ls Logo

Primus D13 - NetMaster Troubleshooting; No IR Communication

Primus D13
160 pages
Print Icon
To Next Page IconTo Next Page
To Next Page IconTo Next Page
To Previous Page IconTo Previous Page
To Previous Page IconTo Previous Page
Loading...
70284701 127
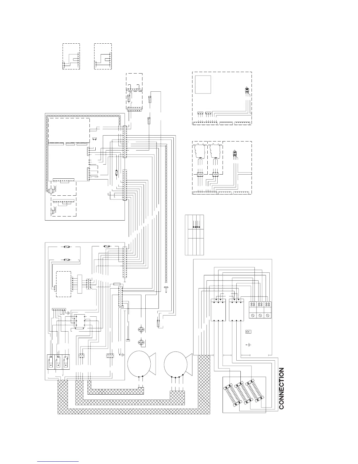
Section 8 Micro Display Control Troubleshooting - Error codes
© Copyright, Alliance Laundry Systems LLC – DO NOT COPY or TRANSMIT
Electric models
Connection diagram
WHT
H3
H4
SERVICE
CONNECTION
H1
H6
H2
L3
L2
SERVICE
GROUND
GND
L1
T3
TB3
L3
HEATER
H5
ELECTRIC
HC1
T1
T2
L1
L2
T3
L3
BLK/RED
HC2
T1
T2
L1
L2
BLK/WHT
BLK
230-240V/50HZ
VLT/WHT
WHT
N.A.
NONE
THERMISTOR
WHT/ORG
ORG/BRN
JUMPER
BRN/
WHT
CONNECTIONS
BLU
GRY/
BLK
WHT/
BRN
LT.
NOTE: SEE MOTOR
JUMPER CHART BELOW
FOR INTERNAL
1
3
5
FAN
MOTOR
4
VLT/WHT
JUMPER
CONNECTIONS
LT.
BLU
BLU/
BLK
NOTE: SEE MOTOR
JUMPER CHART BELOW
FOR INTERNAL
MOTOR
4
1
CYLINDER
AIR FLOW
COM.
WHT/VLT
N.C.
N.O.
ORG
SWITCH
STOVE LIMIT
THERMOSTAT
CABINET LIMIT
THERMOSTAT
VLT
2
1
VLT/WHT
WHT
WHT/BLK
BLU/
BLK
VLT/WHT
WHT
3
11
3
22
BLU/BLK
LT. BLU
GRN/YEL
GRN/YEL
VLT/WHT
WHT
821
128
WHT
WHT/BRN
BRN/WHT
GRY/BLK
2
11
2
TB1
LT. BLU
BLK/
RED
L2
L3
L1
BLK/
WHT
BLK/RED
T1
CONTACTOR
ORG/WHT
14
BRN
13
L1
L2
L3
BRN/RED
T2 T3
MOTOR
BLK/WHT
BLK/RED
BLK
BLK/WHT
BLK/WHT
BLK
6
5
4
2
3
1
BLK
JUMPER
14
15
13 5
69
81211 17
104
3
2
14
13 12 11 105
9
871
23
46
10
59
8
1413
12
116432
1
7
200-208V/60HZ
200V/50HZ
SERVICE
VOLTAGE
240V/60HZ
WHT
BLK
JUMPER
CONNECTION
HIGH
HIGH
6
2
2
6
CONF.
MOTOR JUMPER CHART
BLU
BRN
BRN
BLU
WHT/BLU
PNK/BLK
GRN/YEL
RED/WHT
WHT/VLT
WHT
ORG/WHT
BRN
RED/BLU
RED
PNK
BRN/RED
BRN/WHT
WHT/BRN
WHT/VLT
RED/BLK
WHT
BLK
RED/WHT
LINT
PANEL
SWITCH
COM.
N.O.
SWITCH
DOOR
COM.
RED/
WHT
N.O.
PNK
GRY
SWITCH
5
MODELS
5
4
6
5
4
6
6
4
COIN
COM.
COIN VAULT
3
1
2
PNK
3
1
2
N.O.
2
1
3
GRY
6
9
5
7
43
34
7
5
9
6
13
14
WHT/BRN
6
4
3
2
11
12 1 7 8 9
5
10
WHT/BLU
BRN/WHT
BRN/RED
ORG/WHT
BRN
3
3
WHT
4
1
142
2
RED/BLU
RED
SECONDARY FUSE
RED
WHT/BRN
9
5
10
RED
BLK BLK
DETAILS
PRIMARY FUSE
TRANSFORMER
56
3
4
21
BLK/WHT
SEE
TRANSFORMER
JUMPER
12
BLK/WHT
PRIMARY FUSE
035
MODELS
10
8
9
6
7
4
5
H4
2
1
WHT
BLK
3
2
1
5
WHT/BLU
RED/BLU
SECONDARY FUSE
RED/WHT
RED/BLU
7
12
348 6 11 12 13 14
WHT/BLU
BRN/RED
WHT/VLT
ORG
43107 131514
RED/BLK
RED/BLK
WHT
WHT
RED/BLK
ORG/BRN
GRN/YEL
RED
1
1112
8
96
WHT
BLK
2
GRY
PNK
1
2
025 &
030
MODELS
BLK
WHT
1
2
1
2
BLK
CARD
READER
MODELS
BLK
BYPASS
JUMPER
5
6
143
2
2
240V JUMPER
MODELS
230-240V
1
5
6
2341
DETAILS
12
208V JUMPER
200V & 208V
MODELS
TRANSFORMER
1
2
4
5
3
7
8
10
9
4
6
2
DETAIL
CONTROL
5
FS-1
FS-2
532
H2
61
H1
31
GND
7
6
24
3
H3
4
2
1
3
6
5
4
H6
5
MDC
H4
3
1
1
9
H5
10
2
8
7
12
11
4
6
SEE VEND
APPLICATION
CARD READER READY VEND OPTION
6
SERVICE DOOR
COIN VEND OPTION
SINGLE, DUAL AND COIN DROP READY
7
6
2
4
5
H3
3
1
PNK
SWITCH
GRY
BRN
GRY
H3
5
7
6
GRY
BRN
GRY
3
4
2
1
6
COIN DROP 1 (OPTIONAL)
COIN DROP 2 (OPTIONAL)
33
WHT
4
33
3
5
H6
4
1
2
1
11
7
8
3
2
10
5
9
BLU
WHT
22
RED
BLK
11
H5
12
11
6
BLK
22
3
WHT
4
WHT
WHT
RED
BLK
RED
H6
5
3
2
4
PNK
1
1
WHT
BLU
GRY
BRN
7
3
2
8
RED
5
10
BLK
9
3
1
1
2
VEND APPLICATION DETAILS
BLK
H5
BLK
6
11
12
2
SWITCH
SERVICE DOOR
CONNECTION TO
CONTROL
INSTALLATION
MANUAL FOR
PROPER
PLEASE CONSULT
CARD READER
TMB1779S

Table of Contents

Related product manuals