EasyManua.ls Logo

RCm MEGA 732 - Schaltplan; Schakelschema; Schema Elettrico; Wiring Scheme

Default Icon
93 pages
Print Icon
To Next Page IconTo Next Page
To Next Page IconTo Next Page
To Previous Page IconTo Previous Page
To Previous Page IconTo Previous Page
Loading...
61
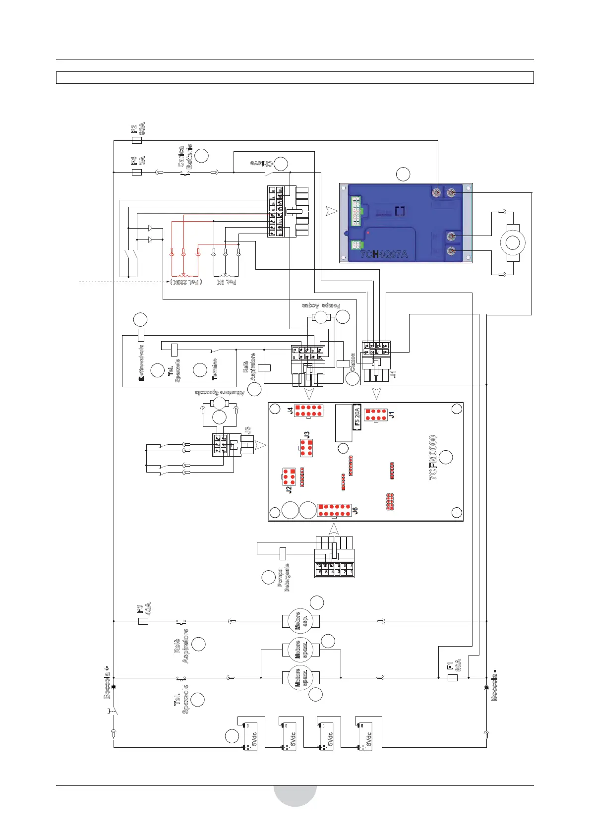
FIG.10
SCHAKELSCHEMA
SCHEMA ELETTRICO
WIRING SCHEME DIAGRAMA ELÉCTRICO SCHÉMA ÉLECTRIQUE SCHALTPLAN
+
-
6Vdc
1
2
+
-
6Vdc
1
2
+
-
6Vdc
1
2
+
-
6Vdc
1
2
Pot. 5K
Boccola +
Boccola -
Tel.
Spazzole
Relè
Aspiratore
F1
80A
F3
40A
F2
80A
F4
5A
Carica
Batterie
Chiave
123
4
5678
9
1011
1213
14
1516
12
3
4
56
1234
5678
12345
678910
123456
789101112
Motore
spazz.
Motore
spazz.
Motore
asp.
J1
J3
Relè
Aspiratore
Tel.
Spazzole
Termico
Elettrovalvola
Claxon
7CFM0000
7CH4Q97A
Pompa Acqua
Pompa
Detergente
Attuatore Spazzole
( Pot. 220K )
F5 20A
16
8
6
13
14
15
12
10
9
8
7
6
4
5
11
3
2
1
17
Aggiunto da matr. | Added from S/N | A partir del número de serie
À partir du numéro de série | Von Seriennummer | Toegevoegd van serienummer
(186278 - MEGA 732) (186584 - MEGA 702R)
(186585 - MEGA 601) (186624 - MEGA 802)

Table of Contents

Related product manuals