EasyManua.ls Logo

Rockwell Automation CENTERLINE 2100

Rockwell Automation CENTERLINE 2100
108 pages
To Next Page IconTo Next Page
To Next Page IconTo Next Page
To Previous Page IconTo Previous Page
To Previous Page IconTo Previous Page
Loading...
Publication 2100-IN012C-EN-P - April 2009 33
Installation Procedures Chapter 2
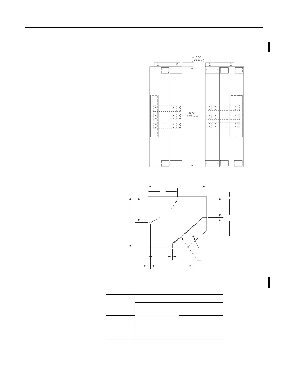
Mounting Dimensions for 15 in. and 20 in. Deep Corner Section [90 in. (2866 mm)
high]
The optional external mounting channels add 1.5 in. (38.1 mm) to the
height.
Dimension,
approx.
Section Depth
15 in. (381 mm) Deep
in. (mm)
20 in.(635 mm) Deep
in. (mm)
A 25.13 (638) 30.13 (765)
B 12.63 (321) 15.13 (384)
C 16.81 (427) 21.81 (554)
D 17.62 (448) 22.62 (575)
B
A
A
B
D
C
D
C
0.25 in. (6 mm)
0.25 in. (6 mm)
1.41 in. (36 mm)
1.41 in. (36 mm)
(2) Mounting Holes
0.63 in. (16 mm) Diameter
Ground Bus
(2) Mounting Slots
0.56 in. x 1.13 in. in Slots
(14 mm x 29 mm) Slots

Table of Contents