EasyManua.ls Logo

Rosemount SOLU COMP II - Simulating RTD Inputs; Checking for a Poisoned Reference Electrode; Measuring Reference Voltage

Rosemount SOLU COMP II
61 pages
Print Icon
To Next Page IconTo Next Page
To Next Page IconTo Next Page
To Previous Page IconTo Previous Page
To Previous Page IconTo Previous Page
Loading...
MODEL SOLU COMP II SECTION 8.0
TROUBLESHOOTING
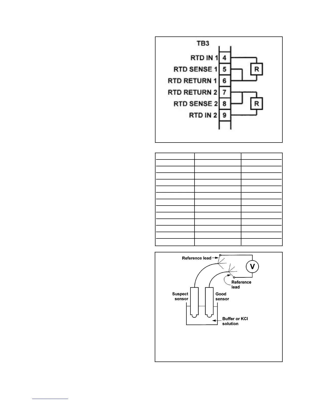
8.5.2 Simulating temperature
To simulate the temperature input, wire a decade box
to the analyzer or junction box as shown in Figure 8-4.
To check the accuracy of the temperature measure-
ment, set the resistor simulating the RTD to the values
indicated in the table and note the temperature read-
ings. The measured temperature might not agree with
the value in the table. During sensor calibration an off-
set might have been applied to make the measured
temperature agree with a standard thermometer. The
offset is also applied to the simulated resistance. The
Solu Comp II is measuring temperature correctly if the
difference between measured temperatures equals
the difference between the values in the table to with-
in ±0.1°C.
For example, start with a simulated resistance of
103.9 , which corresponds to 10.0°C. Assume the
offset from the sensor calibration was -0.3 .
Because of the offset, the analyzer calculates tem-
perature using 103.6 . The result is 9.2°C. Now
change the resistance to 107.8 , which corre-
sponds to 20.0°C. The analyzer uses 107.5 to cal-
culate the temperature, so the display reads 19.2°C.
Because the difference between the displayed tem-
peratures (10.0°C) is the same as the difference
between the simulated temperatures, the analyzer is
working correctly.
8.6 MEASURING REFERENCE VOLTAGE
Some processes contain substances that poison or
shift the potential of the reference electrode. Sulfide
is a good example. Prolonged exposure to sulfide
converts the reference electrode from a silver/silver
chloride electrode to a silver/silver sulfide electrode.
The change in reference voltage is several hundred
millivolts. A good way to check for poisoning is to
compare the voltage of the reference electrode with
a silver/silver chloride electrode known to be good.
The reference electrode from a new sensor is best.
See Figure 8-5. If the reference electrode is good,
the voltage difference should be no more than about
20 mV. A poisoned reference electrode usually
requires replacement.
Temp. (°C) Pt 100 (
) Pt 1000 (
)
0 100.0 1000
10 103.9 1039
20 107.8 1078
25 109.7 1097
30 111.7 1117
40 115.5 1155
50 119.4 1194
60 123.2 1232
70 127.1 1271
80 130.9 1309
85 132.8 1328
90 134.7 1347
100 138.5 1385
FIGURE 8-4. Simulating RTD Inputs.
FIGURE 8-5. Checking for a Poisoned
Reference Electrode.
Refer to the sensor wiring diagram to identify the
reference leads. A laboratory silver/silver chloride
electrode can be used in place of the second sensor.
47

Table of Contents

Related product manuals