EasyManua.ls Logo

Sam4s ER-380F - Wiring Diagram; Wiring Pin Connection

Sam4s ER-380F
110 pages
Print Icon
To Next Page IconTo Next Page
To Next Page IconTo Next Page
To Previous Page IconTo Previous Page
To Previous Page IconTo Previous Page
Loading...
SAM4S ER-380M/F SERIES 12-1
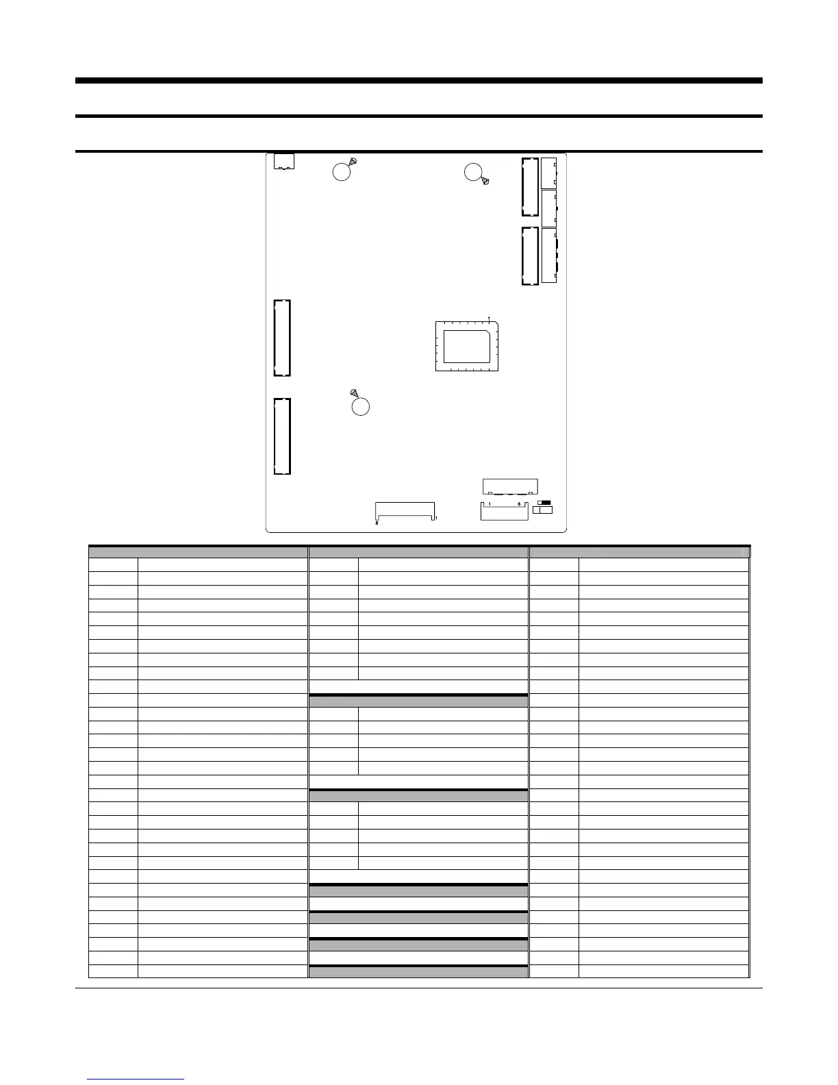
12 Wiring Diagram
12-1 Wiring Pin Connection
CN8 = Main to Printer CN7=Display (VFD) CN9 = Main to Fiscal PBA I/F
No Signal Name No Signal Name
No. Signal Name
1 VCC 1 SEN_DISPDISCON 1 FA17
2 Lever Sensor In 2 VCC 2 FA16
3 P/END Sensor Light 3 DISPLAY_CLK 3 FA7
4 P/END Sensor In 4 DISPLAY_LATCH 4 FA3
5 N/END Sensor Light 5 GND 5 FA6
6 N/END Sensor In 6 VDISP 6 FA2
7 BMARK Sensor Light 7 VCC 7 FA5
8 BMARK Sensor In 8 DIPLAY_DATA 8 FA1
9 Thermister Input
9 FA4
10 GND CN3=Drawer 10 FA0
11 PSTROBE#2
No Signal Name
11 CS_FISCAL EPROM
12 PCLK 1 GND 12 FA15
13 GND 2 SEN_DWRCOMP 13 GND
14 GND 3 DRAWER 14 FA14
15 PSTROBE#1 4 VDRV 15 VCC
16 PDATA
16 FA13
17 PLATCH CN5=Black Box 17 VPP
18 GND No Signal Name 18 FA12
19 GND 1 VCC 19 FD3
20 VPH (+8.5V) 2 TXD1/CLK 20 FA8
21 VPH (+8.5V) 3 RXD1/DATA 21 FD4
22 VPH (+8.5V) 4 GND 22 FA9
23 GND
23 FD5
24 MOT_LF_B-
CN13 / 14= Keyboard
24 FA10
25 ACUT SENS IN(Only Receipt)
25 FD6
26 MOT_LF_B+
CN 4= RS-232 / CN6=LCD DISPLAY
26 FA11
27 MOT_ACUT1(Only Receipt)
27 FD7
28 MOT_LF_A+
CN1 = SPOOL
28 FD0
29 MOT_ACUT2(Only Receipt)
29 FD2
30 MOT_LF_A-
CN12 = MODE KEY
30 FD1
MAIN PBA
CN8
CN9
CN1 CN3
CN4
CN6
CN5
CN7
CN13
CN12
CN14

Related product manuals