EasyManua.ls Logo

Sam4s ER-380F - Page 99

Sam4s ER-380F
110 pages
Print Icon
To Next Page IconTo Next Page
To Next Page IconTo Next Page
To Previous Page IconTo Previous Page
To Previous Page IconTo Previous Page
Loading...
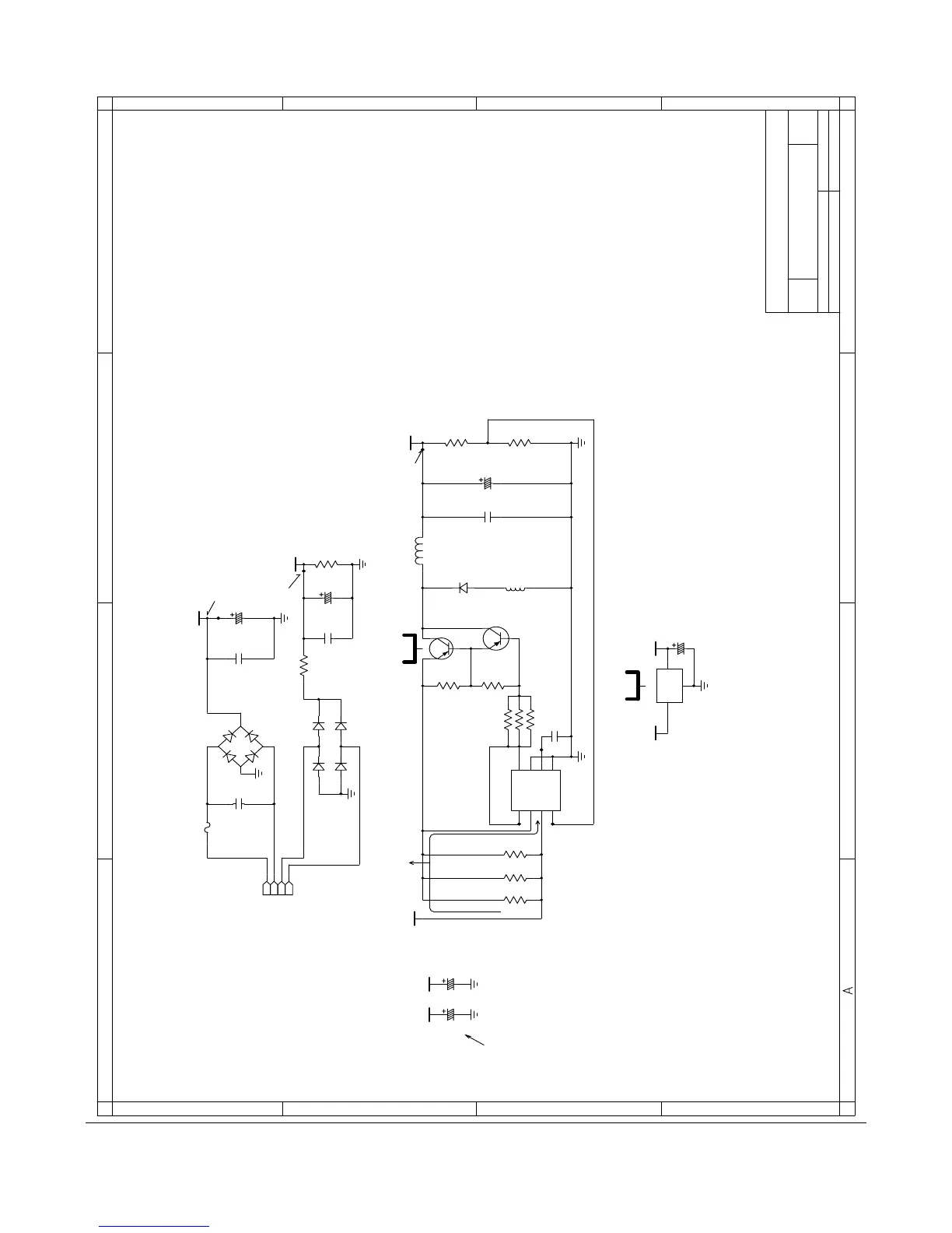
13-10 SAM4S ER-380M/F SERIES
4
Date
of
4
3
2
1
AB
Size
3
2
1
B
Draw n by
Sheet
C
TITLE :
D
C D
File Nam e
A3
Rev
Shin H eung Precision Co., Ltd.
T5
08
V141
3
CN6:C
V142
10KR11
10KR9
T1
VDISP
VPRT
T3
ER 380_M A IN.SCH
2003.10.18
ER-380M MAIN
K-W on,C hoi
LPP1 : 470uF/50V
LPP2 : 2200uF/50V
4
CN6:D
2
CN6:B
C1
100nF
FILM
VPRT
V143
C42
100pF
10KR13
D5M4
D6M4
VCC
C50
16V
100uF
C40
100nF
VDRV
C25
100nF
D3
1N 5822
140uH
L5
VDISP
R19
27K
C34
470uF
16V
V1.4
C4
2200uF
50V
VDRV
470uF
C7
50V
R20
0.1
R22
0.1
VDRV
VOUT= 1.25 × (1+(R2/R1))=1.25×(1/(27K /4.7K ))=8.43[V]
VDRV
250V/3.15A
FU1
HS2
HEATSINK_S
1
IN
3
OUT
2
GND
M C 7805
U5
C3
100nF
1
3
2
KS A 708Y
Q6
R15
3.3K
HS1
HEATSINK_S
C27
100uF
50V
D4M4
D7M4
100
R10
C5
4700uF
50V
REVISION HISTORY
VPRT
R21
0.1
Power Tranformer Output
1& 2 : A C 24V
¤
3& 4 : A C 30V
¤Ł
Note]Sam e as ER 6500, ER-650R
VDRV
1
CN6:A
CON-W A LL;4P ,3.96MM,1R ,1W ,ST
L6
FERRITE-BEAD;B FD 3565R 2
14
2
3
BD_KBU6B
BD1
3
2
1
Q10
KS A 1010Y
R16
560
R12
4.7K
R14
27K
6
VCC
3
TC
8
DC
1
SC
5
IN
7
SENSE
4
GND
2
SE
M C 34063A
U4

Related product manuals