EasyManua.ls Logo

SBC PCD2.M170 - Dimensions

Default Icon
288 pages
Print Icon
To Next Page IconTo Next Page
To Next Page IconTo Next Page
To Previous Page IconTo Previous Page
To Previous Page IconTo Previous Page
Loading...
Saia-Burgess Controls AG
Manual Manual PCD 1 / PCD 2 Series │ Document 26 / 737 EN22 │ 2013-11-26
CPUs and expansion housings
3-26
Dimensions
3
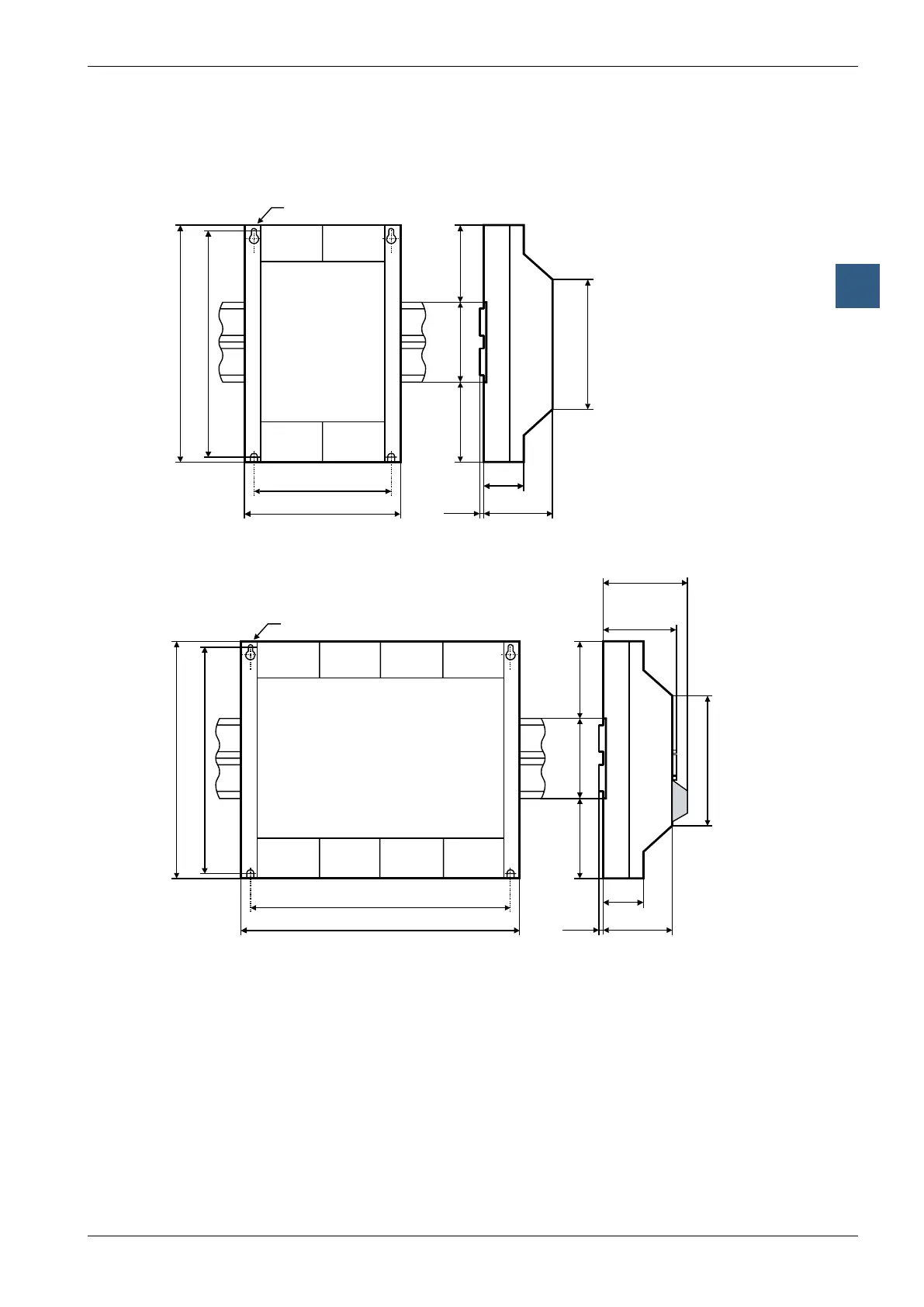
3.8 Dimensions
PCD1.M1xx/PCD2.C150
141.4 5.5 59
34
125
Ø 4.5
208
68
70
124
70
200
PCD2.Mxx0/PCD2.C100
248 5.5 59
34
230
Ø 4.5
208
68
70
124
70
200
64
74
PCD7.R400

Table of Contents

Related product manuals