EasyManua.ls Logo

Sharp AR-M550N - Page 431

Sharp AR-M550N
460 pages
To Next Page IconTo Next Page
To Next Page IconTo Next Page
To Previous Page IconTo Previous Page
To Previous Page IconTo Previous Page
Loading...
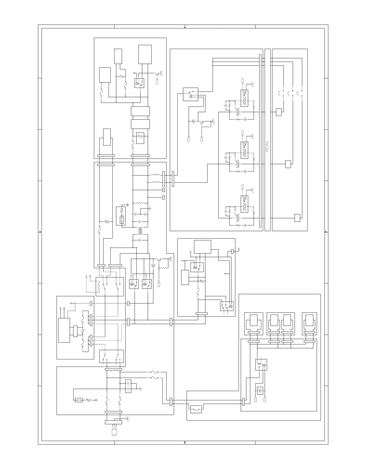
AR-M550/M620/M700 ELECTRIC DIAGRAM 13 - 3
N2H L2H
L2D
N2D
L1
N1
RY1
RY2
+12VS(from SUB POWER)
N2
L2
MSWL
MSWN
L2
N2
HL1
HLTS2
2
6
6
2
G
HL PWB
HLTS1
T2
GND
T1
1
G
44
GND
T1
1
T2
6
2
FUSING UNIT
T2
GND
T1
G
4
1
HL2
HLTS3
HL3
L2HN2H
RY1
#187#187
AC POWER LINE DIAGRAM (200V) 3/3
A2
no-mounting
T2.0AH250V
T2.0AH250V
no-mounting
AC IN
N
L
F2
A1
F1
WH-L WH-N
F3
F4
AC PWB
WH1_SCN
NC
NO
WH PWB
SCN unit
WH-N
WH-N
WH-L
WH HEATER SET: OPTION
SUB POWER
7W
AC120V-15A/AC240V-10A
AC120V-15A/AC240V-10A
AC120V-15A/AC240V-10A
N/F N/F
no-mounting
Voltage
generation
(12V1 , 5V1)
FW
generating
circuit
Voltage
generation
(24V1 7 , 3.3V
5V2 , 12V2
38V1 3)
MSW detection
circuit
DCPS
RL1
Transformer
FAX
MAIN
POWER
FAX POWER
TD1 TD2
SSR3
SSR1
SSR2
TD3
10W
10W
18W
WH1_DESK
WH2_DESK
DESK
WH_LCC
LCC
RL3
RL1/RL2
10AH240V
10AH240V
NF
Switching POWER
L1
N1
L1 N1
MAIN POWER SW
POWER SW
SUB
POWER
N1
L1
(POWER
SECTION)
RY1
FW_sub
+12VL
170˚C
T2AH250V
F1
DCPR
+5V1
T2AH250V
F102
WH-SW
T2.5AH250V
F5
NR101
VR1
NR1
to PCU
T2AH250V
F101
+12V
VR3
170˚C
NR2
to Controller
+24V
T5AH 250V
F3
+12VS
150˚C
NR1
HLV
T3.15AH 250V
F2
VR2
T8AH 250VF1
BUP_PR
HLCNT1
+24VPR
HLCNT2
HLCNT3
HLPR/
+24V
WHPR2/
DCCNT
8
8
7
7
6
6
5
5
4
4
3
3
2
2
1
1
D D
C C
B B
A A

Table of Contents

Other manuals for Sharp AR-M550N

Related product manuals