EasyManua.ls Logo

SICK CLV61 Series - Page 43

SICK CLV61 Series
52 pages
To Next Page IconTo Next Page
To Next Page IconTo Next Page
To Previous Page IconTo Previous Page
To Previous Page IconTo Previous Page
Loading...
Technical Information Chapter 4
CLV61x
Electrical installation
8015592/ZNI9/2017-06-13 © SICK AG · Germany · All rights reserved · Subject to change without notice 43
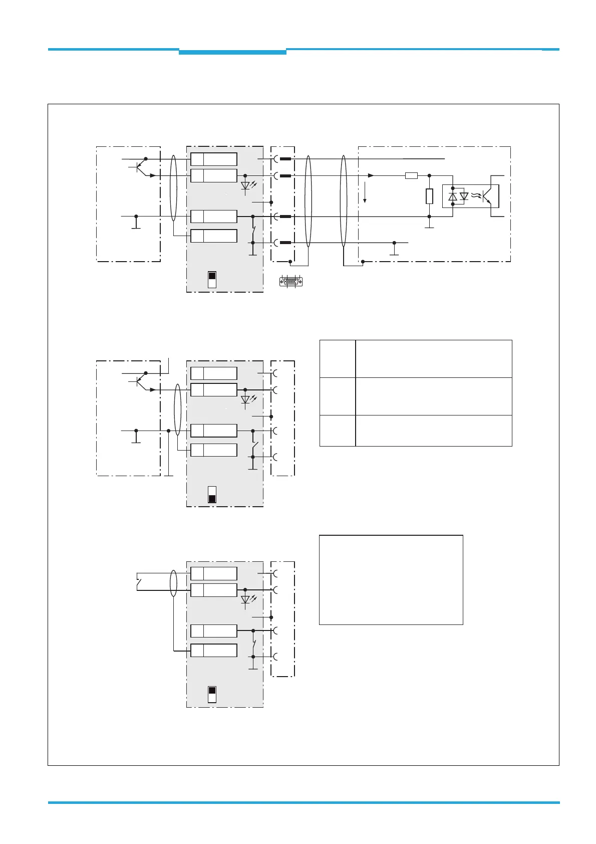
4.8.5 Wiring the "Sensor 1" Switching Input in the CDM420-0001 Connection Module
6
1
10
5
11
15
CLV61xCDM420-0001
PNP sensor
V
S
V
S
V
S
GND
SensGND
3.32 K
6.64 K
Sensor 1
V
in
+24 V* = DC 10 V to 30 V
a) Sensor supplied by CDM420-0001
b) Sensor connected electrically isolated/externally supplied
d) Switch connected electrically isolated/externally supplied
c) Switch supplied by CDM420-0001
14
15
1
5
Out
+24V*
+24V*
+24V*
GND
S6
e.g. photo-electric switch
CDM420-0001
PNP sensor
V
S
GND
Connect the switch as shown in b)
Out
GND
S6
e.g. photo-electric
switch
CDM420-0001
GND
S6
ON
OFF
S6 : SGND
ON
OFF
S6 : SGND
ON
OFF
S6 : SGND
V
S ext
Shield
D-Sub HD plug,
15-pin
GND
.
.
.
Shield
Shield
38
Sensor 1
37
SGND
6
Shield
39
+24 V*
38
Sensor 1
37
SGND
6
Shield
39
+24 V*
38
Sensor 1
37
SGND
6
Shield
39
+24 V*
V
in
= max. 32 V
Function assignment to "Sensor 1" switching input via SOPAS
("Sensor/Input 1"):
- Start of reading clock
- Stop of reading clock
- Start teach-in matchcode/start code comparison
- Increment input
- if required further functions in the future
Ratings for "Sensor 1" switching input
SensGND
Switch S6: SGND-GND
ON: GND of the sensor connected to GND
of CDM420-0001/CLV61x.
OFF: GND of the sensor connected to
SensGND of CDM420-0001/CLV61x
(Sensor connected electrically isolated
to the CDM420-0001/CLV61x).
Selected reference potential valid for all
switching inputs ("Sensor 1/2" and "In 1/2")
Power fed to the input starts the assigned
function, e.g. start of reading clock.
(default setting: logic not inverted [active high],
debouncing 10 ms)
Optodecoupled, reverse polarity protected
Can be wired with the PNP output of a sensor
SensGND reference potential valid for all
switching inputs
Low: V
in
≤ 2 V; I
in
≤ 0.3 mA
High: 6 V ≤ V
in
≤ 32 V;
0.7 mA ≤ I
in
≤ 5 mA
Switching
behavior
Features
Electrical
values
GND

Other manuals for SICK CLV61 Series

Related product manuals