EasyManua.ls Logo

SICK CLV61 Series - Page 46

SICK CLV61 Series
52 pages
To Next Page IconTo Next Page
To Next Page IconTo Next Page
To Previous Page IconTo Previous Page
To Previous Page IconTo Previous Page
Loading...
Chapter 4 Technical Information
CLV61x bar code scanner
46 © SICK AG · Germany · All rights reserved · Subject to change without notice 8015592/ZNI9/2017-06-13
Electrical installation
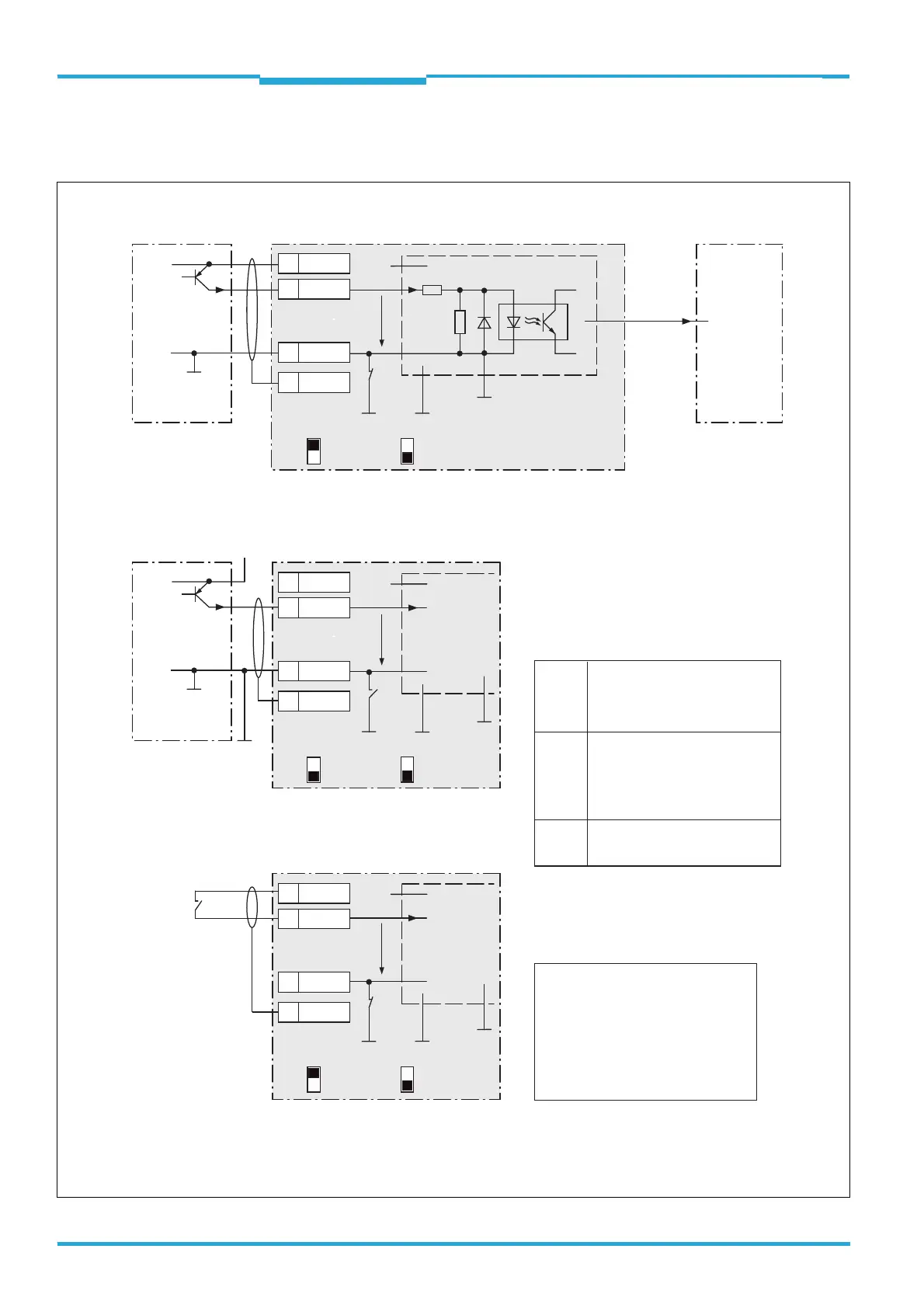
4.8.8 Wiring the "External input 2" Switching Input in the CDM420-0001 Connection
Module
+24 V* = DC 10 V to 30 V
V
in
= max. 32 V
CDM420-0001
CDM420-0001
PNP sensor
V
S
GND
Out
GND
S6
e.g. photo-electric
switch
V
S ext
CLV61xCDM420-0001
PNP sensor
V
S
GND
3.32 K
6.64 K
V
in
V
in
V
in
Out
GND
S6
e.g. photo-electric switch
CMC600
GND
S6
CMC600
CMC600
a) Sensor supplied by CDM420-0001
b) Sensor connected electrically isolated/externally supplied
d) Switch connected electrically isolated/externally supplied
c) Switch supplied by CDM420-0001
Connect the switch as shown in b)
Serial Aux
(RS-232)
Function assignment to "External input 2“ via SOPAS:
- Start of reading clock
- Stop of reading clock
- Start teach-in matchcode/start code comparison
- if required further functions in the future
ON
OFF
S6 : SGND
No
YES
S8 : CMC
ON
OFF
S6 : SGND
No
YES
S8 : CMC
No
YES
S8 : CMC
ON
OFF
S6 : SGND
20
SGND
8
Shield
29
+24 V*
19
Aux In 2
20
SGND
8
Shield
29
+24 V*
19
Aux In 2
20
SGND
8
Shield
29
+24 V*
19
Aux In 2
+24V*
+24V*
+24V*
Software-controlled, the CMC600 transfers the
switching status of its physical "Aux In 2" input
automatically via the cable to the serial Aux
data interface of the CLV61x.
The CLV61x converts the status internally to its
logical "External input 2“.
"External
input 2"
Ratings for "External input 2"
("Aux In 2" switching input)
Power fed to the input starts the
assigned function, e.g. stop of reading
clock.
(default setting: logic not inverted
[active high], debouncing 10 ms)
Optodecoupled, reverse polarity
protected
Can be wired with the PNP output of
a sensor
SensGND reference potential valid
for all switching inputs
Low: V
in
≤ 2 V; I
in
≤ 0.3 mA
High: 6 V ≤ V
in
≤ 32 V;
0.7 mA ≤ I
in
≤ 5 mA
Switching
behavior
Features
Electrical
values
Switch S6: SGND-GND
ON: GND of the sensor connected to GND
of CDB620/CMC600.
OFF: GND of the sensor connected to
SensGND of CDB620/CMC600
(Sensor connected electrically isolated
to the CDB620/CMC600).
Selected reference potential valid for all
switching inputs ("Sensor 1/2" and "In 1/2")
SensGND
SensGND
SensGND

Other manuals for SICK CLV61 Series

Related product manuals