EasyManua.ls Logo

SICK Lector64x Flex - Page 79

SICK Lector64x Flex
96 pages
Print Icon
To Next Page IconTo Next Page
To Next Page IconTo Next Page
To Previous Page IconTo Previous Page
To Previous Page IconTo Previous Page
Loading...
Load (e.g. PLC) 3
GND
V
out
For inductive load: 5
Device 1
Aux
(RS-232)
CDB650-204
CMC600 2
U
IN
*
“External
output A6
C
EXT. OUT B
22
GND
6
Shield
4
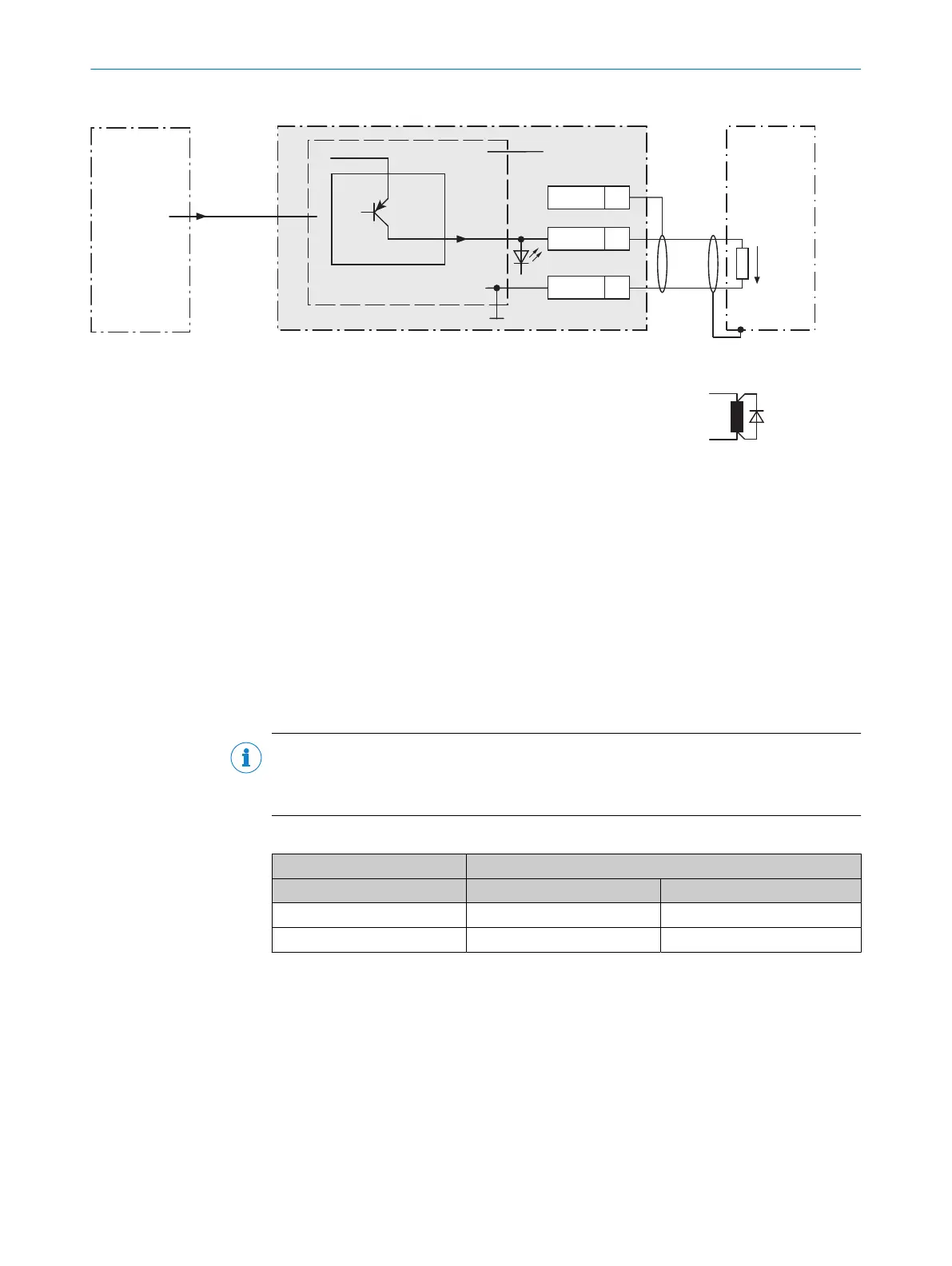
Figure 29: Wiring external digital outputs “External output 1” and “External output 2” of the device in the CDB650-204
connection module
1
Device
2
The optional CMC600 parameter cloning module is required in the connection module in order to be able to use the
additional external digital inputs and outputs of the device
3
Load (e.g. PLC)
4
Output voltage V
out
5
With inductive load: see note
6
Logical “External output” in the device
Inductive load
NOTE
Provide an arc-suppression switch at the digital output if inductive load is present.
b
Attach a freewheeling diode directly to the load for this purpose.
Table 26: Assignment of placeholders to the digital outputs
Device (logical output) CDB650-204 (physical output)
External output A Signal B Terminal C
1 EXT. OUT 1 23
2 EXT. OUT 2 24
Functional principle of the external digital outputs
The optional CMC600 parameter cloning module in combination with the CDB or CDM
connection module offers two additional digital outputs for the device. The outputs are
available at the respective terminals of the connection module. To distinguish them
from the physical digital outputs directly on the device, these addition outputs via the
CMC600 are designated as “external outputs”.
ANNEX 13
8016185/19E9/2020-10-21 | SICK O P E R A T I N G I N S T R U C T I O N S | Lector64x/65x Flex, Lector65x Dynamic Focus
79
Subject to change without notice

Table of Contents

Related product manuals