EasyManua.ls Logo

SICK Lector64x Flex - Page 88

SICK Lector64x Flex
96 pages
Print Icon
To Next Page IconTo Next Page
To Next Page IconTo Next Page
To Previous Page IconTo Previous Page
To Previous Page IconTo Previous Page
Loading...
8
PNP sensor
9
Supply voltage V
S
+24V*
CDM420-0006
PNP sensor 4
V
S
GND
Out
GND
S6
ON
OFF
S6 : SGND-GND
V
S ext
Shield
A
Sensor B
37
SGND
6
Shield
39
+24 V*
Trigger sensor 1
3
2
+24V*
CDM420-0006
GND
S6
ON
OFF
S6 : SGND-GND
Shield
A
Sensor B
37
SGND
6
Shield
39
+24 V*
1
V
S ext
GND
A
37
2
2
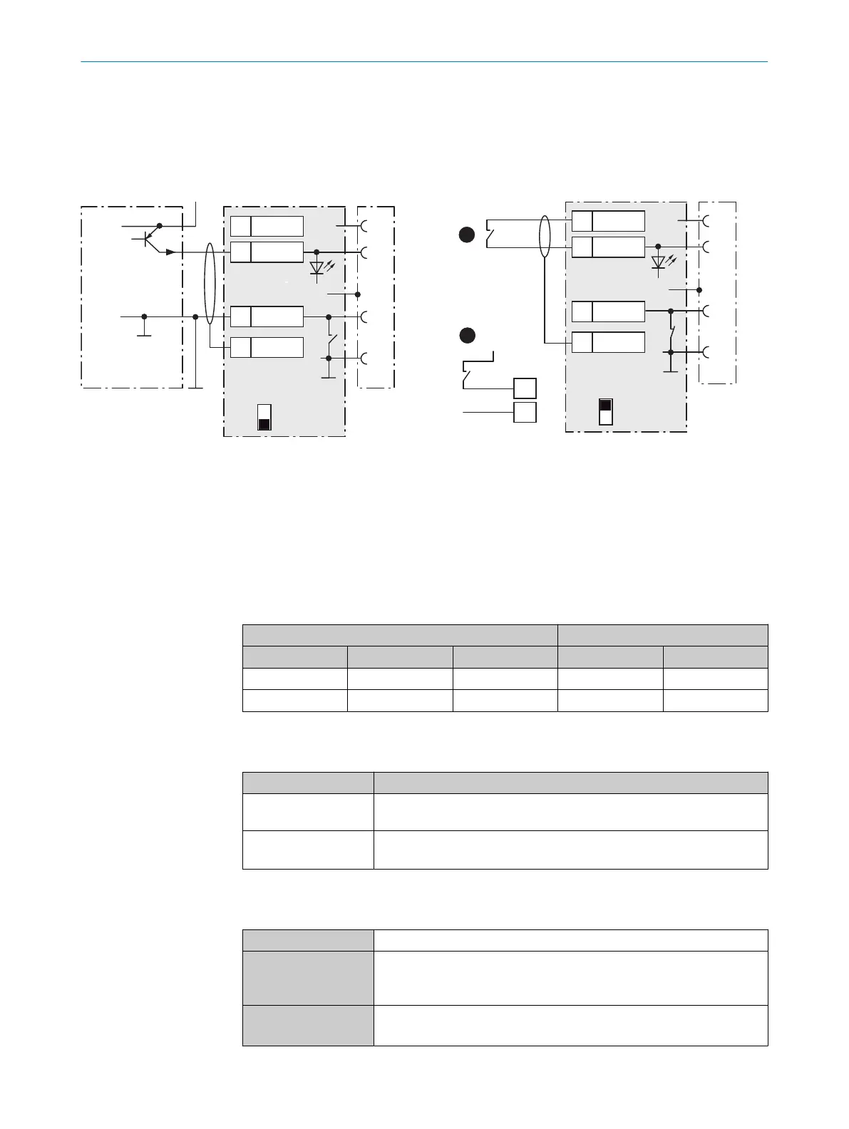
Figure 37: Left: Trigger sensor connected potential-free and supplied with power externally. Right: Alternatively switch,
!
supplied with power by connection module CDM420-0006 or
"
connected potential-free and supplied with power externally.
Switch setting S6 then as in left figure.
1
Trigger sensor, e.g. for read cycle generation
2
External supply voltage V
S ext
3
PNP sensor
4
Supply voltage V
S
Table 30: Assignment of placeholders to the digital inputs
CDM420-0006 Device
Terminal A Signal B Pin C Pin D Sensor E
38 Sensor 1 14 10 1
28 Sensor 2 4 15 2
Function of switch S6
Table 31: Switch S6: SGND - GND
Switch setting Function
ON GND of the trigger sensor connected with GND of CDM420-0006 and
GND of the device
OFF Trigger sensor connected potential-free at CDM420-0006 and device.
Common, isolated reference potential of all digital inputs is SGND.
Characteristic data of the digital inputs
Table 32: Characteristic data of the digital inputs “Sensor 1” and “Sensor 2”
Type Switching
Switching behavior Power to the input starts the assigned function, e.g. start read cycle.
Default setting in the device: logic not inverted (active high), debounce
time 10 ms
Properties
Opto-decoupled, reverse polarity protected
Can be wired with PNP output of a trigger sensor
13 ANNEX
88
O P E R A T I N G I N S T R U C T I O N S | Lector64x/65x Flex, Lector65x Dynamic Focus 8016185/19E9/2020-10-21 | SICK
Subject to change without notice

Table of Contents

Related product manuals