EasyManua.ls Logo

SICK RFU62 Series - Page 139

SICK RFU62 Series
278 pages
To Next Page IconTo Next Page
To Next Page IconTo Next Page
To Previous Page IconTo Previous Page
To Previous Page IconTo Previous Page
Loading...
á
Maximum 32 users
â
Example of alternative connection module.
Alternative connection module for RFU62x: CDB620 or CDM420-0001. CDB650-204 only
for RFU62x-101xx (Ethernet variant)
CDB620 or CDM420-0001: An adapter cable (female connector, M12, 17-pin, A-
coded / male connector, D-Sub-HD, 15-pin) is required to connect the RFU62x-101xx (Eth‐
ernet variant)
CDB650-204: A connection cable 1:1 (female connector, M12, 17-pin, A-coded/male
connector, M12, 17-pin, A-coded) is required to connect the RFU62x-101xx (Ethernet vari‐
ant)
NOTE
Activate the CAN data interface in the device with a configuration tool, e.g. the configu‐
ration software SOPAS ET.
Make further settings in the device corresponding to the function of the device in the
system configuration.
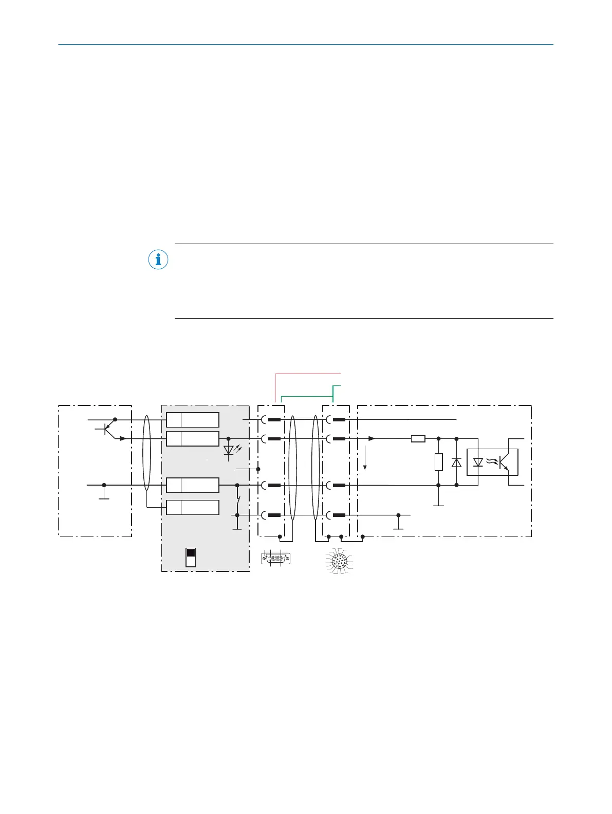
14.8.7 Wiring digital switching inputs “Sensor 1” and “Sensor 2” of the device in the CDM420-0006
Device = RFU62x-104xx (serial variant), RFU62x-101xx (Ethernet variant)
Device 5
CDM420-0006
PNP sensor 9
V
S
V
S
V
S
GND
SensGND
3.32 K
6.64 K
Sensor E
V
in
D
9
2
1
C
15
1
5
Out
+24V*
GND
S6
ON
OFF
S6 : SGND-GND
Shield
GND
.
.
.
A
Sensor B
37
SGND
6
Shield
39
+24 V*
GND
SensGND
3
1
7
2
6
5
4
8
13
14
17
15
9
10
12
16
11
Trigger sensor 1
ß
E.g. photo-electric
switch 8
4
7 6
110
15
6
11
5
Cable 2
Cable 3
Figure 85: Trigger sensor supplied with power by connection module CDM420-0006
1
Trigger sensor, e.g. for read cycle generation
2
RFU62x-104xx (serial variant): connecting cable permanently connected with the device (male connector, D-Sub-HD,
15-pin)
3
RFU62x-101xx (Ethernet variant): adapter cable (male connector, D-Sub-HD, 15-pin / female connector, M12, 17-pin, A-
coded)
4
Input voltage V
in
5
Device
6
RFU62x-101xx (Ethernet variant): male connector, M12, 17-pin, A-coded
7
Connection module: female connector, D-Sub-HD, 15-pin
8
e.g. photoelectric sensor
9
PNP sensor
ANNEX 14
8015930/ZTM0/2018-11-06 | SICK O P E R A T I N G I N S T R U C T I O N S | RFU62x
139
Subject to change without notice

Table of Contents

Other manuals for SICK RFU62 Series

Related product manuals