EasyManua.ls Logo

Siemens CCAW1417-LPO

Siemens CCAW1417-LPO
34 pages
To Next Page IconTo Next Page
To Next Page IconTo Next Page
To Previous Page IconTo Previous Page
To Previous Page IconTo Previous Page
Loading...
Technical data
9
Siemens AG 03.2011
3 Technical data
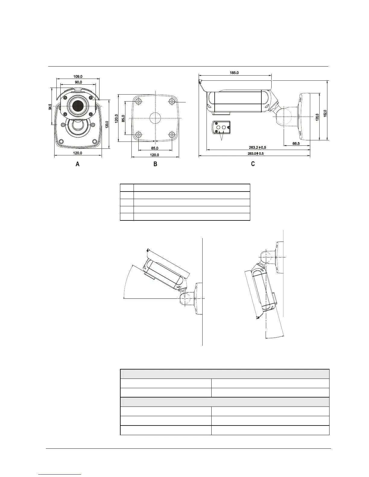
(
Unit: mm
)
2
1
Fig. 1 Dimensions
1 Mounting holes Ø 6.4 (4x)
2 ¼-inch 20 UNC female thread (2x)
A Front view
B Rear view
C Side view
3
0
1
5
°
°
Fig. 2 Range of camera tilting angle
Power supply
Power source 12 V DC / 24 V AC, 0.75 A, 50 Hz
Heater power 24 V AC / 0.84 A, 50 Hz
General
Image sensor ¼-inch SONY 760H EXview HAD CCD
Pixels 795 (H) x 596 (V)
Scanning system 2:1 interlace

Other manuals for Siemens CCAW1417-LPO

Related product manuals