EasyManua.ls Logo

Siemens Simatic S7-300 - Clearance

Siemens Simatic S7-300
242 pages
To Next Page IconTo Next Page
To Next Page IconTo Next Page
To Previous Page IconTo Previous Page
To Previous Page IconTo Previous Page
Loading...
Configuring
S7-300 Programmable Controller Hardware and Installation
4-6 A5E00105492-01
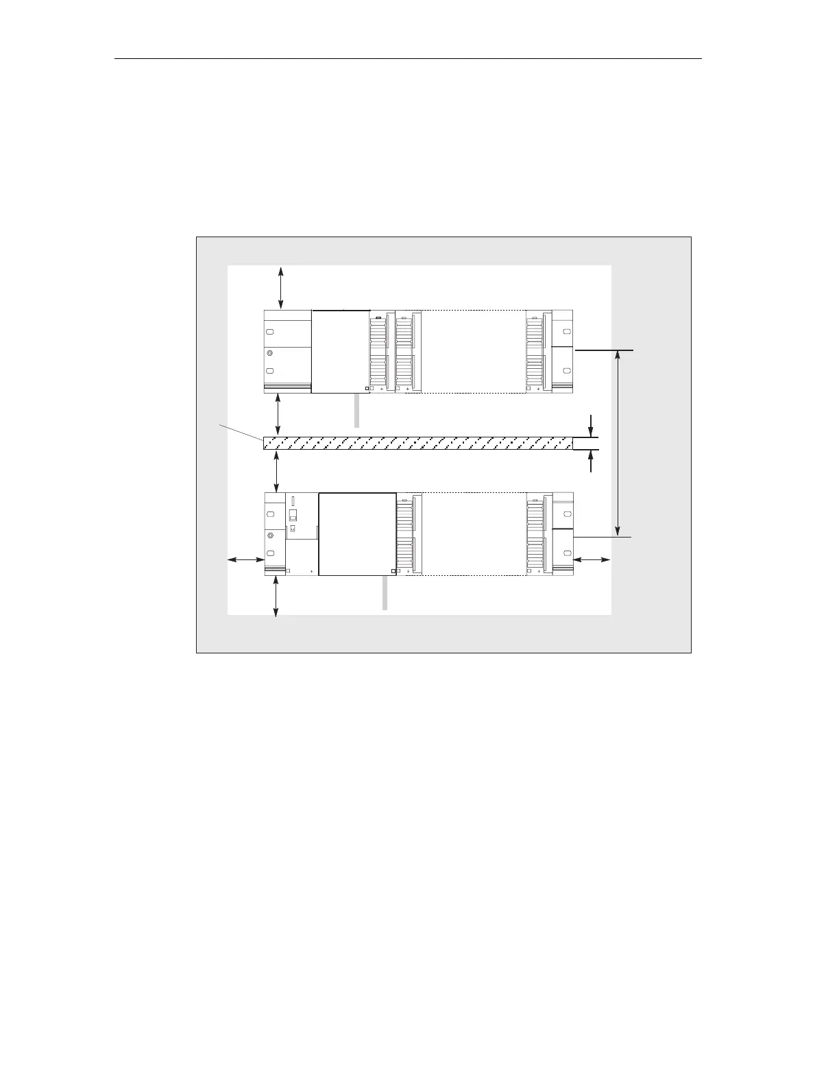
Rules: Clearance
You must maintain the clearance as shown in the figure in order to provide module
installation space and to ensure elimination of heat generated by the modules.
The S7-300 assembly on multiple module racks shown in the figure below specifies
the clearance between module racks and adjacent components, cable ducts,
cabinet walls etc.
40 mm
20 mm
40 mm
a
200 mm + a
CPU
CPU
40 mm (when using a shield contact element from its
lower edge)
40 mm
20 mm
e. g. cable channel
Figure 4-3 Clearance

Table of Contents

Other manuals for Siemens Simatic S7-300

Related product manuals