EasyManua.ls Logo

Siemens Simatic S7-400

Siemens Simatic S7-400
228 pages
To Next Page IconTo Next Page
To Next Page IconTo Next Page
To Previous Page IconTo Previous Page
To Previous Page IconTo Previous Page
Loading...
Assembling and Installing Systems
A-36
Automation System S7-400 Hardware and Installation
A5E00850741-01
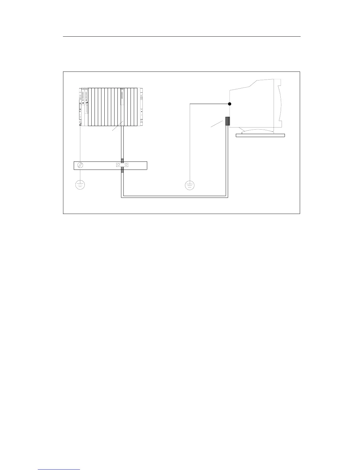
Figure A-11 shows a schematic view of the shielding and grounding for your
monitor and S7-400.
CR
CP
Shielding
busbar
Outer shield
connected
to ground
clamp
Monitor with
isolated
electronic
ground and
chassis
ground
Figure A-11 Shielding and Grounding with a Great Distance between Monitor and Programmable
Controller

Table of Contents

Other manuals for Siemens Simatic S7-400

Related product manuals