EasyManua.ls Logo

Siemens SIRIUS 3RA

Siemens SIRIUS 3RA
166 pages
To Next Page IconTo Next Page
To Next Page IconTo Next Page
To Previous Page IconTo Previous Page
To Previous Page IconTo Previous Page
Loading...






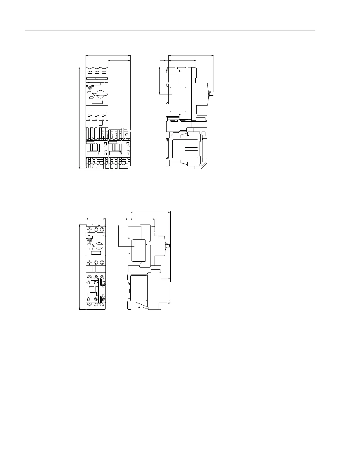
Figure C-5 S00 reversing starter, AC/DC, spring-loaded connection system3RA2210-..E
3RA2 fuseless load feeders – Size S0 for DIN rail





Figure C-6 S0 direct-on-line starter, AC, screw-type connection system3RA2120‑..A
Dimension drawings (dimensions in mm)
C.2 3RA2 fuseless load feeders – Size S00 to S3 for DIN rail
SIRIUS 3RA Load Feeders
142 Equipment Manual, 02/2022, A5E03656507520A/RS-AC/004

Table of Contents

Related product manuals