EasyManua.ls Logo

Siemens SIRIUS 3RA

Siemens SIRIUS 3RA
166 pages
To Next Page IconTo Next Page
To Next Page IconTo Next Page
To Previous Page IconTo Previous Page
To Previous Page IconTo Previous Page
Loading...








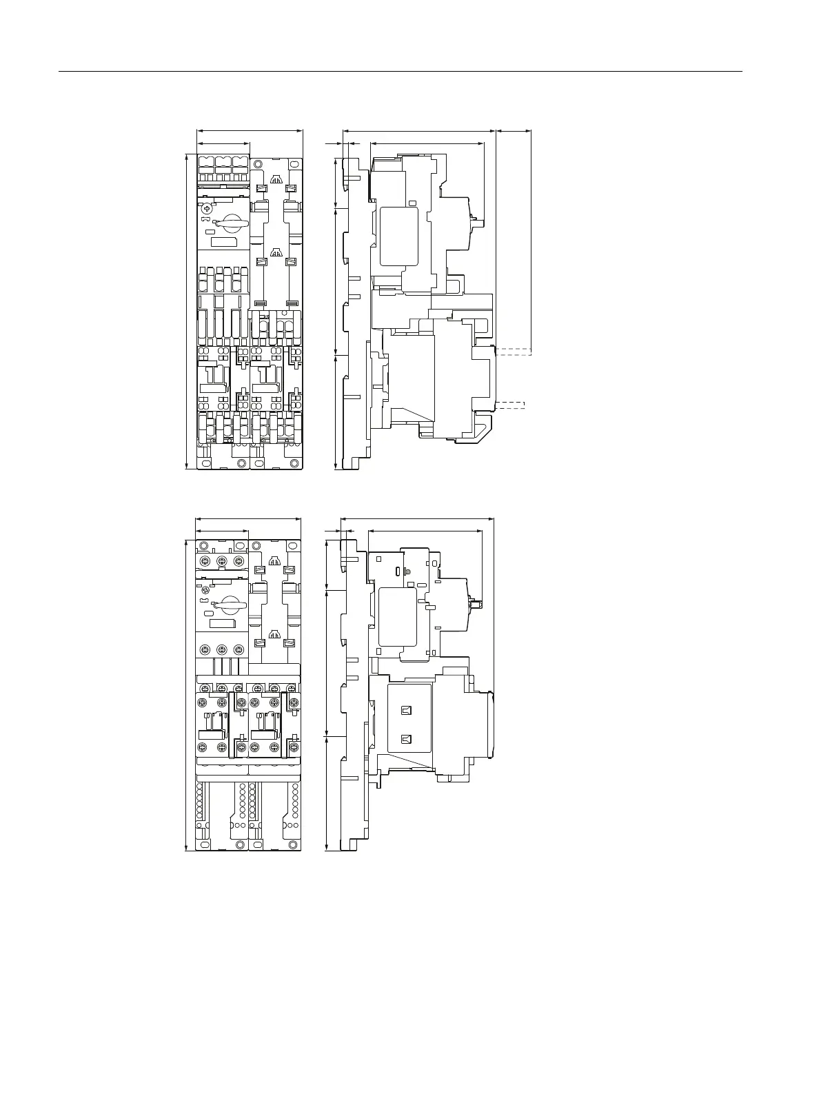
Figure C-13 S0 reversing starter, AC with spring-loaded connection system3RA2220-..F..-0AP0








Figure C-14 S0/S0 and S00/S0 reversing starters, DC, screw-type connection system 3RA2220-..B..-0BB4
Dimension drawings (dimensions in mm)
C.2 3RA2 fuseless load feeders – Size S00 to S3 for DIN rail
SIRIUS 3RA Load Feeders
146 Equipment Manual, 02/2022, A5E03656507520A/RS-AC/004

Table of Contents

Related product manuals