EasyManua.ls Logo

Siemens SIRIUS 3RA

Siemens SIRIUS 3RA
166 pages
To Next Page IconTo Next Page
To Next Page IconTo Next Page
To Previous Page IconTo Previous Page
To Previous Page IconTo Previous Page
Loading...









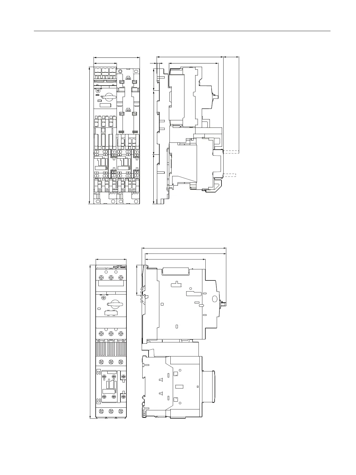
Figure C-15 S0 reversing starter, DC, spring-loaded connection system3RA2220-..F..-0BB4
3RA2 fuseless load feeders – Size S2 for DIN rail






Figure C-16 Direct-on-line starter S2, screw-type connection system3RA2130‑4.A..-....
Dimension drawings (dimensions in mm)
C.2 3RA2 fuseless load feeders – Size S00 to S3 for DIN rail
SIRIUS 3RA Load Feeders
Equipment Manual, 02/2022, A5E03656507520A/RS-AC/004 147

Table of Contents

Related product manuals