EasyManua.ls Logo

Siemens SIRIUS 3RA

Siemens SIRIUS 3RA
166 pages
To Next Page IconTo Next Page
To Next Page IconTo Next Page
To Previous Page IconTo Previous Page
To Previous Page IconTo Previous Page
Loading...







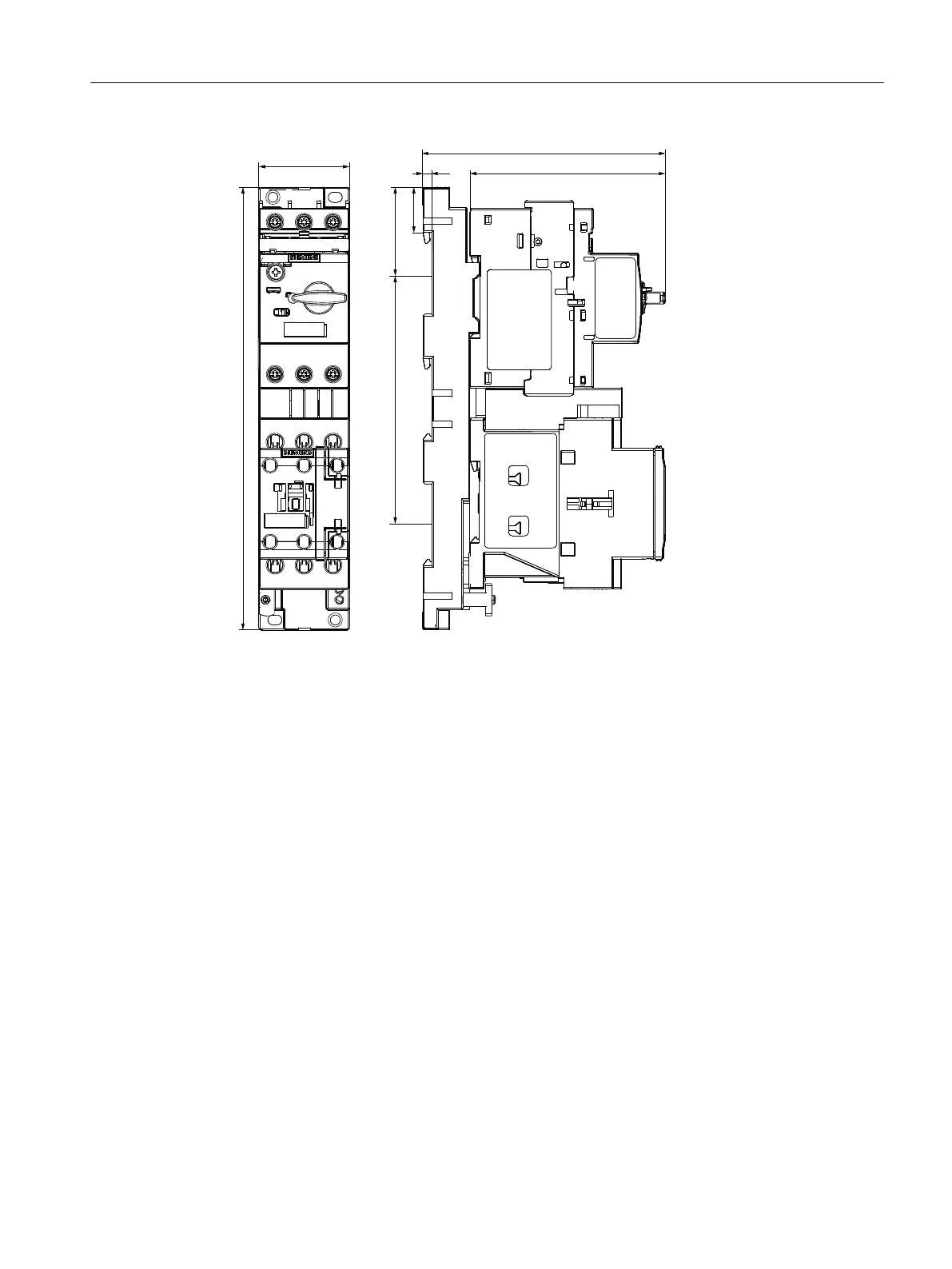
Figure C-22 Direct-on-line starter S0, screw-type connection system, DIN-rail adapter 3RA2922‑1BA00
Dimension drawings (dimensions in mm)
C.2 3RA2 fuseless load feeders – Size S00 to S3 for DIN rail
SIRIUS 3RA Load Feeders
Equipment Manual, 02/2022, A5E03656507520A/RS-AC/004 153

Table of Contents

Related product manuals