EasyManua.ls Logo

Siemens SIRIUS 3RA

Siemens SIRIUS 3RA
166 pages
To Next Page IconTo Next Page
To Next Page IconTo Next Page
To Previous Page IconTo Previous Page
To Previous Page IconTo Previous Page
Loading...








44
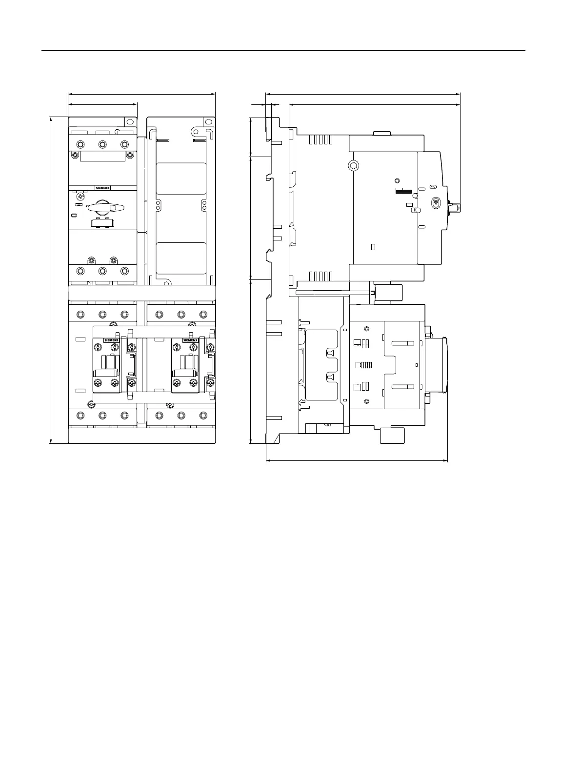
Figure C-25 Reversing starter S3, screw-type connection system, DIN-rail adapter 3RA2942‑1AA00
Dimension drawings (dimensions in mm)
C.2 3RA2 fuseless load feeders – Size S00 to S3 for DIN rail
SIRIUS 3RA Load Feeders
156 Equipment Manual, 02/2022, A5E03656507520A/RS-AC/004

Table of Contents

Related product manuals