EasyManua.ls Logo

Siemens SIRIUS 3RA

Siemens SIRIUS 3RA
166 pages
To Next Page IconTo Next Page
To Next Page IconTo Next Page
To Previous Page IconTo Previous Page
To Previous Page IconTo Previous Page
Loading...







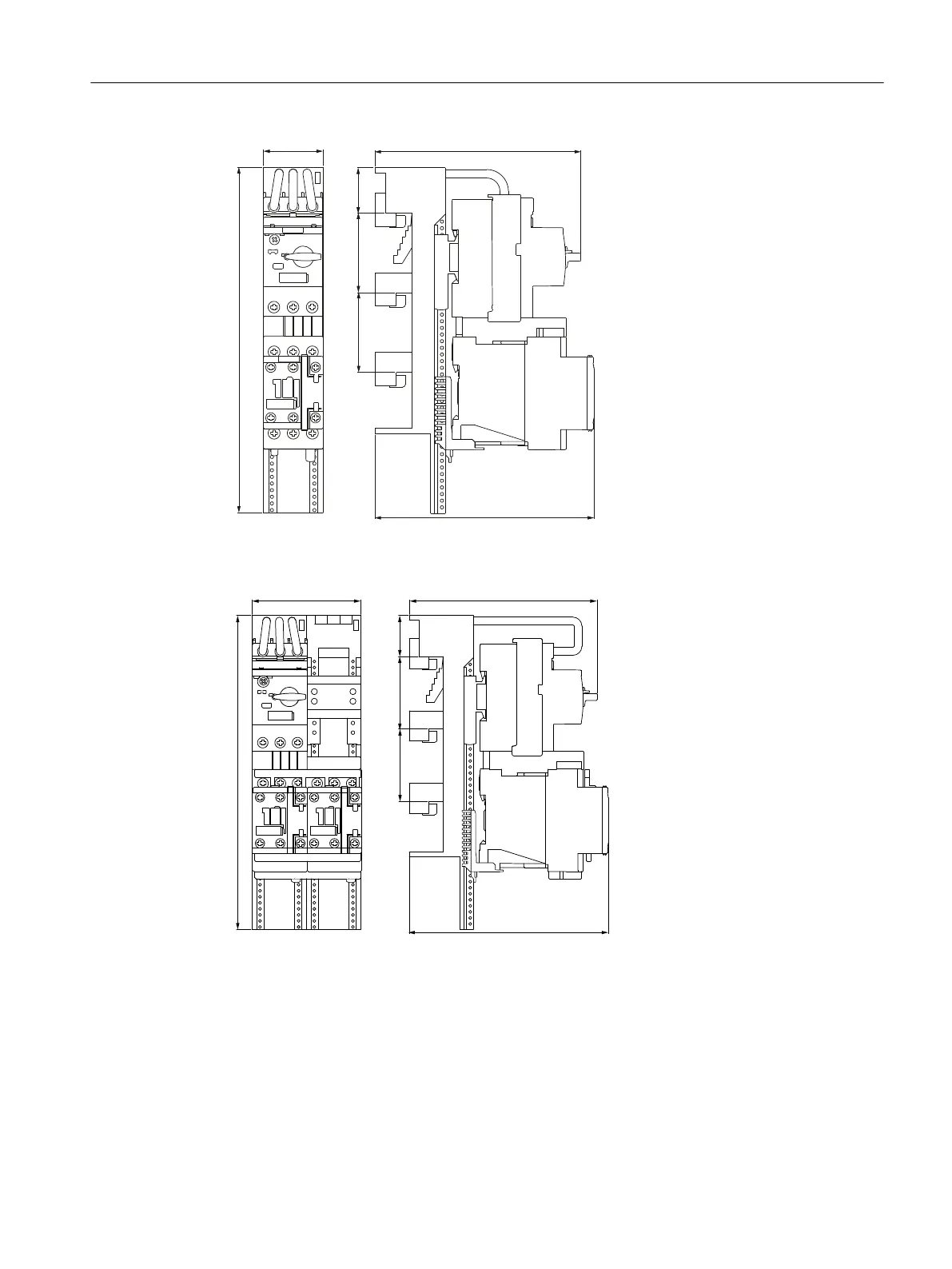
Figure C-34 S0/S0 and S0/S00 direct-on-line starters, DC, screw-type connection
system3RA2120-..D..-0BB4






Figure C-35 S0/S0 and S00/S0 reversing starters, DC, screw-type connection system
3RA2220-..D..-0BB4
Dimension drawings (dimensions in mm)
C.3 3RA2 fuseless load feeders – Size S00 to S2 for 60 mm busbar systems
SIRIUS 3RA Load Feeders
Equipment Manual, 02/2022, A5E03656507520A/RS-AC/004 161

Table of Contents

Related product manuals