EasyManua.ls Logo

Siemens SIRIUS 3RA

Siemens SIRIUS 3RA
166 pages
To Next Page IconTo Next Page
To Next Page IconTo Next Page
To Previous Page IconTo Previous Page
To Previous Page IconTo Previous Page
Loading...







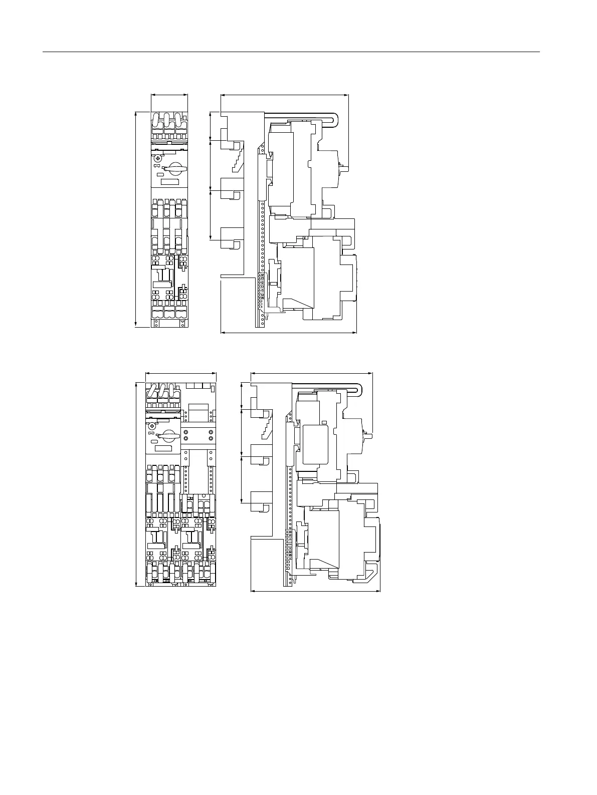
Figure C-32 S0 direct-on-line starter, AC, spring-loaded connection system3RA2120-..H..-0AP0







Figure C-33 S0 reversing starter, AC, spring-loaded connection system3RA2220-..H..-0AP0
Dimension drawings (dimensions in mm)
C.3 3RA2 fuseless load feeders – Size S00 to S2 for 60 mm busbar systems
SIRIUS 3RA Load Feeders
160 Equipment Manual, 02/2022, A5E03656507520A/RS-AC/004

Table of Contents

Related product manuals