EasyManua.ls Logo

SMAR TP301 - Page 12

SMAR TP301
50 pages
Print Icon
To Next Page IconTo Next Page
To Next Page IconTo Next Page
To Previous Page IconTo Previous Page
To Previous Page IconTo Previous Page
Loading...
TP301 Operation, Maintenance and Instructions Manual
1.6
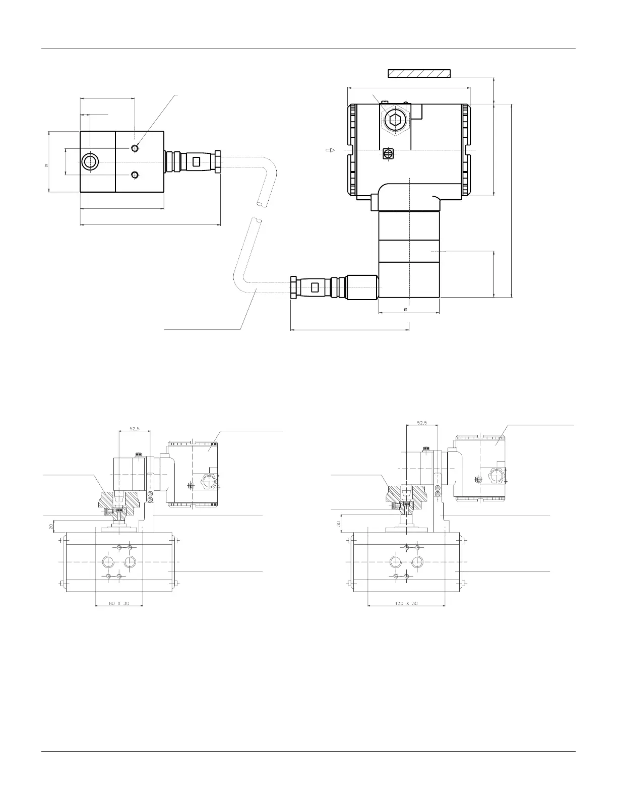
REMOTE SENSOR
83
(3.27)
Leave, at least, a 150 mm space, for
zero and span adjustment with the
magnetic tool.
PLUG
ELECTRICAL
CONNECTION
113
(4.45)
(0.35)
9
(2.16)
55
(6.89)
175
76
49.5
55
(2.17)
THREADS FOR SCREWS
M6 x 1 ( 2 PLACES )
127
107
(4.21)
FLEXIBLE SHIELD CABLE
AVAILABLE LENGHTS:
5 m, 10 m, 15 m, 20 m
(2.99)
(5)
(1.95)
(0.94)
24
42
Figure 1.5.a Remote Sensor Dimensional Drawing
SPECIAL MOUNTING BRACKET ROTARY VDI / VDE NAMUR
Mounting bracket of the position transmitter for rotary valves actuated via type actuators rack and
pinion, designed to comply with NAMUR VDI/VDE.
POSITON TRANSMITTER
POSITON TRANSMITTER
ROTARY MAGNET
ROTARY MAGNET
MAGNET BRACKET
MAGNET BRACKET
MOUNTING BRACKET
MOUNTING BRACKET
PNEUMATIC ACTUATOR
NAMUR VDI/VDER STANDARD
PNEUMATIC ACTUATOR
NAMUR VDI/VDER STANDARD
Mounting 80 mm between centers, 20 mm stem
height.
Mounting 130 mm between centers, 30 mm
stem height.
Figure 1.5.b Special Mounting Bracket Dimensional Drawing - Rotary VDI / VDE NAMUR

Related product manuals