EasyManua.ls Logo

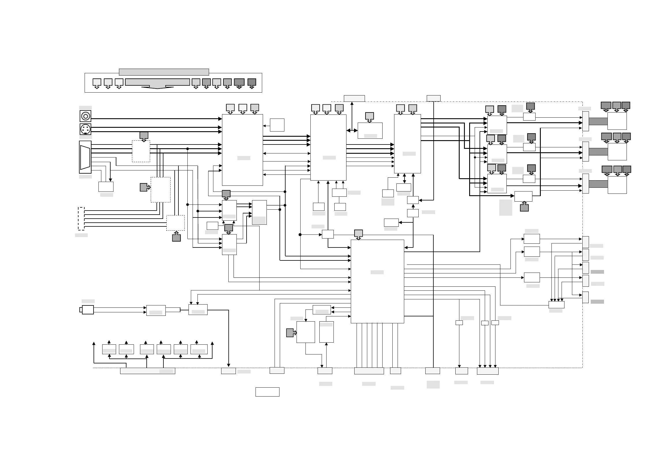
Sony VPL-CS7 - 5 Block Diagrams; Overall

Sony VPL-CS7
98 pages
Print Icon
To Next Page IconTo Next Page
To Next Page IconTo Next Page
To Previous Page IconTo Previous Page
To Previous Page IconTo Previous Page
Loading...
5-1
VPL-CS7/ES2
5-1
OverallOverall
Section 5
Block Diagrams
Emulator IIC Exit Cont
CVBS
Y
C
R/R-Y
G/Y
B/B-Y Uart
DFBK
HS/CS
DHS
VS DVS
COAST
SID
(VPL-CS7)
(VPL-ES2)
FAN_A
IIC 400K
FAN_B
FAN_Prot
INT/No INT
FAN_1
FAN_C
FAN_2
H Pol
FAN_3
V Pol
FAN_D
LAMP_POWER
IIC 100K
LAMP_ON
Au_Mute
LAMP_PROT
TILT_X
LAMP_COVER
SA
TILT_Y
Audio_R
MOT_C
Audio_L
MOT_EN
POS_DET
CPU & PW Write
5V-1
5V-2
5V-3
3.3V-3
3.3V-2
2.5V-3
1.8V
1.55V
Key_0
Key
_4
Pow
er_LED
TEMP_LED
LAMP_LED
PSAVE_LED
CIRCS
LED_Cont
G BOARD
SPEAKER
SA BOARD S BOARD
H BAORD
L BOARD CPU & PW Write THERM FUSE BALLAST
NR BOARD
G BOARD
QA BOARD
C.DEC
PW2200
Scan Converter
PW168
TG/Gamma
CXD3536
P.DRV
CXA7005
TG Buff
74VHCT541
LCD
Panel
(Red)
LCD
Panel
(Green)
SID
Buff
SID
Buff
X'tal
PW
Reset
TG
Reset
EEPROM
M24C64
SPRED
ICS332
4M Flash ROM
MBM29LV800TA
IIC SW
P.DRV
CXA7005
Main CPU
HD64 (New)
EEPROM
M24C64
232C
SW
Sync Sep
M52347
Sync Sep
CXA2171
Sync Sel
Logic
X'tal
27MHz
CX
P.DRV
CXA7005
SID
Buff
DDC
24LC21
Audio Proces
Audio Amp
CN 2P
1.5V 1.8V
J901
S3V
POWER SUPPLY EXAMPLE
Accelerometer
ADXL202JE
Motor Cont
Motor Drive
BA6288
CN 5P
Buff
LMC7101
CN FPC12P
B to B 70P
Exit
SW
CN 4P
CN12P
SW
Buff
Buff
CN 2P
CN 5P
Motor Drv
Motor Drv
Motor Drv
LCD
Panel
(Blue)
CN FPC23PCN FPC23P
CN 3P CN 3P CN 3P CN 3P
OR
3.3V
3.3V
5V
15V
15V
15V
S3V
9V
13.5V 5V 15V
13.5V 5V 15V
13.5V 5V 15V
CN 6P
IC204
IC205
IC303
IC304
IC302
IC403
IC404
IC405
Q701
IC306
Q602
Q601
Q502
Q501
Q652
Q651
IC407
IC408
IC409
IC410
IC651
IC501
IC601
IC703
IC705
CN702
CN703
Q806
IC807
IC808
IC809
CN809
CN810
CN811
CN812
CN807CN806
Q808 Q807
CN803
CN805CN905
CN806
IC908
J902
CN 24P
5V Reg 5V Reg 3.3V Reg 2.5V Reg 1.8V Reg 1.55V Reg
CN804
IC803 IC805
IC802
IC804 IC806
SIG Sel
EL5634IUZ
-T7
(VPL-ES2
0nly)
RGB Amp
(VPL-CS7)
SIG Sel
EL5634IUZ
-T7
(VPL-ES2)
Sync Drv
SN75453
BPSR
(VPL-CS7)
CN 5P
CN 5P
CN815
9V
5V
5V
5V
IC203
IC102
X201
IC201
9V
2.5V 5V 9V 13.5V 15V
3.3V2.5V1.8V 3.3V2.5V1.5V
1.8V 3.3V
3.3V
S5V
CN902
CN901
CN904
IC901
IC301
IC401
X301
IC911
IC913
IC915
IC914
IC801
15V
3.3V 15V
CN601
CN501
CN651
3.3V 15V
CN FPC23P
Overall

Related product manuals