EasyManua.ls Logo

Sukup Sweepway - Unload System Dimensions

Default Icon
92 pages
Print Icon
To Next Page IconTo Next Page
To Next Page IconTo Next Page
To Previous Page IconTo Previous Page
To Previous Page IconTo Previous Page
Loading...
Dimensions
10
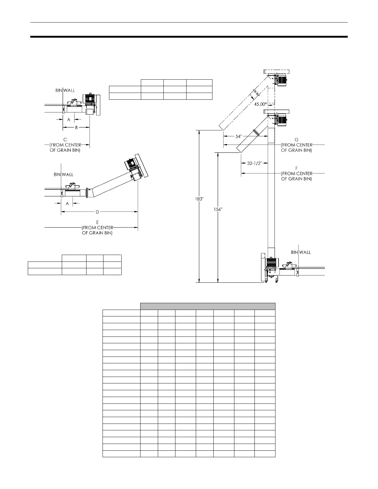
Fig. 2
DISCHARGE HEIGHT IS 24” ABOVE STANDARD
HORIZONTAL POWERHEAD.
SWUL0063
07/30/2012 IJH
UNLOAD SYSTEM DIMENSIONS
See Fig. 2 and Tables 2-6 for approximate dimensions of unload systems.
6”
8”
10”
WIDTH
6-3/8”
8-1/4”
10-1/4”
LENGTH
7-7/8”
9”
10-3/4”
Table 2 – Horizontal discharge dims.
6”
8”
10”
WIDTH
8-3/8”
10”
12”
LENGTH
9-1/8”
10”
12”
Table 3 – Incline discharge dims.
6” SWEEPWAY DIMENSIONS
BIN DIA.
A
B
C
D
E
F
G
15'
17
35
125
99
189
163
184.5
15' 6"
14
32
125
96
189
163
184.5
16" 5" (5M)
12
30
128.5
94
192.5
166.5
188
18'
17.5
35.5
143.5
99.5
207.5
181.5
203
18' 7"
14
32
143.5
96
207.5
181.5
203
19' 8" (6M)
14
32
150
96
214
188
209.5
21'
18
36
162
100
226
200
221.5
21' 8"
14
32
162
96
226
200
221.5
22" 11" (7M)
14.5
32.5
170
96.5
234
208
229.5
24'
18
36
180
100
244
218
239.5
24' 9"
13.5
31.5
180
95.5
244
218
239.5
26' 3" (8M)
14.5
32.5
190
96.5
254
228
249.5
27'
19
37
199
101
263
237
258.5
27' 10"
14
32
199
96
263
237
258.5
29' 6" (9M)
14
32
209
96
273
247
268.5
30'
20
38
218
102
282
256
277.5
31'
14
32
218
96
282
256
277.5
33'
20
38
236
102
300
274
295.5
34'
14
32
236
96
300
274
295.5
36' (11M)
20
38
254
102
318
292
313.5
37' 1"
13.5
31.5
254
95.5
318
292
313.5
IMPORTANT:
Dimensions are
based on nominal
bin diameters
listed and provide
approximate
measurements for
planning and
layout purposes.
Table 4 – Unload
system dimensions
for 6” Sweepway