EasyManua.ls Logo

Superior DRC6340TEP - Gas Conversion Kits

Superior DRC6340TEP
56 pages
Print Icon
To Next Page IconTo Next Page
To Next Page IconTo Next Page
To Previous Page IconTo Previous Page
To Previous Page IconTo Previous Page
Loading...
NOTE: DIAGRAMS & ILLUSTRATIONS ARE NOT TO SCALE.
33
INNOVATIVE HEARTH PRODUCTS • DIRECT-VENT GAS FIREPLACES (DRT6300/DRC6300) • INSTALLATION INSTRUCTIONS
In Canada:
THE CONVERSION SHALL BE CAR-
RIED OUT IN ACCORDANCE WITH THE
REQUIREMENTS OF THE PROVINCIAL
AUTHORITIES HAVING JURISDICTION
AND IN ACCORDANCE WITH THE RE-
QUIREMENTS OF THE CAN/CGA-B149.1
INSTALLATION CODE.
LA CONVERSION DEVRA ÊTRE EF-
FECTUÉE CONFORMÉMENT AUX
RECOMMANDATIONS DES AUTORITÉS
PROVINCIALES AYANT JURIDICTION
ET CONFORMÉMENT AUX EXIGENCES
DU CODE D'INSTALLATION CAN/CGA-
B149.1.
Gas conversion kits are available to adapt your
appliance from the use of one type of gas to
the use of another. These kits contain all the
necessary components needed to complete the
task including labeling that must be affixed to
ensure safe operation.
Kit part numbers are listed below, and the fol-
lowing steps detail the conversion procedure.
Step 1. TURN OFF THE GAS SUPPLY TO THE
APPLIANCE and disconnect power supply at
the circuit breaker. Ensure appliance is cold.
CAUTION: THE GAS SUPPLY SHALL BE
SHUT OFF PRIOR TO DISCONNECTING THE
ELECTRICAL POWER, BEFORE PROCEEDING
WITH THE CONVERSION.
ATTENTION. AVANT D’EFFECTUER
LA CONVERSION, COUPEZ D’ABORD
L’ALIMENTATION EN GAZ, ENSUITE,
COUPEZ L’ALIMENTATION ÉLECTRIQUE.
Step 2. Remove the front glass door/frame
and the access plate from the appliance. See
Figures 37 and 47.
Step 3. Carefully remove the logs and the grate
assembly / contemporary media. Exercise care
so as not to break the logs / contemporary
media.
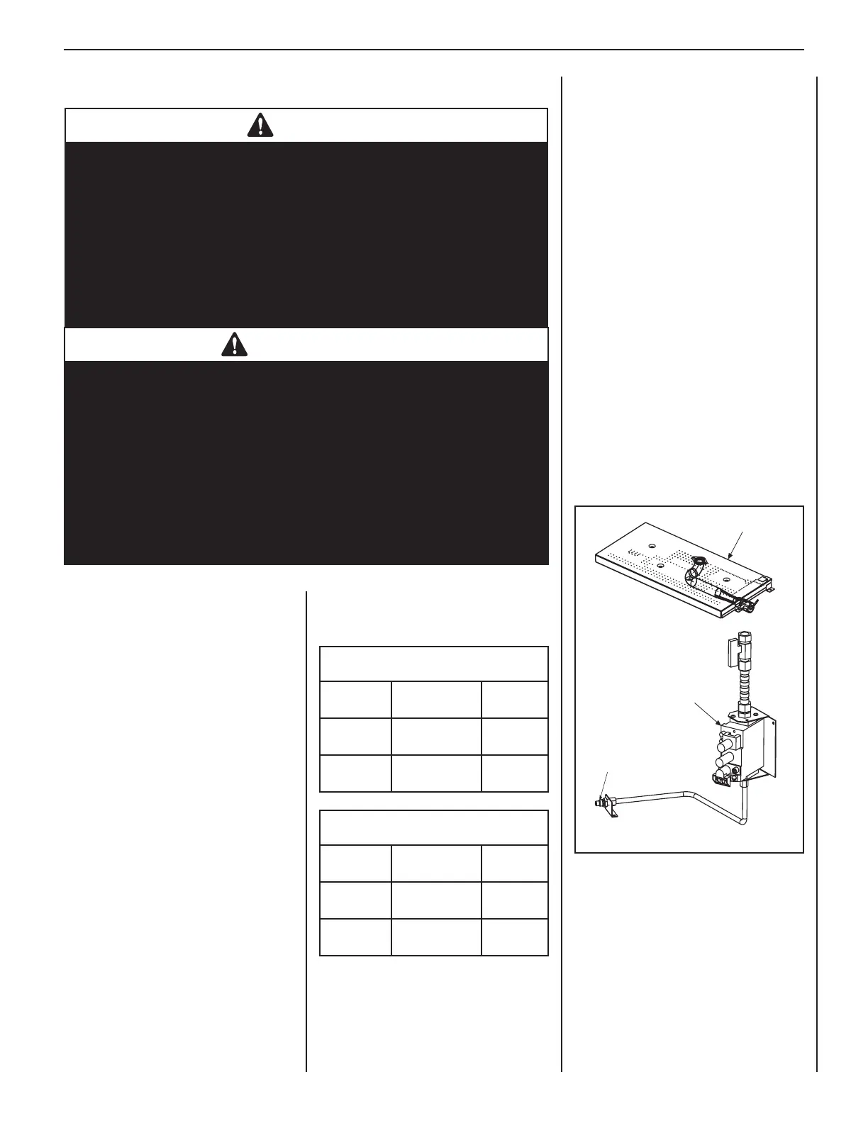
Step 4. Refer to Figure 55. Remove the two
5/16" screws securing the burner to the burner
brackets. Carefully slide the burner to the left
to clear the venturi from the orifice. Set aside
the screws and burner assembly in a secure
location for later reinstallation.
WARNING
This conversion kit shall be installed by a qualified service agency in
accordance with the manufacturer’s instructions and all applicable codes
and requirements of the authority having jurisdiction. If the information in
these instruction is not followed exactly, a fire, explosion or production of
carbon monoxide may result causing property damage, personal injury
or loss of life. The qualified service agency is responsible for the proper
installation of this kit. The installation is not proper and complete until the
operation of the converted appliance is checked as specified in the manu-
facturer’s instructions supplied with the kit. The qualified service agency
performing this installation assumes responsibility for this conversion.
AVERTISSEMENT
Cette trousse de conversion doit être installée par un technicien agréé,
selon les instructions du fabricant et selon toutes les exigences et tous les
codes pertinents de l’autorité compétente. Assurez-vous de bien suivre
les instructions dans cette notice pour réduire au minimum le risque
d’incendie, d’explosion ou la production de monoxyde de carbone pouvant
causer des dommages matériels, des blessures ou la mort. Le tecnicien
agréé est responsable de l’installation de cette trousse. L’installation n’est
pas adéquate ni complète tant que le bon fonctionnement de l’appareil
converti n’a pas été vérifié selon les instructions du fabricant fournies avec
la trousse. Le fournisseur de service qualifié ayant réalisé l'installation
assume les responsabilités liées à la conversion.
Natural Gas to Propane Gas
Conversion Kits
Fireplace
Conversion Kit
Model No.
Cat. No.
40 in.
GCK-
MDLX40NP
H8668
45 in.
GCK-
MDLX45NP
H8669
Propane Gas to Natural Gas
Conversion Kits
Fireplace
Conversion Kit
Model No.
Conversion
Kit Cat. No.
40 in.
GCK-MDLX-
40PN
H8670
45 in.
GCK-MDLX-
45PN
H8671
Step 5. Remove the control compartment access
door and gasket by removing the twelve (12)
screws securing it, and set it aside for later rein-
stallation.The gas valve can be accessed through
the opening, or the complete assembly can be
removed by sliding the assembly to the right.
GAS CONVERSION KITS
Figure 55
Burner Assembly
Gas Valve Assembly
Burner Orifice

Other manuals for Superior DRC6340TEP

Related product manuals