EasyManua.ls Logo

sylber DEVYL Bx 11 MTN - Circuito Idraulico; Schema Elettrico Multifilare

sylber DEVYL Bx 11 MTN
Print Icon
To Next Page IconTo Next Page
To Next Page IconTo Next Page
To Previous Page IconTo Previous Page
To Previous Page IconTo Previous Page
Loading...
7
ITALIANO
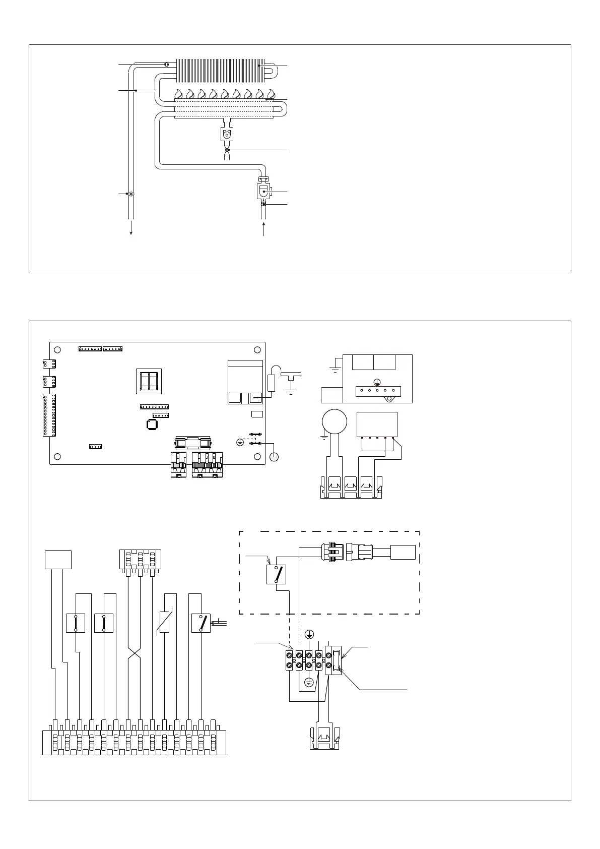
2.2 Circuito idraulico
UAC
EAF
3
2
1
8
7
6
5
4
1
Termostato limite
2
By-pass(Solopermodelli11-13ESI)
3
Sonda NTC
4
Scambiatore
5
Bruciatore
6
Valvolagas
7
Flussostato
8
Filtro
UAC
Uscita acqua calda
EAF
Entrata acqua fredda
Fig. 3
2.3 Schema elettrico multifilare
NOTA: LA POLARIZZAZIONE L-N È CONSIGLIATA
E.A./R.
X2
X1
X4
TR2
X9
X8
X7
CN1
F1=2A
X5
X6
X3
TR1
IWH02
VG
2
1
3
4
MOD
pk
OPE OPE
3 421
4
5
3
1
2
bl
V
br
br
bl
X2
1
14
gy
gy
bk
bk
w
w
gy (OUT)
bl (+)
or (-)
r
r
pu
pu
MOD
T.B.
F.L.
-t°
S.S.
PAD
or (-)
gy (OUT)
bl (+)
1
3
T.L.
X4
2
1
X1
LN
230 V
F= 3.15A
M5
RFS
br
bl
bl
br
bk
bl
w
w
bl
bk
TAG
230 V
aux
(*)
IWH02
Schema comando
CN1-X1-X9
Connettori di collega-
mento
TR1
Trasformatore
TR2
Trasformatore di accensio-
ne
F
Fusibile esterno 3.15A
F1
Fusibile 2A
E.A./R.
Elettrodo accensione/rile-
vazione
M5
Morsettiera per collega-
mentiesterni:230V
V
Ventilatore
VG
Valvolagas
OPE
Operatore valvola gas
MOD
Modulatore
T.B.
Termostato bruciatore
T.L.
Termostato limite
PAD
Pressostato analogico
differenziale
S.S.
Sonda(NTC)temperatura
circuito sanitario
F.L.
Flussostato sanitario
TAG (*)
Termostato antigelo
RFS (*)
Resistenza filo scaldante
pu
viola
r
rosso
bk
nero
gy
grigio
pk
rosa
bl
blu
br
marrone
w
bianco
or
arancione
(*)
Solo su modelli per installazio-
ne esterna
Fig. 4

Table of Contents

Related product manuals