EasyManua.ls Logo

Systema Eolo 20AE Series - Connection to the Board Code 04 CEQU1204

Systema Eolo 20AE Series
48 pages
Print Icon
To Next Page IconTo Next Page
To Next Page IconTo Next Page
To Previous Page IconTo Previous Page
To Previous Page IconTo Previous Page
Loading...
Gas airtight suspended warm air heaters - EOLO
34
SYSTEMA S.p.A.
Rev. 10EE0112
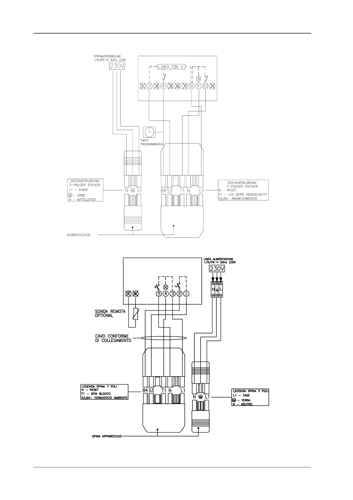
Fig. 26a Connection to the board code 04CEQU1204 (with 11 terminal)
Fig. 26b Connection to the board code 04CEQU1204 (with 5 terminal)
8.2 Connection to the board code 04CEQU1204

Table of Contents