EasyManua.ls Logo

TAC 2112 - Page 24

TAC 2112
70 pages
Print Icon
To Next Page IconTo Next Page
To Next Page IconTo Next Page
To Previous Page IconTo Previous Page
To Previous Page IconTo Previous Page
Loading...
TAC 2112, Manual Installation
5:4(
10
), 0-004-7459-3 (GB) 1999-08-01, TAC AB
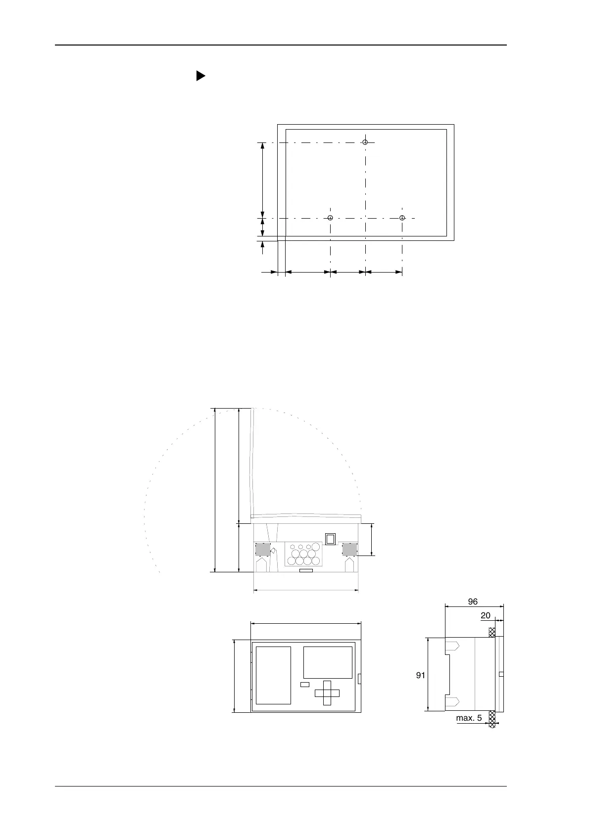
Procedure for mounting controller on a wall:
1. Drill holes for the three screws as shown in the scale drawing
below.
30
30
65
37
13
3
5
2. Remove the backplate from the electronic part (see above).
3. Mount the backplate and the metal brace.
4. Connect the wires.
5. Push the electronic part onto the backplate and secure the
controller in the metal brace with the fastening device.






20
96
max. 5
91
137
55
76
155
231
96
144
Dimensions in mm.

Related product manuals