EasyManua.ls Logo

Teletek electronics CA62 - CA62 Alarm Control Panel Plastic Box

Teletek electronics CA62
76 pages
Print Icon
To Next Page IconTo Next Page
To Next Page IconTo Next Page
To Previous Page IconTo Previous Page
To Previous Page IconTo Previous Page
Loading...
Installation and Programming Manual - СА62 Alarm Control Panel 7
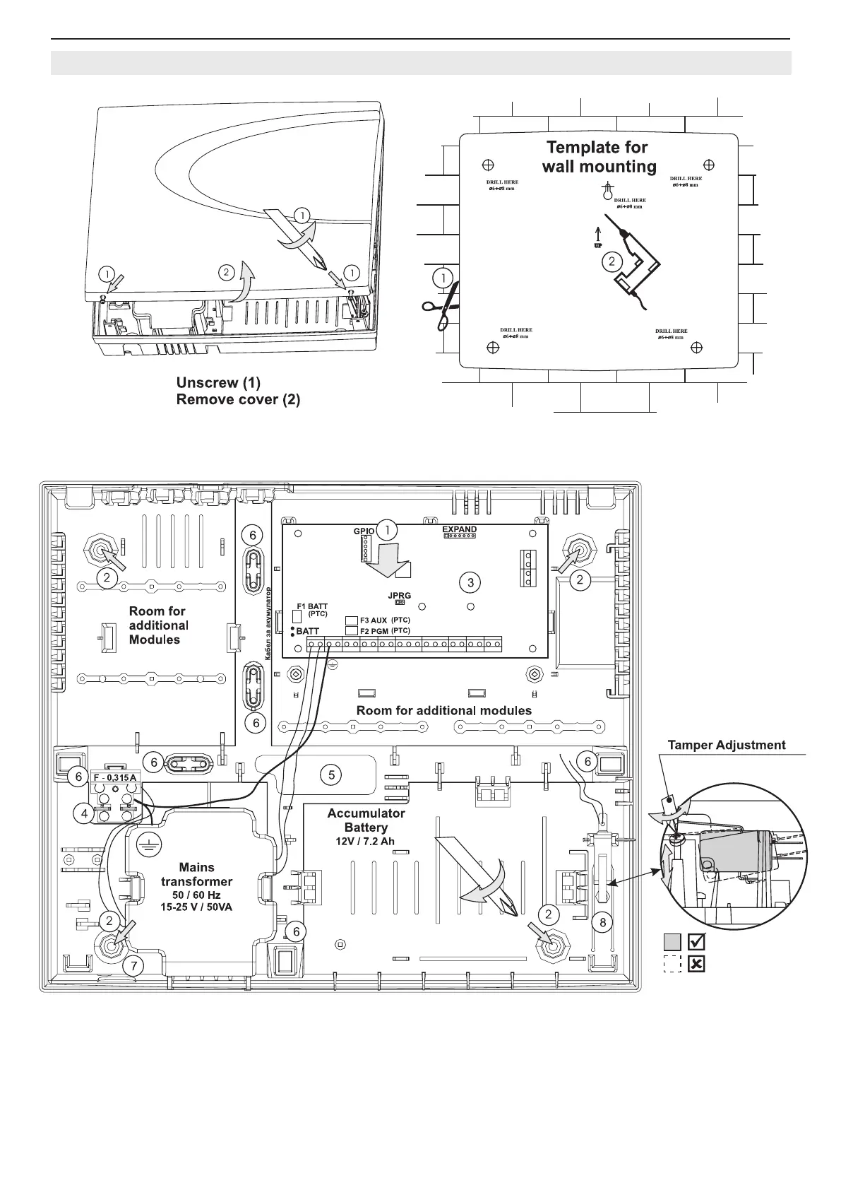
2.4 СА62 Alarm Control Panel Plastic Box
Figure 3. Opening the CA62 plastic box and template for wall mounting.
Figure 4. Situation of СА62 control panel in plastic box.
1 - Central support opening (behind PCB)
2 - Support openings
3 - CA62 Control panel
4 - Mains power supply terminal
5 - Main cable opening
6 - Additional cable openings
7 - Mains power supply opening
8 - Tamper button for box self-protection

Table of Contents

Related product manuals