EasyManua.ls Logo

Thermo Scientific DensityPRO-T - Page 72

Thermo Scientific DensityPRO-T
102 pages
Print Icon
To Next Page IconTo Next Page
To Next Page IconTo Next Page
To Previous Page IconTo Previous Page
To Previous Page IconTo Previous Page
Loading...
Drawings
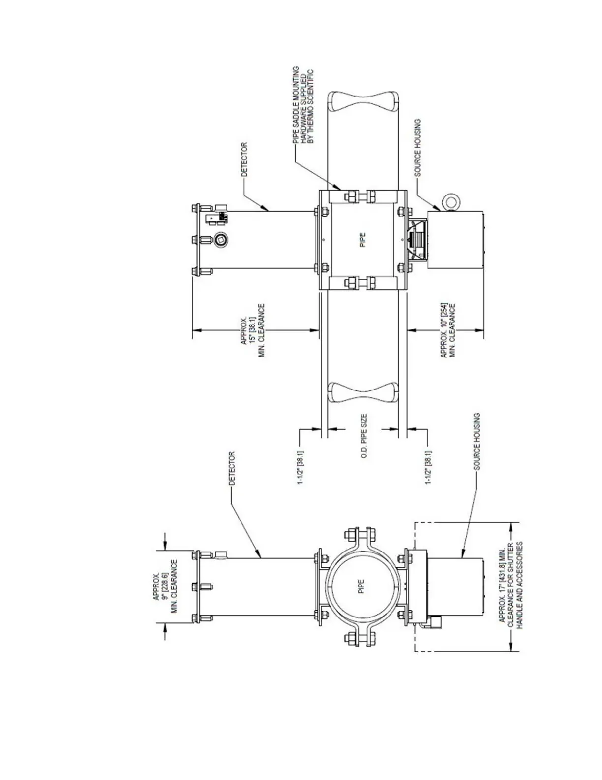
Figure C-6. 4-0700-147: Installation drawing, remote system detector with NEMA 4X housing
Thermo Scientific DensityPRO Installation Manual C-14

Table of Contents

Related product manuals